AE110 Marcación de cajas y armario de medidores de energía

  • Contenido

La presente norma aplica para la marcación de cajas y armarios de medidores de energía de uso exclusivo de Enel Colombia S.A. ESP o de otros Comercializadores con clientes ubicados en el área de influencia de Enel Colombia S.A. ESP. La marcación se realizará mediante la fijación de una etiqueta (Ver especificación técnica ET-950 )  
 

DEFINICIONES

Acometida : Derivación de la red local del servicio respectivo que llega hasta el registro de corte del inmueble. En edificios de propiedad horizontal o condominios y, en general, en las Unidades Inmobiliarias Cerradas de que trata la Ley 428 de 1998 (actualmente Ley 675 de 2001), la acometida llega hasta el registro de corte general. Conjunto de elementos, materiales, compuesto básicamente por conductores que forman parte de la conexión y que son utilizados para unir el sistema de medición y sus respectivas protecciones, a una red de distribución.  

Cliente : Persona natural o jurídica en calidad de usuario, suscriptor o propietario, que se beneficia del servicio de energía eléctrica con la Empresa.  

Conexión : Conjunto de elementos materiales, conformado por ductos, conductores, instrumentos de medición, transformadores de medida, celdas, gabinetes, disyuntores, elementos de protección y otros componentes, los cuales interconectan las instalaciones del cliente con las redes de distribución de Enel Colombia S.A. ESP.  

Equipos de Medición : Instrumentos y accesorios destinados a la medición o registro de energía y potencia eléctrica activa o reactiva, de demandas máximas de potencia o de otros parámetros involucrados en el suministro de energía eléctrica u otros servicios.  

Instalaciones Internas o Red Interna : Es el conjunto de redes, accesorios y equipos que integran el sistema de suministro de energía eléctrica al inmueble a partir del medidor. Para edificios de propiedad horizontal o condominios, y en general, para Unidades Inmobiliarias Cerradas, es aquel sistema de suministro de energía eléctrica al inmueble a partir del registro de corte general cuando lo hubiere.  

Etiqueta : Para efectos de este instructivo corresponde a la etiqueta que esta compuesta de una letra (P), ocho (8) dígitos (7+ uno de verificación) y un código de barras, que se utiliza para identificar físicamente las cajas de medidores o armarios  

Servicios Directos : Conjunto de elementos materiales, conformado por ductos, conductores, celdas, gabinetes, disyuntores, elementos de protección y otros componentes, los cuales interconectan las instalaciones del cliente con las redes de distribución de Enel Colombia S.A. ESP  

Servicios Directos No autorizados (Conexión Clandestina) : Corresponde a derivaciones no autorizadas desde redes de distribución de Enel Colombia S.A. ESP, lo cual es considerado como defraudación de fluidos.  

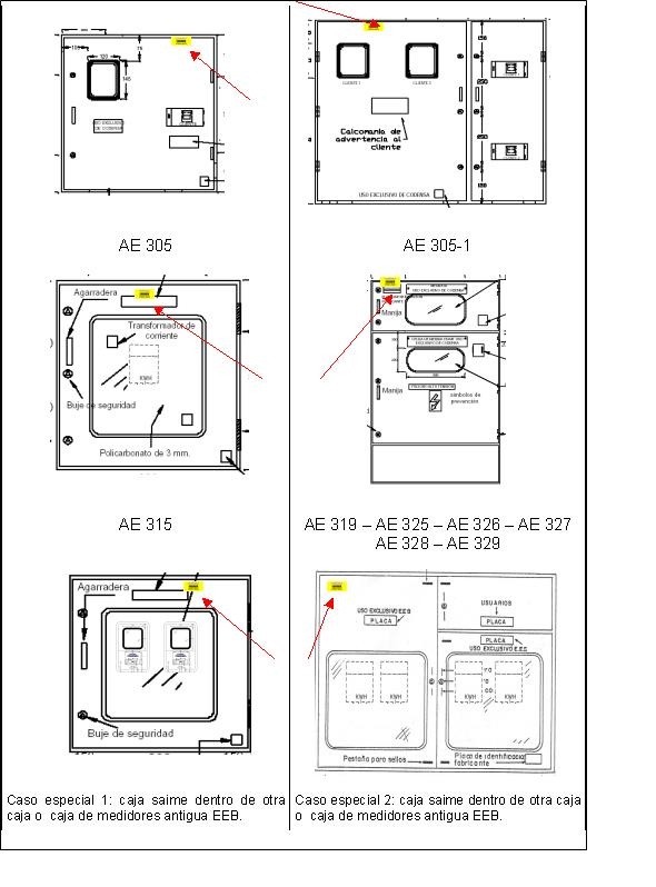
Para el lugar de fijación se debe tener en cuenta la configuración de la celda donde se encuentra el(los) medidor(es), ya sean tipo saime, caja para 2, 3 o 4 cuentas, o armario de medidores.  
 

PROCEDIMIENTO DE FIJACIÓN DE LA ETIQUETA:

a. Identificar la superficie sobre la cual se va a adherir la etiqueta. La superficie para fijación debe ser lisa, libre de uniones y obstáculos como ganchos o tornillos.  

• No se deberá instalar la etiqueta en lugares que puedan interferir el proceso de lectura o de verificación de los equipos de medida  
• La etiqueta deberá en lo posible, ser visible por un observador ubicado de frente a la caja de medidores, armarios o celdas del equipo de medida.  

b. Se deberá limpiar perfectamente la superficie sobre la cual se va a adherir la etiqueta de sedimentos de humo, grasas y polución ambiental, utilizando para esto materiales y utensilios adecuados como solventes (alcohol industrial, estopa o bayetilla no abrasiva).  

c. Una vez removidos los sedimentos, se debe proceder a secar la superficie, utilizando para ello estopa o bayetilla limpia y se espera mínimo un (1) minuto para proceder a la instalación.  

d. Para la instalación, se debe desprender la etiqueta teniendo cuidado de no tocar el adhesivo ni deteriorarla. El operario debe tener las manos lo más limpias posibles al momento de instalar la etiqueta. Se procede a la instalación de la etiqueta desde uno de sus extremos y evitando cualquier tipo de irregularidad en la superficie de fijación. Una vez adherida la etiqueta, se debe asegurar que extienda uniformemente y no se presenten bolsas de aire.  

NOTAS:  

- Cuando se encuentren en terreno un grupo de medidores pertenecientes a un mismo predio, que no están instalados en armario o caja y los medidores son alimentados por una misma acometida, se colocará una sola etiqueta.  
- Cuando en terreno se encuentren en un mismo predio y cuarto, varios armarios de medidores, se instala una etiqueta por armario.  
- Cuando a mismo predio llegue más de una acometida, cada una de ellas y su(s) caja(s) de medidores se colocará una etiqueta.  

A continuación se especifica el sitio donde se debe instalar el rótulo para los diferentes tipos de cajas normalizados o no normalizadas por la empresa:  

 

 


 

 




 

 
DATOS ADICIONALES
Revisión #

1

Fecha de entrada en vigencia

HERRAMIENTAS
RELACIONADAS

Actividad de los usuarios

Estado del comentario