AE100 Bloqueo mecánico de interruptor automático
- Contenido
NOTAS
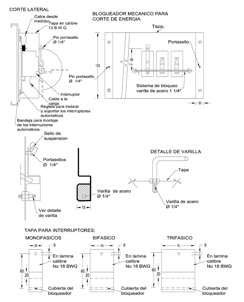
- La distancia "A" es de 25 mm para cuentas monofásicas y de 75 mm para cuentas bifásicas, a verificar con las
dimensiones de los interruptores a instalar.
DATOS ADICIONALES
Revisión #
0
Fecha de entrada en vigencia
Actividad de los usuarios
Para hacer comentarios debe iniciar sesión o registrarse aquí