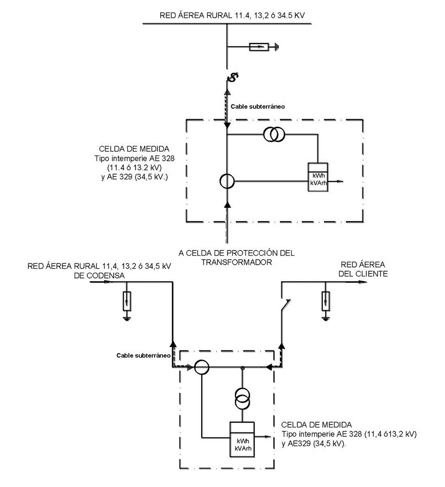
AE340-1 Diagrama unifilar para acometidas y medida en M.T. y 34,5kV (Zona rural)

  • Contenido

DATOS ADICIONALES
Revisión #

1

Fecha de entrada en vigencia

HERRAMIENTAS
RELACIONADAS

Actividad de los usuarios

Estado del comentario