AE308 Armario de medidores. Especificaciones generales
- Contenido
Los armarios para medidores de energía serán instalados sobrepuestos o empotrados en paredes de edificios, fuera del local del centro de transformación, con alimentación trifásica desde las redes de distribución secundaria (Distribución trifásica tetrafilar 120/208 V).
Los armarios deberán ser construidos en lámina de acero Cold Rolled calibre 16 BWG (1,588 como mínimo) o en poliéster reforzado con fibra de vidrio.
Los armarios para medidores pueden construirse en forma modular para facilitar el reemplazo de partes, montaje y desmontaje de piezas, el acople entre estructuras y los trabajos de mantenimiento.
Cuando se utilicen materiales sintéticos o fibra de vidrio para la construcción de los armarios para medidores de energía, deberán garantizarse entre otros, los siguientes aspectos:
- Alta resistencia al impacto.
- Auto extinguible.
- No higroscópico.
- Baja degradación.
- Resistencia a la deformación por altas temperatura.
- Excelentes propiedades dieléctricas.
Sobre el armario fabricado en lámina de acero se debe aplicar una pintura epóxica, color gris RAL serie 70 (similar al RAL 7032), la cual debe ser horneada y resistente a los rayos ultravioleta. El total de la capa de recubrimiento será mínimo de 60 µ m en el área exterior y de 50 µ m en el área interior, sin la presencia de áreas sin recubrimiento.
Todas las capas de pintura deben garantizar una adherencia mínima de 400 libras/pulg 2 , garantizada y probada según norma ASTM D 4541 de 1995.
Para instalación exterior el grado de protección que deberá tener la envoltura exterior del armario deberá ser como mínimo IP 43 según norma IEC 60144. Cuando el armario esté localizado junto a tableros de registros de gas, o muy cercano, se deberá dar un grado de protección IP 55 y una energía de choque de 20 Julios IK10.
El armario de medidores deberá quedar anclado al piso. El sistema de anclaje no deberá estar en un lugar fijo de la base del armario, sino que pueda ser desplazado sobre su base para adaptarlo a la parte civil de la obra sin necesidad de hacerle modificación alguna.
Para proteger la estructura del armario durante la manipulación e instalación del mismo se debe instalar un ángulo en hierro de 1 ½” x 1/8” en la parte inferior.
Los armarios deberán instalarse sobre una base de 5 cm de altura, mínimo.
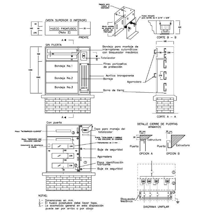
Para armarios hasta 10 cuentas, se permitirá reducir su altura y podrá tener dos bandejas porta-medidores. En este caso, el centro de la bandeja inferior para los medidores, deberá estar a 1,2 m del nivel del piso y deben ser instalados sobre un machón al cual se fijarán los armarios.
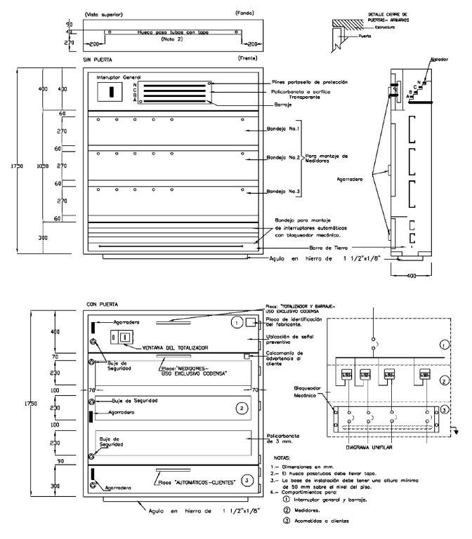
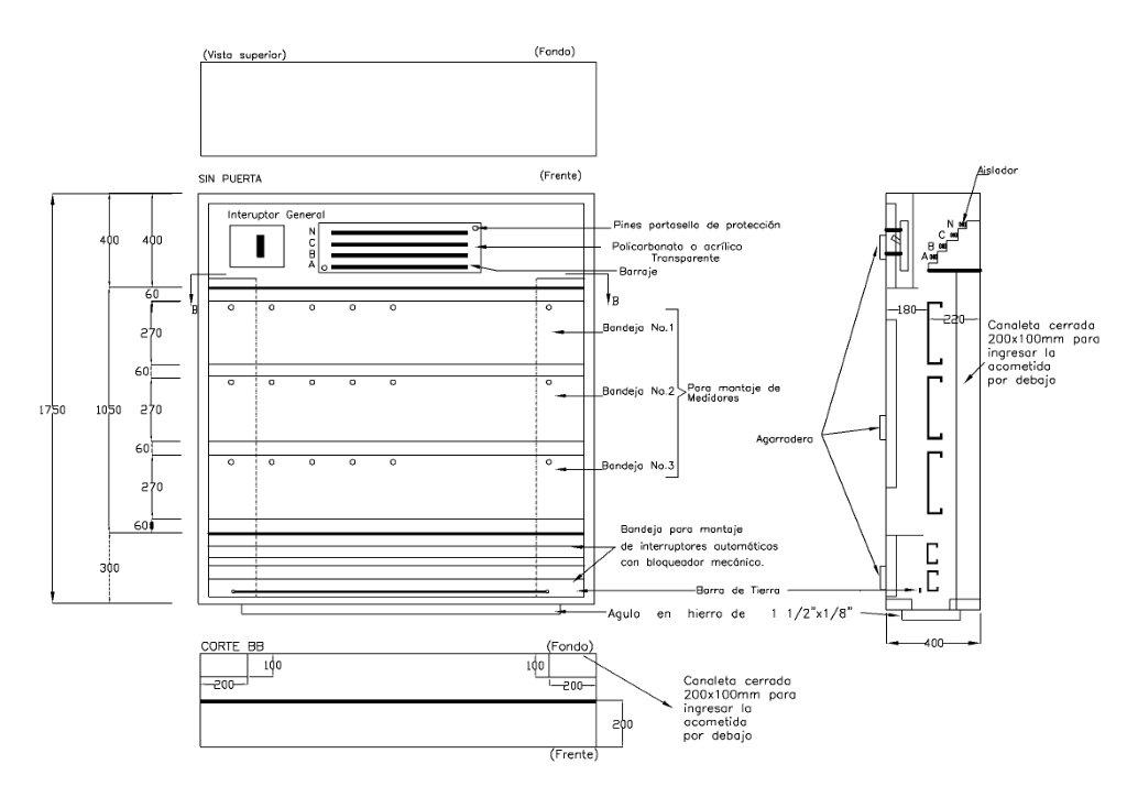
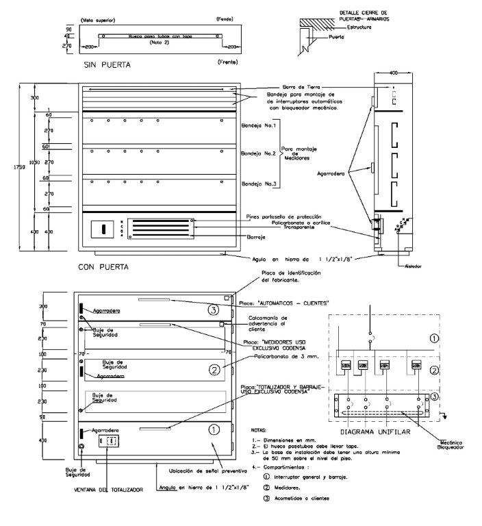
El interior del armario está dividido en tres compartimientos separados, de los cuales el superior e inferior serán intercambiables en su función según las características de instalación, cada una con las particularidades definidas a continuación.
COMPARTIMIENTO DEL INTERRUPTOR GENERAL Y BARRAJE
El acceso a este compartimiento es exclusivo del personal de Enel Colombia debidamente autorizado. Este compartimiento tendrá instalado un barraje tetrapolar protegido por policarbonato o acrílico con portasello.
Se colocará una ventana exclusiva al totalizador para evitar que los clientes tengan que abrir la puerta del compartimiento en caso de fallas o desenergización total. El totalizador se instalará sobre un soporte ajustable en su altura.
Sobre esta puerta se remachará una placa de acero inoxidable, aluminio, plástico o acrílico con la siguiente inscripción:
| TOTALIZADOR Y BARRAJE USO EXCLUSIVO DE ENEL COLOMBIA |
Si entre el transformador y el armario, la distancia es inferior a 15m no se requiere instalar totalizador adicional al del armario.
Este compartimiento debe contar con chapa de seguridad con sistema porta-sello.
COMPARTIMIENTO DE MEDIDORES
De acuerdo con la cantidad de cuentas, en este compartimiento se colocarán las bandejas removibles sobre las cuales se instalarán los medidores; en ningún caso se aceptarán bandejas soldadas.
En armarios con ancho inferior o igual a 120 cm se aceptarán puertas de una sola hoja por compartimiento. Con ancho superior a 120 cm las puertas deberán tener dos hojas; en estos casos se deberán hacer las perforaciones para los medidores de tal forma que no queden medidores en la unión de las dos hojas, cumpliendo con las distancias a cada lado de unión de las puertas indicadas en esta norma. Se debe garantizar que la ubicación de los equipos de medida permita la toma de la lectura sin ningún inconveniente.
A este compartimiento sólo tendrá acceso el personal de Enel Colombia debidamente autorizado.
La puerta de este compartimiento deberá tener por fila de medidores una ventana con policarbonato transparente de 3 mm de espesor y 23 cm de altura. La ventana debe garantizar que la lectura de los medidores de energía se pueda realizar sin ningún inconveniente desde el exterior, por lo cual la altura podrá ser mayor a 23 cm si se requiere.
Sobre la puerta irá remachada, una placa de similares características a la descrita anteriormente, con la siguiente inscripción:
| MEDIDORES USO EXCLUSIVO DE ENEL COLOMBIA |
Este compartimiento debe contar chapa de seguridad con sistema porta-sello
COMPARTIMIENTO DE INTERRUPTORES AUTOMATICOS
Se instalarán mini-interruptores que posean perforaciones para la instalación de sellos al suspender el servicio, estos mini-interruptores cumplen la doble función de protección y suspensión de los diferentes circuitos que se deriven del armario. Se montarán en este compartimiento sobre bandejas metálicas removibles frontalmente.
En el caso de requerirse interruptores automáticos por la carga a manejar, deben incluir bloqueador mecánico para la suspensión del servicio.
A éste compartimiento podrán tener acceso los usuarios. Este compartimiento podrá tener una o dos bandejas.
Sobre la puerta irá remachada una placa de acero inoxidable, aluminio, plástico o acrílico, con la siguiente inscripción de letras indelebles:
| AUTOMATICOS – CLIENTES |
Igualmente se remachará sobre la puerta de mayor altura una placa del fabricante con características similares a la anterior y la siguiente información (el tamaño de las letras será de 3 mm como mínimo):
- Capacidad de corriente del barraje en amperios
- Tensión nominal
- Número de fases
- Número de hilos
- Número de cuentas (capacidad total del armario)
- Nombre del fabricante
- Número de serie de fabricación
- Dirección de la fábrica
- Fecha de fabricación
- Número de certificado de producto con norma técnica y con RETIE .
Este compartimiento no requiere chapa de seguridad, debe ser de fácil acceso y no requiere sistema porta-sello.
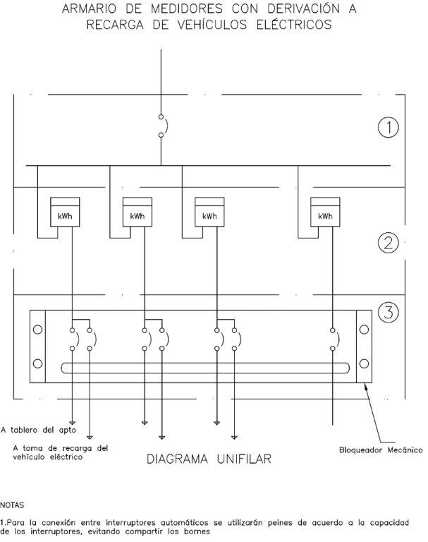
Se incluye en este compartimento la opción de adicionar un mini-interruptor por cada cuenta que se diseñe con cargador de carros eléctricos. Esto se hace teniendo en cuenta que en edificios, el cargador va en primer piso o sótanos y la cuenta es de pisos superiores. Esta opción se aclara con el siguiente diagrama unifilar.
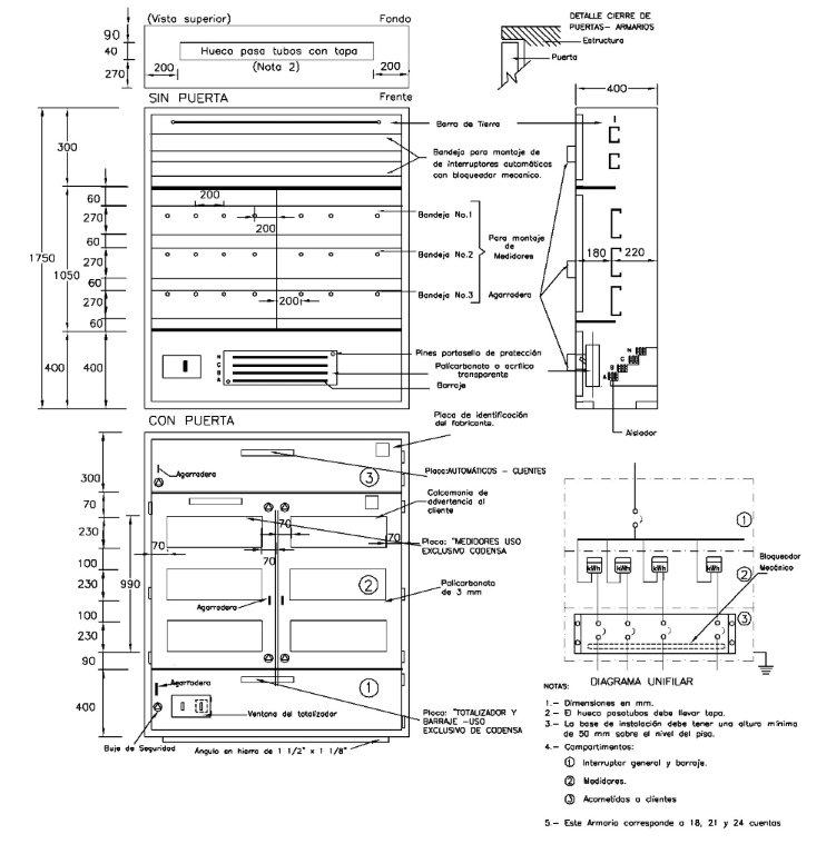
DIMENSIONES DE LOS ARMARIOS DE MEDIDORES
| N° de cuentas | N° de bandejas | Ancho (cm) | Alto (cm) | Profundidad (cm) | N° de puertas |
| 24 | 3 | 200 | 175 | 40 | 2 |
| 21 | 3 | 180 | 175 | 40 | 2 |
| 18 | 3 | 160 | 175 | 40 | 2 |
| 15 | 3 | 120 | 175 | 40 | 1 |
| 12 | 3 | 100 | 175 | 40 | 1 |
| 10 | 2 | 120 | 142 | 40 | 1 |
| 8 | 2 | 100 | 142 | 40 | 1 |
| 6 | 2 | 80 | 142 | 40 | 1 |
Tabla 1. Dimensiones para armarios con medidores exclusivamente trifásicos o bifásicos
| N° de cuentas | N° de bandejas | Ancho (cm) | Alto (cm) | Profundidad (cm) | N° de puertas |
| 24 | 3 | 160 | 154 | 40 | 2 |
| 21 | 3 | 144 | 154 | 40 | 2 |
| 18 | 3 | 112 | 154 | 40 | 1 o 2 |
| 15 | 3 | 96 | 154 | 40 | 1 o 2 |
| 12 | 3 | 80 | 154 | 40 | 1 o 2 |
| 10 | 2 | 96 | 128 | 30 | 1 |
| 8 | 2 | 80 | 128 | 30 | 1 |
| 6 | 2 | 64 | 128 | 30 | 1 |
Tabla 2. Dimensiones para armarios con medidores exclusivamente monofásicos
Si el armario tiene combinación de medidores trifásicos o bifásicos y monofásicos las dimensiones del armario pueden modificarse siempre y cuando se mantengan las siguientes distancias:
o Separación entre ejes:
- 20 cm para medidores trifásicos y/o bifásicos
- 16 cm para medidores monofásicos
- 18 cm para medidores trifásicos, bifásicos y monofásicos
o Separación entre eje del medidor y estructura del armario:
- 20 cm para trifásicos y/o bifásicos
- 16 cm para monofásicos
En el caso de usar interruptores de caja moldeada, la altura total del armario se incremental en 10 cm debido a que el alto del compartimento de interruptores aumenta en 10 cm.
Las dimensiones indicadas en las tablas 1 y 2 son valores mínimos. Estas dimensiones deben ser verificadas por el fabricante del armario para el caso de los diseños con cargadores para carros eléctricos que incluyan un mini-interruptor adicional (ver diagrama unifilar). En esta revisión se debe considerar el numero de cuentas por armario que tengan esta opción, para verificar las dimensiones del compartimento de interruptores automáticos.
Para casos especiales, se podrán modificar las dimensiones del armario siempre que se cumpla con todas las distancias de seguridad y demás condiciones estipuladas en la especificación ET911.
Incluyendo el medidor para la cuenta de servicios comunes, alumbrado exterior y alumbrado de punto fijo (escaleras), todo armario deberá contar como mínimo con un espacio de reserva para instalar un medidor trifásico en ampliaciones futuras. Estas cuentas de reserva deben ubicarse al final del armario, debidamente identificadas.
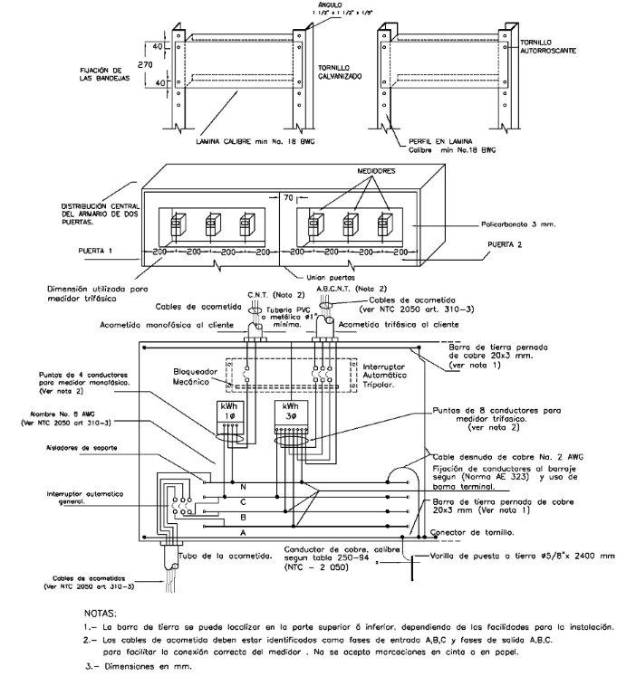
El calibre del conductor de puesta a tierra y el del conductor entre el neutro y la barra de tierra del armario deberá cumplir lo estipulado en la tabla 250-94 de la norma NTC 2050, donde se especifica que el calibre mínimo del conductor de puesta a tierra , es el Nº8 AWG.
Tanto la barra del neutro como la estructura del armario deberán estar conectadas a tierra .
Todos los dispositivos de protección y alambrado, deberán ser de características tales que se obtenga una coordinación y selectividad completas. El alambrado deberá hacerse de tal forma que los puntos vivos se conecten al “ON" (encendido) del dispositivo y los puntos muertos al "OFF" (apagado) , en posición vertical u horizontal del dispositivo. En posición vertical, el dispositivo deberá ser alimentado por la parte superior en donde deberá estar al “ON", y en posición horizontal “ON" a la derecha.
Enel Colombia instalará los medidores y hará la conexión de los mismos una vez el usuario haya cumplido con los requisitos exigidos y adelantado los trámites requeridos.
Los sitios para ubicación medidores e interruptores de protección, deberán identificarse claramente con la dirección y número del apartamento o local respectivo, mediante marquillas de acero inoxidable, aluminio o plástico firmemente remachadas. No se permitirán marquillas pegadas, atornilladas, hechas con rotuladora, pintura, cinta, marcador o similar. (NTC 2050 art. 110-22).
El usuario suministrará el armario debidamente instalado y alambrado con todas las cuentas identificadas y con los suficientes espacios de trabajo para accionar los aparatos de maniobra y protección. (NTC 2050 art. 110-16 y 230-64).
La identificación de las cuentas o medidores y su disposición, deberá estar ordenada de menor a mayor y de arriba hacia abajo, ejemplo:
| Cuentas | 1 | 4 | 7 | Etc | Bandeja N° 1 |
| Cuentas | 2 | 5 | 8 | Etc | Bandeja N° 2 |
| Cuentas | 3 | 6 | 9 | Etc | Bandeja N° 3 |
En el caso de centros comerciales con medidores para islas, bahías, zonas comunes o cajeros electrónicos, estas cuentas se incluirán (ordenadas de menor a mayor) al final identificándolas claramente por el piso y ubicación.
Si en un mismo armario se tienen medidores de cuentas residenciales, locales y servicios comunes (punto fijo o escaleras), los medidores deben ubicarse ordenados de menor a mayor empezando por los medidores residenciales, luego por los locales y finalizando por los medidores de servicios comunes. Todas estas cuentas deben ir debidamente identificadas.
El orden para los diferentes tipos de cuentas indicado en los párrafos anteriores se aplica para armarios nuevos. Cuando se solicitan cuentas nuevas en armarios existentes, se usarán las cuentas de reserva disponibles en el lugar donde estén ubicadas sin requerirse realizar reordenamiento de las cuentas existentes.
Los interruptores de protección se deben identificar de menor a mayor de izquierda a derecha. Las protecciones de las islas, cajeros o servicios comunes se incluirán al final también en forma ordenada.
El instalador deberá garantizar que las marquillas correspondan a la cuenta indicada para evitar problemas de inversión de cuentas; En cuyo caso, Enel Colombia no tendrá ninguna responsabilidad de los problemas ocasionados al usuario derivados por los cruces de facturas de cobro de energía.
El extremo de cada conductor de entrada o salida que va a la bornera del correspondiente medidor, deberá estar claramente identificado mediante sendas marquillas en cinta de enmascarar firmemente adherida al conductor.
No se permitirá localizar en un armario cuentas de diferentes bloques de apartamentos.
Cada bloque deberá tener su propio armario de medidores.
La acometida de B.T. para armarios de medidores debe ser en tubería metálica galvanizada tipo IMC o rígido de diámetro acorde con la carga que alimenta.
NOTAS GENERALES
Desde el armario de medidores no deben hacerse derivaciones a otros armarios o cajas de medidores, excepto cuando se derive para un equipo de medida indirecta en BT (Ver norma AE 314-2 ). En caso de requerirse más de un armario debe utilizarse un tablero general de acometidas.
En condiciones estándar los armarios de medidores son instalados en sótanos, semisótanos o halls de acceso en primer piso. Para construcciones donde se utiliza bus de barras se permite la instalación de armarios en pisos superiores siguiendo las indicaciones de la norma AE229.
En edificaciones de gran altura (superiores a 15 pisos) se permite utilizar armarios en máximo un piso diferente al sótano, semisótano y/o primer piso.
Para mejorar la regulación de tensión se presentan las siguientes alternativas:
- Se deben realizar cálculos para determinar hasta que altura se pueden colocar los armarios
- Emplear el uso de subestaciones adicionales en pisos superiores siempre y cuando su tecnología sea aislamiento en aire o resina y se disponga de ascensores adecuados para el traslado de los equipos para facilitar la instalación, operación y el mantenimiento.
- Se permiten también instalar armarios en pisos superiores cuando se ubiquen S/E en pisos superiores
- En conjuntos de varias torres colocar más de una subestación, buscando ubicarlas cerca al centro de carga de alimentadores a los armarios.
La instalación de armarios en pisos superiores se acepta siempre y cuando se cumpla con las siguientes condiciones:
- La acometida al armario debe ir en tubería metálica galvanizada tipo IMC o rígido
- El armario debe ubicarse en áreas comunes donde se permita el libre acceso para la lectura de los medidores.
- Cuando la distancia entre el transformador y el armario supere los 15 m se debe ubicar una protección de acometidas fuera del área destinada al transformador (Ver norma AE310 ).
- Se deben cumplir las condiciones de espacio libre indicadas en la norma Generalidades 7.3 .
Cuando el armario se ubique en exteriores y no pueda empotrarse totalmente, se deberán construir muros laterales y un techo en desnivel para protección contra la intemperie. Los muros deben permitir una fácil instalación y/o retiro del armario.
Para una información más detallada de los armarios para medidores, se puede consultar la especificación técnica ET-911.
FIGURA 1 - ARMARIO DE MEDIDORES DE 6 A 10 CUENTAS TRIFASICAS ACOMETIDA POR DEBAJO Y PARCIALES POR DEBAJO
FIGURA 2 - ARMARIO DE MEDIDORES DE 12 A 15 CUENTAS TRIFASICAS ACOMETIDA POR ENCIMA PARCIALES POR ABAJO
FIGURA 2A - ACOMETIDA Y PARCIALES POR DEBAJO
• Para acometidas (general y parcial) por debajo, se instalará dos canaletas cerradas por detrás de los comportamientos de “automáticos-clientes” y de “medidores”
FIGURA 3 - ACOMETIDA POR DEBAJO PARCIALES POR ENCIMA
FIGURA 3A - ACOMETIDA Y PARCIALES POR ENCIMA
• Para acometidas (general y parcial) por encima, se instalará dos canaletas cerradas por detrás de los comportamientos de “automáticos-clientes” y de “medidores”
FIGURA 4 - DETALLE DE FIJACIÓN DE BANDEJAS, DISTRIBUCIÓN CENTRAL DEL ARMARIO DE DOS PUERTAS Y CABLEADO INTERNO DEL ARMARIO DE MEDIDORES
FIGURA 5 - ARMARIO CON TOTALIZADOR Y BARRAJE LATERAL
FIGURA 6- ARMARIO DE MEDIDORES DE 18 A 24 CUENTAS TRIFASICAS ACOMETIDA POR DEBAJO PARCIALES POR ENCIMA
DATOS ADICIONALES
Revisión #
12
Fecha de entrada en vigencia
Actividad de los usuarios
Para hacer comentarios debe iniciar sesión o registrarse aquí