AE305-1 Caja para dos medidores trifásicos 50 (150 A). Especificaciones generales

  • Contenido
La caja será compacta y liviana, deberá construirse en forma soldada (no troquelada), en lámina de acero SAE 1010 ó similar debidamente autorizada por Enel Colombia S.A.; estas cajas, también podrán fabricarse en materiales poliméricos, con materiales fácilmente mecanizables que se puedan limar, cortar, agujerear y frezar sin que se sobrecalienten, que no sean atacados por el cemento.

El calibre de la lámina sin pintura debe ser como mínimo 1.214 mm.

El índice de hermeticidad para las cajas será IP 44 de acuerdo a la norma IEC 529, grado de protección contra choques IK 10 ( 20.00 julios).

Se debe aplicar una pintura epóxica, color beige o gris RAL 7032, la cual debe ser horneada y resistente a los rayos ultravioleta. El total de la capa de recubrimiento será mínimo de 65 µ m en el área exterior y de 50 µ m en el área interior, sin la presencia de áreas sin recubrimiento.
Todas las capas de pintura deben garantizar una adherencia mínima de todas y de cada una de las capas de 400 libras/pulg 2 , garantizada y probada según Norma NTC 3916 (ASTM D 4541 de 1995).

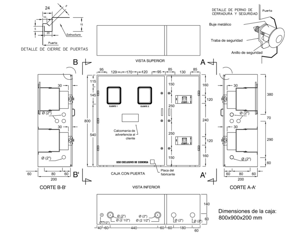
DIMENSIONES

Dimensiones de la base Dimensiones de la puerta
Ancho: 900 mm Ancho: 885 mm
Altura: 800 mm Altura: 785 mm
Profundidad: 200 mm. Profundidad: 15 mm (sin agarradera)

La base de la caja en el compartimiento de medidores y barraje debe poseer cinco pretroquelados para diámetros de tubos metálicos galvanizados así: 2 para Ø 2” y Ø 2 ½ “, 1 de Ø ½ “ en la cara inferior y en la cara lateral derecha 2 de Ø 2” .

En el compartimiento de interruptores : 2 de Ø 2” en la cara inferior, 2 de Ø 2” en la cara lateral derecha y 2 de Ø 2” en la cara lateral izquierda, para comunicación con el compartimiento de medidores.

En la parte superior presentan dos marcos ventanillas de inspección en policarbonato (145 x 120 mm), transparencia de seguridad de 3 mm de espesor (125 mm x 100 mm), Tendrá tres orificios para los bujes de cerradura de 16 mm con perno RW ¼” y una perforación que permita la instalación de un sello de seguridad de la compañia. La localización del centro del buje triangular debe ser concéntrica con la rosca que lo recibe. (ver ET 918-2 figuras 7 y 8) .

La puerta de la caja del medidor debe ir marcada con una leyenda: Uso exclusivo de Enel Colombia , adicionalmente se colocará la placa de identificación del fabricante y una calcomanía de advertencia al cliente.

Sobre la puerta de los totalizadores se instalarán dos ventanas para maniobra de los interruptores, sin riesgos de tocar partes energizadas y evitar el ingreso de agua. Cada una de las ventanas debe ir marcada con la leyenda CLIENTE 1 y CLIENTE 2 respectivamente.

La puerta de la caja debe incluir un sistema de cierre mediante un perno especial de cabeza triangular, que consta de una pieza torneada metálica en la cual se aloja el sistema de seguridad , un buje metálico a prueba de intemperie. El perno de cabeza triangular estará incluido y las llaves para accionarlo serán suministradas por el fabricante únicamente a Enel Colombia S.A. E.S.P. en el número que se solicite. Adicionalmente, éste sistema debe permitir la instalación de un sello de seguridad . (ver ET 918-2 figuras 9 y 10).

En la base de la caja se localizará un barraje fabricado en bronce o cobre electrolítico y calculado con base en la corriente nominal y los esfuerzos de cortocircuito.

Las barras serán pintadas en color amarillo, azul y rojo (fases A, B, C ) y blanco o gris natural para el neutro el cual irá colocado en la parte superior, más cerca del fondo.

La disposición de las fases de la barra deberá ser A, B, C, de frente hacia atrás (horizontal), de abajo hacia arriba (vertical).

El barraje deberá estar a la vista y protegido contra contactos accidentales por medio de una cubierta removible de acrílico o policarbonato transparente de 3 mm de espesor. Deberá llevar dos (2) pines porta sellos diametralmente opuestos. No se aceptan barrajes sin protección.

La caja también se puede fabricar en material polimérico de cualquier tipo como plástico, poliester o fibra de vidrio, sin embargo la base de la caja no se permite construir en policarbonato, ni ningún otro material que pueda ser atacado por materiales alcalinos como el cemento. El color debe ser incorporado en el momento de la fabricación.

El material de las cajas fabricadas en material polimérico debe tener una resistencia a la tracción y a la flexión de 2 500 kg/cm 2 ; a la compresión de 3 000 kg/cm 2 y una dureza brinell de 100 kg/cm 2 . Los materiales deben tener además las siguientes características:

• Alta resistencia al impacto IK10 (20 julios).
• Auto – extinguible.
• No higroscópico.
• No degradación.
• Resistencia a la deformación por temperatura.
• Espesor mínimo 4 mm.

PUESTA A TIERRA

El interior de la caja, debe contener una barra para tierra , con el fin de aterrizar el neutro. Este barraje deberá tener una capacidad no inferior de 175 A y tener la disposición de alojar cuatro conductores de calibres desde el No. 8 AWG hasta el No. 2 AWG . Este terminal se debe sujetar a la carcaza de la caja.




DATOS ADICIONALES
Revisión #

1

Fecha de entrada en vigencia

HERRAMIENTAS
RELACIONADAS

Actividad de los usuarios

Estado del comentario