AE304 Caja para dos medidores bifásicos o trifásicos. Especificaciones generales

  • Contenido
La caja será compacta y liviana, deberá construirse en forma soldada (no troquelada), en lámina de acero SAE 1010 ó similar debidamente autorizada por Enel Colombia S.A.; estas cajas, también podrán fabricarse en materiales poliméricos, con materiales fácilmente mecanizables que se puedan limar, cortar, agujerear y frezar sin que se sobrecalienten, que no sean atacados por el cemento.

El calibre de la lámina sin pintura debe ser como mínimo 1.214 mm.

Se debe aplicar una pintura epóxica, color beige o gris RAL 7032, la cual debe ser horneada y resistente a los rayos ultravioleta. El total de la capa de recubrimiento será mínimo de 65 µ m en el área exterior y de 50 µ m en el área interior, sin la presencia de áreas sin recubrimiento.
Todas las capas de pintura deben garantizar una adherencia mínima de todas y de cada una de las capas de 400 libras/pulg 2 , garantizada y probada según Norma NTC 3916 (ASTM D 4541 de 1995).

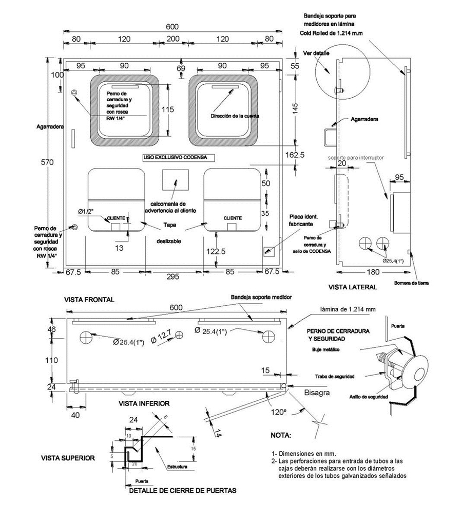
DIMENSIONES

Dimensiones de la base Dimensiones de la puerta
Ancho: 600 mm Ancho: 585 mm
Altura: 570 mm Altura: 555 mm
Profundidad: 180 mm. Profundidad: 15 mm (sin agarradera)


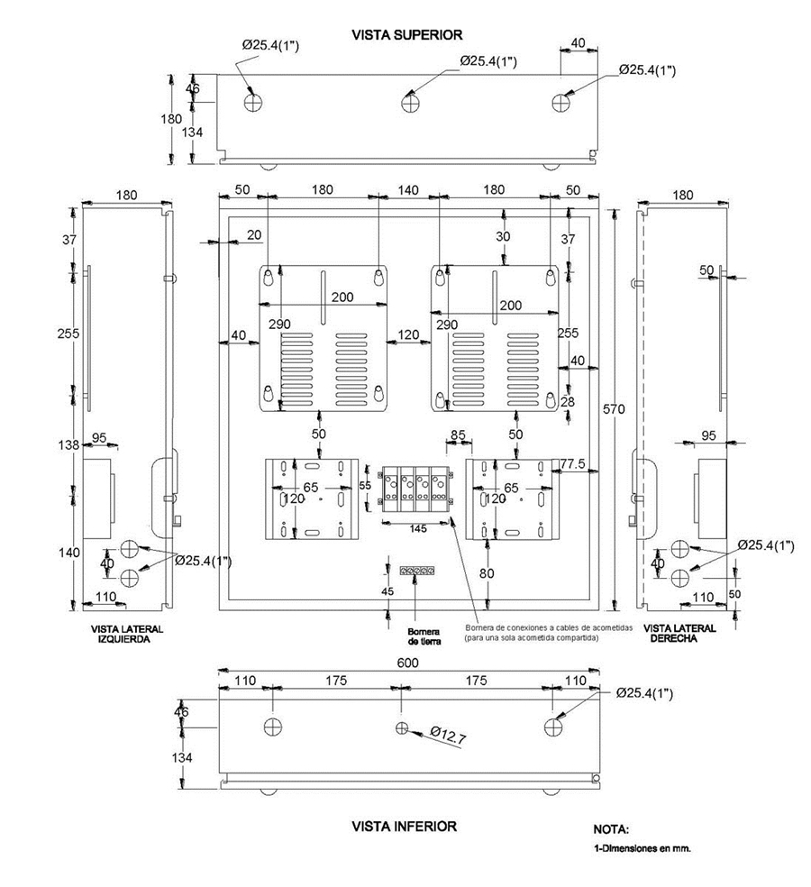
En la base la caja para medidor, deberá tener perforaciones (pretroqueladas que permitan fácilmente removerse en la instalación) para ductos de 1” de diámetro. Tres en la parte superior para la entrada de las acometidas, y dos en cada cara lateral para la salida a la caja ó tablero de distribución del usuario y dos en la parte inferior para la salida y además otra de ½” para puesta a tierra .

En la base de la caja se localizará un barraje fabricado en bronce o cobre electrolítico y calculado teniendo en cuenta la corriente de carga nominal y los esfuerzos mecánicos de cortocircuito. La capacidad mínima del barraje es de 125 A.

La disposición de las fases deberá ser A, B, C y N de izquierda a derecha mirando de frente el barraje.

El barraje deberá estar protegido contra contactos accidentales por medio de una cubierta aislante tipo acrílica transparente de 3 mm de espesor mínimo, removible frontalmente y deberá llevar dos (2) pines o tornillos.

El barraje es un conector que permite el ingreso de un conductor y dos salidas para facilitar la conexión a cada una de las cuentas. Se utilizarán tornillos Allen para fijar los conductores. La entrada debe permitir conductores hasta N° 2 AWG y las salidas hasta conductores N° 4 AWG.

En la parte superior, la caja para medidor posee una ventana de inspección con un marco (145x 120 mm), y una transparencia de seguridad de 3 mm de espesor (125 mm x 100 mm), en la parte inferior posee una tapa deslizable para maniobrar el interruptor , sin riesgo de tocar partes energizadas y evitar el ingreso de agua. Tendrá un orificio para el buje de cerradura de 16 mm con perno RW ¼” y una perforación que permita la instalación de un sello de seguridad de la compañía. La localización del centro del buje triangular debe ser concéntrica con la rosca que lo recibe.

La puerta tendrá grabado en alto relieve o en una placa una inscripción en letras mayúsculas que diga “USO EXCLUSIVO DE Enel Colombia”. En la parte inferior derecha tendrá una placa de características del fabricante; la tapa de la ventana del interruptor automático tendrá marcada la leyenda “CLIENTE”.

La puerta de la caja debe incluir un sistema de cierre mediante un perno especial de cabeza triangular, que consta de una pieza torneada metálica en la cual se aloja el sistema de seguridad , un buje metálico a prueba de intemperie. El perno de cabeza triangular estará incluido y las llaves para accionarlo serán suministradas por el fabricante únicamente a Enel Colombia S.A. E.S.P. en el número que se solicite. Adicionalmente, éste sistema debe permitir la instalación de un sello de seguridad . (ver ET905 figuras 9 y 10).

La caja también se puede fabricar en material polimérico de cualquier tipo como plástico, poliester o fibra de vidrio, sin embargo la base de la caja no se permite construir en policarbonato, ni ningún otro material que pueda ser atacado por materiales alcalinos como el cemento. El color debe ser incorporado en el momento de la fabricación.

El material de las cajas debe tener una resistencia a la tracción y a la flexión de 2 500 kg/cm 2 ; a la compresión de 3 000 kg/cm 2 y una dureza brinell de 100 kg/cm 2 . Los materiales deben tener además las siguientes características:

• Alta resistencia al impacto IK10 (20 julios).
• Auto – extinguible.
• No higroscópico.

• No degradación.
• Resistencia a la deformación por temperatura.
• Espesor mínimo 4 mm.

PUESTA A TIERRA

El interior de la caja, debe contener también una barra para tierra , para aterrizar el neutro. Este barraje deberá tener una capacidad no inferior de 100 A y tener la disposición de alojar cuatro conductores de calibres desde el No. 8 AWG ( Ø 3,71 mm). Este terminal se debe sujetar a la carcaza de la caja.






DATOS ADICIONALES
Revisión #

2

Fecha de entrada en vigencia

HERRAMIENTAS
RELACIONADAS

Actividad de los usuarios

Estado del comentario