AE304-3 Caja vertical para dos medidores bifásicos o trifásicos. Especificaciones generales

  • Contenido
La caja será compacta y liviana, deberá construirse en forma soldada (no troquelada), en lámina de acero SAE 1010, A36, ó similar debidamente autorizada por Enel Colombia S.A.; estas cajas, también podrán fabricarse en materiales poliméricos, con materiales fácilmente mecanizables que se puedan limar, cortar, agujerear y frezar sin que se sobrecalienten, que no sean atacados por el cemento.

El calibre de la lámina sin pintura debe ser como mínimo 1.214 mm.
La caja debe ser auto soportable, rígida y no debe presentar desajustes durante su transporte e instalación.

Para procesos de recubrimiento con pintura líquida: Después de la limpieza debe aplicarse una capa imprimante no mayor a 30 µ m para luego aplicar una capa de 70 µ m en la parte externa de la caja y de 40 µ m en la parte interna de la caja. El total de la capa de recubrimiento será de 100 µ m en el área exterior y 70 µ m en el área interior.
Para procesos de recubrimiento con pintura electrostática en polvo: La pintura deberá ser horneada y el total de la capa de recubrimiento será mínimo de 65 µ m en el área exterior y de 50 µ m en el área interior de recubrimiento.
Todas las capas de pintura deben garantizar una adherencia mínima de todas y de cada una de las capas de 400 libras/pulg 2 , garantizada y probada según Norma NTC 3916 (ASTM D 4541 de 1995).

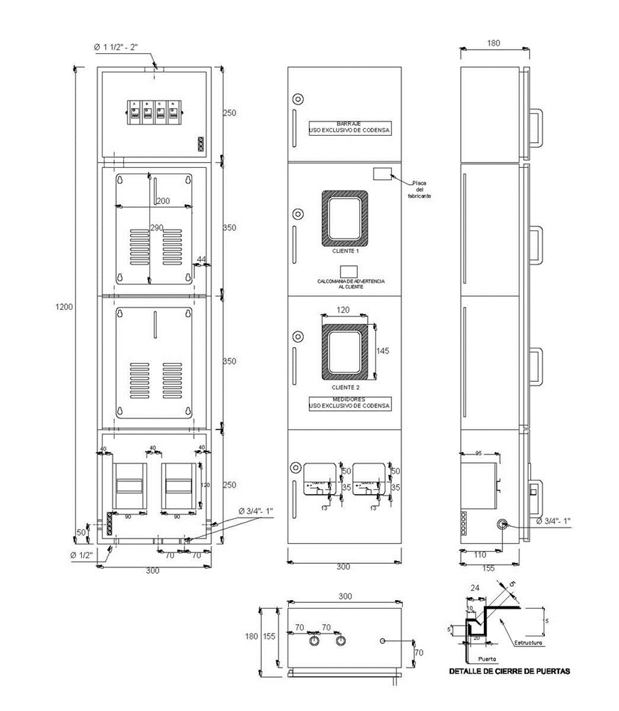
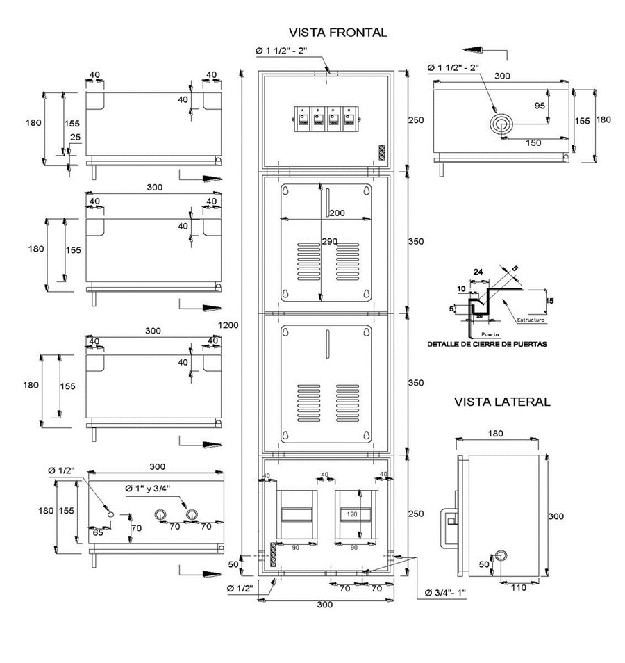
DIMENSIONES

Dimensiones de los compartimientos (mm)
Barraje Medidores interruptores
Base Puerta Base Puertas Base Puerta
Ancho: 300 300 300 300 300 300
Altura: 250 250 700 350 (c/u) 250 250
Profundidad: 180 15 180 15 180 15


La caja esta compuesta de cuatro compartimientos así:
  • Dos compartimientos, cada uno para un medidor trifásico.
  • Un compartimiento para él barraje principal.
  • Un compartimiento para los interruptores.

El compartimiento para él barraje debe tener dos perforaciones pretroqueladas la primera de ellas en la parte superior para la entrada de las acometidas de un diámetro de 1 ½ y 2” y la segunda en la parte inferior con un diámetro de 2”.

Los compartimientos para alojar medidores deberán contar con 4 perforaciones pretroqueladas, dos en la parte superior y dos en la parte inferior de 1” de diámetro para permitir la comunicación entre los compartimientos. El compartimiento para interruptores debe contar con 7 perforaciones de la siguiente manera:
- Dos en la parte superior con un diámetro de 1”
- Cuatro perforaciones pretroqueladas con diámetros de ¾ y 1”
- Dos perforaciones, una en cada una de las caras laterales y dos en la parte inferior.
- La última perforación pretroquelada corresponde a un diámetro de ½” y debe esta localizada en la parte inferior del compartimiento para puesta a tierra .

En el compartimiento para el barraje se localizará un barraje fabricado en bronce o cobre electrolítico y calculado teniendo en cuenta la corriente de carga nominal y los esfuerzos mecánicos de cortocircuito . La capacidad mínima del barraje es de 125 A.

Cada uno de los compartimientos para alojar medidores debe poseer una ventana de inspección con un marco (145x 120 mm), y una transparencia de seguridad de 3 mm de espesor (125 mm x 100 mm).

El compartimiento para alojar los interruptores posee una tapa deslizable que permite el acceso a la parte frontal de los interruptores con el fin de permitir su operación manual en caso de ser requerido, sin riesgo de tocar partes energizadas y evitar el ingreso de agua.

Los compartimientos tendrán perforaciones para alojar el buje de cerradura de 16 mm con perno RW ¼”, el buje contará con una perforación que permita la instalación de un sello de seguridad de la compañía. La localización del centro del buje triangular debe ser concéntrica con la rosca que lo recibe.

IDENTIFICACIÓN

La caja debe tener todos sus compartimentos, identificados, así como el terminal de [glosario.puesta a tierra]. En cada una de las puertas correspondientes a los compartimentos se deberá instalar remachada una placa de acero inoxidable, aluminio, plástico o acrílico con las siguientes inscripciones:
  • Para el compartimento de medidores: “MEDIDORES USO EXCLUSIVO Enel Colombia.
  • Para el compartimento de entrada de la acometida : “BARRAJE USO EXCLUSIVO Enel Colombia.
  • Para el compartimento de salida de acometidas parciales a los clientes: “INTERRUPTORES AUTOMÁTICOS CLIENTES”.

Debajo de la ventana de inspección de los interruptores así como en el compartimiento de los medidores otra que diga “CLIENTE 1, 2” según corresponda.
Sobre la puerta de la caja en la parte inferior lateral derecha se deberá remachar una placa con la información del fabricante, numero del contrato y fecha de vencimiento de la acreditación .

Adicionalmente se instalará en la parte media de una de las puertas del compartimiento de Medidores una calcomanía de advertencia al cliente (ver detalles ET905-3 )

La puerta de la caja debe incluir un sistema de cierre mediante un perno especial de cabeza triangular, que consta de una pieza torneada metálica en la cual se aloja el sistema de seguridad , un buje metálico a prueba de intemperie. El perno de cabeza triangular estará incluido y las llaves para accionarlo serán suministradas por el fabricante únicamente a Enel Colombia S.A. E.S.P. en el número que se solicite. Adicionalmente, éste sistema debe permitir la instalación de un sello de seguridad .

La caja también se puede fabricar en material polimérico de cualquier tipo como plástico, poliéster o fibra de vidrio, sin embargo la base de la caja no se permite construir en policarbonato, ni ningún otro material que pueda ser atacado por materiales alcalinos como el cemento. El color debe ser incorporado en el momento de la fabricación.

El material de las cajas debe tener una resistencia a la tracción y a la flexión de 2 500 kg/cm 2 ; a la compresión de 3 000 kg/cm 2 y una dureza brinell de 100 kg/cm 2 . Los materiales deben tener además las siguientes características:

• Alta resistencia al impacto IK10 (20 julios).
• Auto – extinguible.
• No higroscópico.
• Ausencia de degradación.
• Resistencia a la deformación por temperatura.
• Espesor mínimo 4 mm.

PUESTA A TIERRA

El interior de la caja, debe contener también una barra para tierra , para aterrizar el neutro. Este barraje deberá tener una capacidad no inferior de 100 A y tener la disposición de alojar cuatro conductores de calibres desde el No. 8 AWG ( Ø 3,71 mm) y máximo un No. 6 se debe sujetar a la carcasa de la caja.
Este terminal se debe sujetar a la carcaza de la caja.

Nota:
Para mayor información ver ET905-3 .


FIGURA 1 ESPECIFICACIONES DE LA CAJA ISOMÉTRICA
FIGURA 1 ESPECIFICACIONES DE LA CAJA ISOMÉTRICA


FIGURA 2 DETALLE COMPARTIMIENTOS
FIGURA 2 DETALLE COMPARTIMIENTOS
DATOS ADICIONALES
Revisión #

2

Fecha de entrada en vigencia

HERRAMIENTAS
RELACIONADAS

Actividad de los usuarios

Estado del comentario