AE303 Caja para medidor bifásico o trifásico. Especificaciones generales

  • Contenido
La caja será compacta y liviana, deberá construirse en forma soldada (no troquelada), en lámina de acero SAE 1010 ó similar debidamente autorizada por Enel Colombia S.A.; estas cajas, también podrán fabricarse en materiales poliméricos, con materiales fácilmente mecanizables que se puedan limar, cortar, agujerear y frezar sin que se sobrecalienten, que no sean atacados por el cemento.

El calibre de la lámina sin pintura debe ser como mínimo 0,912 mm
Se debe aplicar una pintura epóxica, color beige o gris RAL 7032, la cual debe ser horneada y resistente a los rayos ultravioleta. El total de la capa de recubrimiento será mínimo de 65 µ m en el área exterior y de 50 µ m en el área interior, sin la presencia de áreas sin recubrimiento.
Todas las capas de pintura deben garantizar una adherencia mínima de todas y de cada una de las capas de 400 libras/pulg 2 , garantizada y probada según Norma NTC 3916 (ASTM D 4541 de 1995).

DIMENSIONES

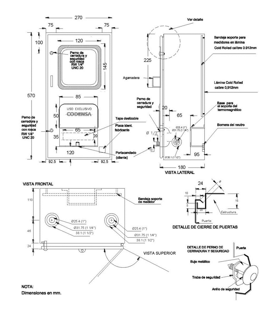
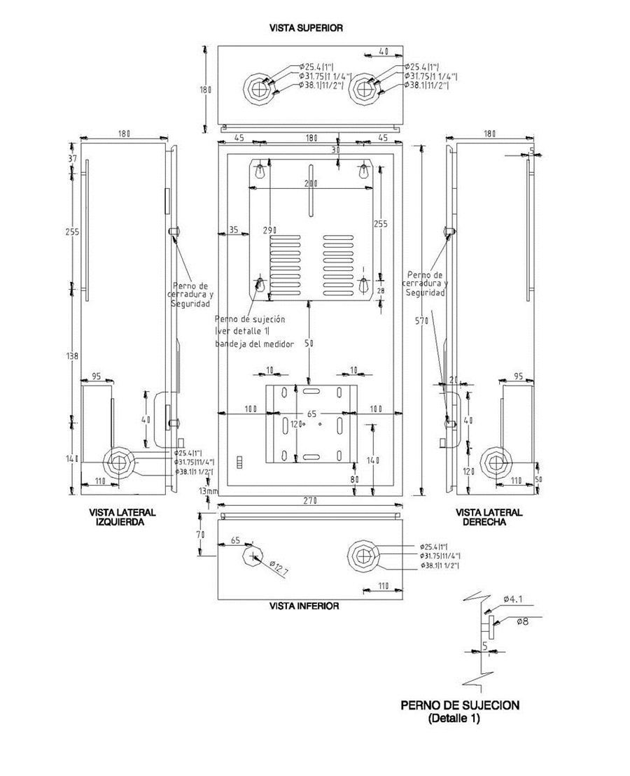
Dimensiones de la base Dimensiones de la puerta
Ancho: 270 mm Ancho 255 mm
Altura: 570 mm Altura: 555 mm
Profundidad: 180 mm. Profundidad: 15 mm (sin agarradera)



La base de la caja debe poseer cinco pretroquelados para diámetros de tubos metálicos galvanizados de 1 ½”, 1 ¼” y 1” para la entrada del cable de la acometida y la salida para la caja de distribución de interruptores termomágneticos del usuario además en la parte inferior debe tener un pretroquelado para tubo de ½” para la conexión a tierra .(ver ET900 figuras 1, 2 y 3)

En la base de la caja se deben colocar los medios para soportar el terminal de tierra de 100 A, además de darle la altura suficiente para que sobresalga, logrando así facilidad en la conexión.

En la parte superior, la caja para medidor posee una ventana de inspección con un marco (145x 120 mm), y una transparencia de seguridad de 3 mm de espesor (125 mm x 100 mm), en la parte inferior posee una tapa deslizable para maniobrar el interruptor , sin riesgo de tocar partes energizadas y evitar el ingreso de agua. Tendrá un orificio para el buje de cerradura de 16 mm con perno RW ¼” y una perforación que permita la instalación de un sello de seguridad de la compañía. La localización del centro del buje triangular debe ser concéntrica con la rosca que lo recibe.

La puerta tendrá grabado en alto relieve o en una placa una inscripción en letras mayúsculas que diga “USO EXCLUSIVO DE Enel Colombia”. En la parte inferior derecha tendrá una placa de características del fabricante; la tapa de la ventana del interruptor automático tendrá marcada la leyenda “CLIENTE”.

La puerta de la caja debe incluir un sistema de cierre mediante un perno especial de cabeza triangular, que consta de una pieza torneada metálica en la cual se aloja el sistema de seguridad , un buje metálico a prueba de intemperie. El perno de cabeza triangular estará incluido y las llaves para accionarlo serán suministradas por el fabricante únicamente a Enel Colombia S.A. E.S.P. en el número que se solicite. Adicionalmente, éste sistema debe permitir la instalación de un sello de seguridad . (ver ET900 figuras 7 y 8).

La caja también se puede fabricar en material polimérico de cualquier tipo como plástico, poliester o fibra de vidrio, sin embargo la base de la caja no se permite construir en policarbonato, ni ningún otro material que pueda ser atacado por materiales alcalinos como el cemento. El color debe ser incorporado en el momento de la fabricación.
El material de las cajas debe tener una resistencia a la tracción y a la flexión de 2 500 kg/cm 2 ; a la compresión de 3 000 kg/cm 2 y una dureza brinell de 100 kg/cm 2 . Los materiales deben tener además las siguientes características:

• Alta resistencia al impacto IK10 (20 julios).
• Auto – extinguible.
• No higroscópico.
• No degradación.
• Resistencia a la deformación por temperatura.
• Espesor mínimo 4 mm.

PUESTA A TIERRA

El interior de la caja, debe contener también una barra para tierra, para aterrizar el neutro. Este barraje deberá tener una capacidad no inferior de 100 A y tener la disposición de alojar cuatro conductores de calibres desde el No. 10 AWG ( Ø 2,95 mm) hasta el No. 8 AWG ( Ø 3,71 mm). Este terminal se debe sujetar a la carcaza de la caja.




DATOS ADICIONALES
Revisión #

2

Fecha de entrada en vigencia

HERRAMIENTAS
RELACIONADAS

Actividad de los usuarios

Estado del comentario