ET-AT909 Tablero de distribución DC para S/ES MT/MT

  • Contenido

1. OBJETO

Especificar los requisitos técnicos de diseño, fabricación, pruebas y suministro de los tableros para distribución DC a ser instalados en las S/Es MT/MT de ENEL Colombia.

2. ALCANCE

Esta especificación contempla los lineamientos generales que debe cumplir el PROVEEDOR DE SERVICIO para el suministro del tablero de distribución DC a instalar en las subestaciones MT/MT de ENEL Colombia.

3. CONDICIONES DE SERVICIO

3.1. CONDICIONES DE SERVICIO Y LUGAR DE INSTALACIÓN

El tablero de distribución DC debe estar diseñado para uso interior dentro de las casas de control de las subestaciones.

4. SISTEMAS DE UNIDADES

En todos los documentos técnicos se deben expresar las cantidades numéricas en unidades del sistema Internacional. Si se usan catálogos, folletos o planos, en sistemas diferentes de unidades, deben hacerse las conversiones respectivas.

5. NORMAS RELACIONADAS

Las siguientes normas deberán ser tenidas en cuenta para la fabricación del tablero y los equipos que contenga:

• NEMA AB-1 2002 “Molded Case Circuit Breakers and Molded Case Switches”
• NEMA AB-3 2001 “Molded Case Circuit Breakers and Their Application”
• IEC 60439 “Low-voltage switchgear and control gear assemblies”
• IEC 60947 “Low-voltage switchgear and control gear”
• Norma DIN VDE 0660 “Low-voltage switchgear and control gear assemblies”, o la equivalente, DIN 43660 “Modular order for electrical switchgear and controlgear installations”
• ANSI/IEEE C37.13-1990 “IEEE Standard for Low-Voltage AC Power Circuit Breakers Used in Enclosures”
• ANSI/IEEE C37.16-2000 “Recommendations for Low Voltage Power Circuit Breakers and AC Power Circuit Protectors, Preferred Ratings, Related Requirements and Application”
• ANSI/IEEE C37.20.1-2002 “IEEE Standard for Metal-Enclosed Low-Voltage Power Circuit Breaker Switchgear”
• IEC 60529
• Reglamento Técnico de Instalaciones Eléctricas –RETIE-

6. REQUISITOS TÉCNICOS PARTICULARES

6.1. ESTRUCTURA

El tablero debe ser tipo interior, con grado de protección IP4X y de tipo auto soportado. Los materiales utilizados en la fabricación del gabinete deben ser nuevos y de óptima calidad.
La estructura, envolventes y techo debe estar construida con perfiles estructurales de lámina Cold Rolled calibre 12. El piso se debe construir en calibre 12 con lámina de aluminio para ser perforada para la correspondiente entrada/salida de cables.
Las dimensiones del gabinete deben estar acorde con la cantidad de circuitos a alojar y a las especificaciones técnicas, lo cual estará sujeto a aprobación de ENEL
Todos los elementos menores, tales como tornillos, tuercas y arandelas de acero deben ser galvanizados o de acero inoxidable.
El tablero será construido para instalación interior, encerrado por todos los lados inclusive en la parte frontal. Solo dispondrá de unas aberturas externas en la parte superior e inferior como se indica en los planos.

La puerta externa será totalmente cerrada, sin agujeros. Cuando esta se abra los barrajes deberán estar totalmente protegidos por una cubierta en lámina de calibre 18 BWG como mínimo, que brinde protección contra un choque eléctrico accidental al momento de abrir la puerta.

Las paredes laterales, del fondo, superior y las puertas deben ser construidas en lámina de acero tipo Cold Rolled de calibre BWG 16 (1,588 mm) como mínimo.

En la parte inferior del tablero se deberá instalar una platina de cobre con una sección mínima calculada para que pueda soportar los esfuerzos térmicos y mecánicos causados por corrientes de cortocircuito (para 10 kA mínimo). La barra deberá conectarse a una varilla de puesta a tierra de 5/8” x 2,44 m, mediante cable de cobre desnudo con una sección mínima de 2/0.

En la parte frontal del tablero se debe instalar un voltímetro y un amperímetro para el monitoreo de estos parámetros.

6.2. PROCESO DE PINTURA

El sistema de protección superficial debe ser por galvanizado en caliente después de fabricado el tablero con su base, el espesor mínimo debe ser de 80 um y pintado con RAL 7032. O también se admite con el siguiente procedimiento de pintura: Después de una limpieza química o mecánica debe aplicarse una placa de imprimante (anticorrosivo) de 80 um y después se aplica una o varias capas de pintura de acabado color RAL 7032, tipo epóxica o poliuretano alifático con resistencia a los rayos UV hasta lograr una capa de 80 um de espesor. La adherencia mínima del esquema parcial o total de pintura debe ser de 400 PSI como mínimo ( Prueba de Tracción).

6.3. BARRAJE

El barraje del tablero, que alimentará los breaker de distribución deberá ser en cobre, dos barras identificadas como positivo y negativo, con una capacidad nominal de 100 A y un nivel de aislamiento no inferior a los 300 Vcd.

6.4. EQUIPOS A INSTALAR

Los interruptores deberán ser del tipo de caja moldeada, con el número de polos requeridos según lo especificado en la tabla de características técnicas garantizadas, aislados, para 300 Vcd, con capacidad de corriente permanente de acuerdo con la potencia de cada circuito y la correspondiente corriente de cortocircuito. El mecanismo de disparo deberá ser de tipo libre, independiente del control manual, de tal manera que el interruptor pueda abrir por cortocircuito o sobrecarga aunque la palanca de operación esté retenida en posición de interruptor conectado.

Los interruptores deberán tener indicación clara de sus posiciones "conectado", "desconectado" y "disparo". La desconexión de los polos deberá ser simultánea. Los interruptores deberán suministrarse con elementos de disparo magnético del tipo instantáneo, para protección contra cortocircuitos, con elementos de disparo térmico del tipo bimetálico para protección contra sobrecargas y con contactos auxiliares libres de potencial.

6.5. GRADO DE PROTECCIÓN

El grado de protección que deberá tener la envoltura exterior del tablero deberá ser como mínimo un grado de protección IP 4X (Según norma IEC 60529).

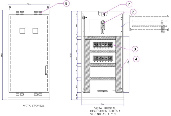
7. DIMENSIONES

En el Anexo 2 se indican las dimensiones del tablero, la disposición física de los equipos a instalar y detalles constructivos a tener en cuenta por el fabricante.

8. MARCACIÓN

El gabinete comprendido en este suministro deberá llevar una placa de acero inoxidable, con textos en idioma español, conteniendo la siguiente información:

- Características generales del gabinete.
- Diagramas o esquemas eléctricos
- Número de orden de compra
- Nombre del Cliente.

Se deberán suministrar los planos, figuras y catálogos que muestren los detalles principales de fabricación, capacidades nominales y características de los componentes eléctricos. Para los planos se deberán utilizar las designaciones, símbolos, convenciones y sufijos de las normas IEC o NEMA.

9. CARACTERISTICAS TÉCNICAS GARANTIZADAS

El tablero debe cumplir con las características técnicas garantizadas indicadas en el Anexo 1 de la presente especificación.

10. PRUEBAS

10.1. PRUEBAS TIPO

El fabricante de los tableros deberá realizar las siguientes pruebas tipo:

• Se efectuarán pruebas de adherencia de acuerdo con la norma NTC 3916 (ASTM D4541 de 1995).
• Se efectuarán pruebas de resistencia a la corrosión de acuerdo con la norma ASTM B117de 1997).
• Se realizarán pruebas del espesor de las capas de fosfatizado y acabado final de acuerdo con lo especificado en esta norma.
• Grado de protección IP

10.2. PRUEBAS DE RECEPCIÓN

El tablero será sometido a las siguientes pruebas:

• Inspección visual
• Inspección dimensional
• Ensamblaje de los equipos y elementos complementarios.
• Medición del espesor de pintura

11. DESPACHO Y TRANSPORTE

Para el despacho y transporte, el proveedor se pondrá en contacto con el cliente para fijar todos los detalles relativos a este efecto.

El tablero deberá estar provisto de rellenos que aseguren igualmente una buena protección. En caso de que el tablero sufra daño en las maniobras de carga y descarga, el proveedor se hace responsable de los daños ocasionados.

12. REQUISITOS PARA LAS OFERTAS

El Oferente deberá incluir con su propuesta, la siguiente información:

• Planilla de características técnicas garantizadas, la cual deberá ser diligenciada completamente, firmada y sellada por el oferente.
• Planos de detalle del tablero ofertado.
• Protocolos de pruebas de acuerdo con las normas indicadas en el numeral 9 de la presente especificación. En tales protocolos se deberán anotar las fechas de fabricación y pruebas del equipo, para permitir la verificación de las características técnicas garantizadas.

ENEL podrá descartar ofertas que no cumplan con las anteriores disposiciones.

13. INFORMACION FINAL CERTIFICADA.

Con la entrega del suministro, el proveedor se compromete a entregar la siguiente información de carácter definitivo:

- 1 Copia de esquemas eléctricos.
- 1 Copia de disposición del equipamiento en el tablero.
- 1 Copia del manual de instalación y mantenimiento.

14. GARANTÍAS

El fabricante se comprometerá a establecer una garantía sobre el suministro por un período mínimo de 2 años a contar inmediatamente después de la recepción, sobre defectos en los materiales que componen el tablero.

ANEXO 1. TABLA DE CARACTERÍSTICAS TÉCNICAS GARANTIZADAS
ITEM DESCRIPCION UNIDAD REQUERIDO OFRECIDO
1 Normas de fabricación
2 Tipo de lámina utilizada Cold Rolled
3 Dimensiones máximas (altura x ancho x profundidad) mm 1500x700x700
4 Espesor de la lámina mm 2.5
5 Calibre 12
6 Proceso de tropicalización SI
7 Procesos de acabado del tablero (banderizado, pulimento, chorro de arena) SI
8 Clase de protección de los tableros para instalación en exteriores según norma IEC-144 IP-4X
9 Puerta delantera con manija SI
10 Tipo de interruptores Termo magnéticos en caja moldeada para uso industrial
11 Normas de fabricación y pruebas de los interruptores termo magnéticos IEC-60947
12 Contactos auxiliares de alarma Si
13 Totalizador bipolar del tablero un Se especifican en el unifilar Anexo 3
14 Tipo y número de interruptores bipolares un
MCB Bipolar 125 V DC, 20 A con contacto auxiliar un Se especifican en el unifilar Anexo 3
MCB Bipolar 125 V DC, 15 A con contacto auxiliar un Se especifican en el unifilar Anexo 3
MCB Bipolar 125 V DC, 6 A con contacto auxiliar un Se especifican en el unifilar Anexo 3
MCB Bipolar 125 V DC, 2 A con contacto auxiliar un Se especifican en el unifilar Anexo 3
Voltímetro DC un 1
Amperímetro DC un 1
15 Dimensiones del tablero mm 1500x700x700 (Ver Anexo 2)



ANEXO 2.






ANEXO 3.




DATOS ADICIONALES
Revisión #

1

Fecha de entrada en vigencia

HERRAMIENTAS
RELACIONADAS

Actividad de los usuarios

Estado del comentario