ET914 Cajas y armarios para transformadores de Corriente y medidor de BT

  • Contenido

1. OBJETO

Esta especificación técnica establece las características y requisitos técnicos que deben cumplir y los ensayos a los cuales deben ser sometidas las cajas y armarios donde se alojan los transformadores de corriente y el medidor electrónico de baja tensión de medida semidirecta.

2. ALCANCE

Esta especificación aplica para todas las cajas o armarios de este tipo que sean instaladas en el sistema de distribución de Enel Colombia S.A. ESP.

3. CONDICIONES DE SERVICIO

3.1 CONDICIONES ELÉCTRICAS DEL SISTEMA

CONDICIONES ELÉCTRICAS DEL SISTEMA
Tensión Nominal del sistema 208/120V, 440/254 V, 480/277V
Tensión Máxima 600V
Tipo de Conexión Trifásica (tetrafilar)
Frecuencia del sistema 60 Hz

3.2 CONDICIONES DE SERVICIO Y LUGAR DE INSTALACIÓN

Los transformadores de corriente y el medidor de BT, se alojarán en cajas o armarios con alimentación trifásica desde las redes de distribución secundaria (distribución trifásica tetrafilar 120/208 V, 440/254 V, 480/277V) con los siguientes objetivos:
  • Alojar y facilitar la instalación de medidores trifásicos y el interruptor automático termomagnético general (en algunos casos), de forma que el acceso a las conexiones sea exclusivo para el personal autorizado por Enel Colombia y que el cliente solo tenga acceso al interruptor ubicado en el compartimiento de acceso al cliente.
  • Minimizar en las acometidas el acceso no autorizado o fraudulento de los usuarios o extraños.
  • Facilitar la lectura del medidor, las revisiones de la instalación y demás trabajos que sobre la instalación generen las solicitudes del cliente y demás operaciones comerciales entre el cliente y Enel Colombia.
  • Facilitar los procesos de corte y reconexión del servicio a los usuarios ocasionalmente morosos.
  • Separar los compartimientos de uso exclusivo de Enel Colombia y los del cliente.

4. SISTEMA DE UNIDADES

En todos los documentos técnicos se deben expresar las cantidades numéricas en unidades del sistema Internacional (S.I.). Si se usan catálogos, folletos o planos, en sistemas diferentes de unidades, deben hacerse las conversiones respectivas.

5. NORMAS DE FABRICACIÓN Y PRUEBAS

En caso de discrepancia entre las normas y este documento, prevalecerá lo aquí establecido. Las normas aplicables son las siguientes:

NORMA DESCRIPCIÓN
NTC 3444 Armarios para instalación de medidores de energía eléctrica.
NTC 1156 Productos metálicos y recubrimientos. Ensayo de cámara salina.
NTC 3279 Grado de protección dado a los encerramientos. (Código IP).
ASTM D 2563 Standard Practice for Classifying Visual Defects in Glass-Reinforced Plastic Laminate Parts
ASTM D 4541 Standard Test Method for Pull-Off Strength of Coatings Using Portable Adhesion Testers

6. REQUERIMIENTOS TÉCNICOS PARTICULARES

6.1 MATERIALES

Las cajas y armarios deberán ser construidas en lámina de acero Cold Rolled calibre 18 BWG (1,214 mm ) y calibre 16 BWG (1,588 mm ) respectivamente.

Todos los tornillos, tuercas, arandelas, guasas, bisagras, etc, utilizados, deberán ser galvanizados irizados o cromados.

Cuando se utilicen materiales sintéticos o fibra de vidrio para la construcción de los armarios, deberán garantizarse entre otros, los siguientes aspectos:
  • Alta resistencia al impacto.
  • Auto extinguible.
  • No higroscópico.
  • Baja degradación.
  • Resistencia a la deformación por altas temperatura.
  • Excelentes propiedades dieléctricas.

Los armarios fabricados con plástico reforzado utilizando procesos de manufactura de moldeo por contacto, por compresión, por inyección, o cualquier otro sistema que asegure los requerimientos deberán ser autosoportantes, rígidos y cumplir con todos los requisitos, dimensiones, propiedades y características de aquéllos que se fabrican en lámina de acero.
El material de construcción estará compuesto de las siguientes partes:

a)Resina.
Podrán ser utilizadas resinas insaturadas de poliéster, resinas epóxicas u otro tipo de resina comercial que sea capaz de formar un laminado reforzado. Se utilizará una resina de grado comercial que asegure una alta resistencia de los rayos ultravioleta y a la indentación, o en su defecto una pintura que garantice una buena adherencia, con un espesor mínimo de 1 mm.

b) Material reforzante.
Se utilizará la fibra de vidrio, en la forma de manta no tejida, hilado continuo, hilado cortado, tela tejida, o combinadas y que tengan un ajuste acoplante que suministre una adhesión adecuada entre el material reforzante y la resina.

c) Llenantes y aditivos.
Los llenantes cuando sean usados, serán inertes al ambiente de utilización. Aditivos tales como agentes tixotrópicos, catalíticos, etc, podrían ser usados cuando sean requeridos por el proceso de manufactura.
Todos los elementos llevarán una capa de material de acabado (pintura o resina determinado) con un espesor mínimo de 1 mm en cualquier punto de la superficie.

No deberán sobresalir rebabas de resina, ni gránulos que imposibiliten una unión perfecta entre las distintas partes de los elementos. En general se aceptarán defectos visuales hasta el nivel II especificado por la Norma ASTM D 2563.
Los armarios deberán ser fabricados de acuerdo con las dimensiones especificadas.

6.1.1 PROCESO DE PINTURA

La lámina de acero utilizada en la construcción de las cajas (al igual que las cajas en proceso) debe someterse a un proceso de limpieza, desengrase y fosfatizado, el cual debe garantizar que las superficies estén libres de grasas, óxidos o cualquier elemento extraño que disminuyan la adherencia (son válidos procesos químicos y/o mecánicos); en un tiempo no mayor a dos horas, después de la limpieza debe aplicarse una capa de imprímante no mayor a 20 micras y en un lapso no menor a 8 ni mayor a 16 horas (o según recomendación de fabricante de pintura) se debe aplicar una pintura epóxica, con espesor no menor a 40 micras (para un total de 60 micras), que deberá ser horneada. La pintura epóxica debe ser color gris RAL serie 70, similar al RAL 7032, resistente a los rayos ultravioleta y la intemperie. El proceso debe garantizar las características de “tropicalización”.

En pinturas horneables que garanticen la adherencia y espesores mínimos no requerirán imprímante; cada capa de pintura y todas deben garantizar una adherencia mínima de 400 PSI (libras/pulgada 2 ) probada según norma ASTM D4541 de 1995.

6.1.2 PUERTAS

Las puertas para todas las cajas y armarios de medidores se deberán construir en lámina Cold Rolled. Todas las puertas deberán abrir únicamente en sentido lateral mínimo 120 ° respecto a la sección horizontal superior del armario, poseer una agarradera que facilite su accionamiento y las bisagras deberán ser galvanizadas, iridizadas, cromadas, niqueladas o ser fabricadas en acero inoxidable, bronce o aluminio suficientemente fuertes para asegurar rígidamente la puerta de la estructura e instaladas sin que pierdan el recubrimiento protector.

Los pasadores de las bisagras deberán ser de acero inoxidable, bronce, latón o aluminio. Las bisagras deben estar instaladas internamente.

6.2 GRADO DE PROTECCIÓN

El grado de protección que deberá tener la envoltura exterior de las cajas y armarios deberá ser como mínimo IP33 según Norma NTC 3279 (IEC 60529), es decir protegido contra cuerpos sólidos de diámetro o espesor superior a 2.5 mm y contra el agua que cae en forma de lluvia (ángulo inferior o igual a 60° respecto a la vertical). Cuando las cajas o armarios estén localizados junto a tableros de registros de gas, o muy cercano, se deberá dar un grado de protección IP 559 (protegido contra polvo, agua y lluvia en todas direcciones y una energía de choque de 20,00 Julios).

7. ESTRUCTURA

La construcción estructural de las cajas y armarios será de responsabilidad del fabricante el cual podrá elegir el sistema más conveniente, podrá ser en lámina doblada o perfiles angulares, siempre y cuando dé la seguridad específica.

7.1 LÁMINAS

Si los armarios son fabricados en estructura de ángulo de acero éste será de1 ½” x 1 ½” x 1/8" como mínimo, recubiertas con lámina calibre BWG 16 (1,588 mm) como mínimo. Para los fabricados en su totalidad en lámina, ésta deberá ser de calibre BWG 16 (1,588 mm) como mínimo, con sus respectivos dobleces para garantizar una estructura sólida.

Las cajas deben construirse en forma soldada, en lámina de acero SAE 1010, A36, o similar aprobada por Enel Colombia, y debe cumplir las normas ASTM. El calibre de la lámina sin pintura debe ser como mínimo 1,214 mm, elaborada por el proceso de estirado en frío (Cold - Rolled). Debe ser una estructura completamente rígida e indeformable, sin bordes cortantes.

Para el armario las láminas laterales, del fondo y superior, deberán ser en lámina de acero tipo Cold Rolled de calibre BWG 16 (1,588 mm) como mínimo.

Las láminas laterales, espaldar y superior si son removibles, deberán ser fijadas de tal forma que no se puedan soltar exteriormente, sino únicamente interiormente.

La bandeja de soporte para el medidor y la bornera alojado en el armario será de lámina calibre BWG 18 (1,214 mm) como mínimo y deberán poseer pestañas para aumentar su rigidez.

La tornillería, tuercas, arandelas de presión y arandelas planas que fijan la estructura deberán ser galvanizadas iridizadas o cromadas y los tornillos deberán tener una longitud tal que sobresalgan de la tuerca por lo menos 3 hilos sin exceder de 10 mm.

7.2 SISTEMA DE ANCLAJE

El armario deberá quedar anclado al piso. El sistema de anclaje no deberá estar en un lugar fijo de la base del tablero , sino que pueda ser desplazado sobre su base para adaptarlo a la parte civil de la obra sin necesidad de hacerle modificación alguna.

7.3 ESPACIOS LIBRES, ALAMBRADO Y CONEXIONES ELÉCTRICAS


El espacio libre dentro de las cajas y armarios deberá ser el suficiente para dar amplio espacio a la distribución de los conductores.

Los terminales, empalmes y en general todas las conexiones que se realicen en las cajas y armarios, deberán cumplir con lo estipulado en la Norma NTC 2050, Norma Técnica Colombiana, art. 110-14, con relación a los terminales y empalmes de los conductores, bornas, etc.

8. DETALLES DE FABRICACIÓN

8.1 CAJAS INDEPENDIENTES

8.1.1 CAJA PARA EL MEDIDOR

Es exclusivo para uso del personal de Enel Colombia o el debidamente autorizado. Es una caja de 600 x 600 x 300 mm con puerta y transparencia para la fácil revisión, lectura y verificación de fraudes. Ver figuras 1 y 2.

La caja tendrá tres perforaciones de 1” por las caras laterales e inferior.

Se instala el medidor electrónico sobre una bandeja la cual será removible y sujeta con tornillos. La bandeja deberá entregarse con todas las perforaciones necesarias que permitan el montaje de las borneras de prueba y el medidor.
La puerta tendrá dos bisagras, agarradera, bujes de seguridad , con perforaciones para colocación de sellos de seguridad de Enel Colombia y perno triangular. Esta puerta deberá tener una ventana con policarbonato transparente de 3 mm de espesor, instalados y fijados mediante doblez de la lámina, soporte metálico o polipropileno de tal forma que no sea posible retirarlos por el frente. Además tendrá un empaque de caucho (en Z) y sello con silicona para evitar el ingreso de polvo y agua. Los extremos de la ventana pueden ser redondeadas o cortes a 90°.
Sobre esta puerta se remachará una placa de acero inoxidable, aluminio, plástico o acrílico, con la siguiente inscripción de letras indelebles:
MEDIDOR USO EXCLUSIVO DE Enel Colombia

El tamaño de las letras será mínimo de 10 mm de altura.

La caja tendrá su terminal de puesta a tierra .

8.1.2 CAJA PARA LOS TRANSFORMADORES DE CORRIENTE

Es exclusivo para uso del personal de Enel Colombia o el debidamente autorizado. Es una caja de 800 x 800 x 300 mm con puerta y transparencia para la fácil revisión, lectura y verificación de fraudes. Ver figuras 1 y 2.

La puerta tendrá dos bisagras, agarradera, bujes de seguridad , con perforaciones para colocación de sellos de seguridad de Enel Colombia y perno triangular. Esta puerta deberá tener una ventana con policarbonato transparente de 3 mm de espesor, instalados y fijados mediante doblez de la lámina, soporte metálico o polipropileno de tal forma que no sea posible retirarlos por el frente. Además tendrá un empaque de caucho (en Z) y sellado con silicona para evitar el ingreso de polvo y agua. Los extremos de la ventana pueden ser redondeados o en cortes a 90°.

Se instalarán los transformadores de corriente sobre una lámina de madera o metálica calibre 18 BWG (1,214 mm).

La caja tendrá las siguientes perforaciones:

- De 4” para tubo conduit, para la entrada y salida de los conductores de acometida . Por todos los costados de la caja.

- De 1” para el cable multiconductor de señales de tensión y corrientes. Por tres caras laterales de la caja.

- De ¾” para la puesta a tierra . Por la cara inferior.

Se instalará un conector o barra de tierra de cuatro posiciones, de tal forma que permita la entrada y salida del neutro, la puesta a tierra de la caja del medidor y la del electrodo de puesta a tierra .

La puerta tendrá dos bisagras, agarradera y bujes e seguridad con perforaciones para colocación de sellos de seguridad de Enel Colombia y pernos con cabeza triangular.

Sobre esta puerta se remachará una placa de acero inoxidable, aluminio, plástico o acrílico, con la siguiente inscripción de letras indelebles:

TRANSFORMADORES DE CORRIENTE USO EXCLUSIVO DE Enel Colombia

El tamaño de las letras será mínimo de 10 mm de altura.

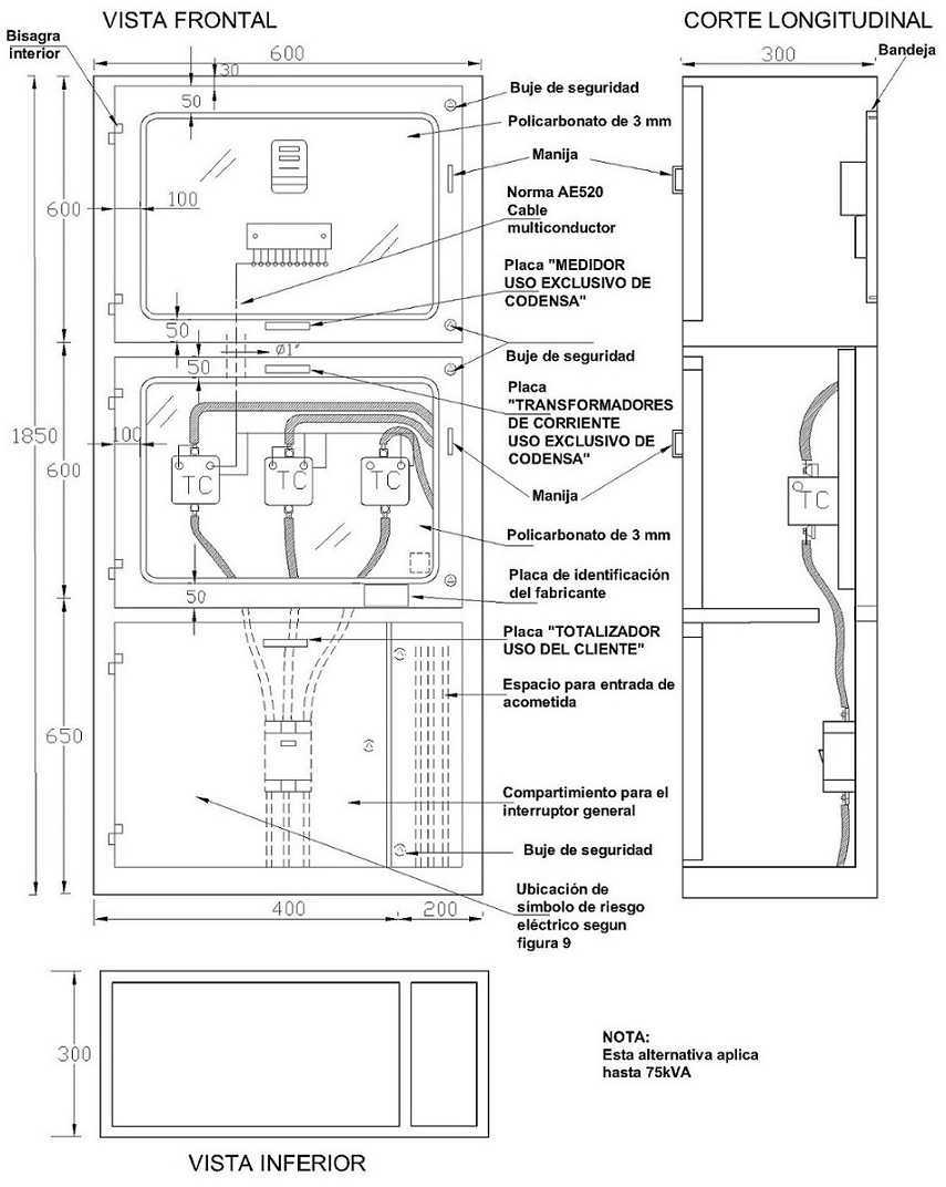
8.2 ARMARIO

El interior del armario está dividido en tres compartimientos separados: El del medidor, el de los transformadores de corriente y el de la protección general. Ver figuras 4 y 5

8.2.1 COMPARTIMIENTO DEL MEDIDOR

Es exclusivo para uso del personal de Enel Colombia o el debidamente autorizado. Es una caja con puerta y transparencia. Esta localizado en la parte superior del armario.

La caja tendrá una perforación de 1” para comunicación con el compartimiento de los transformadores de corriente.

El medidor electrónico debe ir instalado sobre una bandeja, la cual será removible y sujeta con tornillos.

La bandeja para el soporte del medidor deberá entregarse con todas las perforaciones necesarias que permitan el montaje de las borneras de prueba y el medidor.

La puerta tendrá dos bisagras, agarradera, bujes de seguridad , con perforaciones para colocación de sellos de seguridad de Enel Colombia y perno triangular. Esta puerta deberá tener una ventana con policarbonato transparente de 3 mm de espesor, instalados y fijados mediante doblez de la lámina, soporte metálico o polipropileno de tal forma que no sea posible retirarlos por el frente. Además tendrá un empaque de caucho (en Z) y sello con silicona para evitar el ingreso de polvo y agua. Los extremos de la ventana pueden ser redondeados o en cortes a 90 °.

En la puerta se colocará remachada una placa plástica, de acero inoxidable o aluminio, con la siguiente inscripción:

MEDIDOR USO EXCLUSIVO Enel Colombia

El tamaño de las letras será mínimo de 10 mm de altura.

8.2.2 COMPARTIMIENTO DE LOS TRANSFORMADORES DE CORRIENTE

Es exclusivo para uso del personal de Enel Colombia o el debidamente autorizado. Es una caja con puerta y transparencia. Está localizado en la parte intermedia del armario. Tendrá las perforaciones adecuadas para la entrada y salida de los conductores de acometida y la comunicación con el compartimiento del medidor.

Se instalarán los transformadores de corriente sobre una lámina de madera o metálica calibre 18 BWG (1,214 mm).

La puerta central tendrá dos bisagras, agarradera, bujes de seguridad , con perforaciones para colocación de sellos de seguridad de Enel Colombia y perno triangular.

Esta puerta deberá tener una ventana con policarbonato transparente de 3 mm de espesor, instalados y fijados mediante doblez de la lámina, soporte metálico o polipropileno de tal forma que no sea posible retirarlos por el frente. Además tendrá un empaque de caucho (en Z) y sello con silicona para evitar el ingreso de polvo y agua. Los extremos de la ventana pueden ser redondeados o en cortes a 90°

Sobre la puerta irá remachada, una placa de similares características a la descrita anteriormente, con la siguiente inscripción:

TRANSFORMADORES DE CORRIENTE USO EXCLUSIVO Enel Colombia

El tamaño de las letras será mínimo de 10 mm de altura.

8.2.3 COMPARTIMIENTO DE PROTECCIÓN GENERAL (TOTALIZADOR)

A éste compartimiento podrán tener acceso los usuarios. Tendrá el espacio adecuado para instalar un interruptor general (totalizador) y eventualmente barraje e interruptores de protección de alimentadores. Esta localizado en la parte inferior del armario.

Tendrá las perforaciones adecuadas para la comunicación con el compartimiento central.

La puerta tendrá dos bisagras, agarradera y buje de seguridad . Sobre la puerta irá remachada una placa de acero inoxidable, aluminio, plástico o acrílico, con la siguiente inscripción de letras indelebles:

TOTALIZADOR USO DEL CLIENTE

El tamaño de las letras será mínimo de 10 mm de altura.

El ingreso de la acometida tendrá su espacio independiente, de tal forma que pase hacia los equipos de medición y cuando se utilice puerta para facilitar el cableado debe tener bujes de seguridad con portasellos.

8.2.4 PUESTA A TIERRA

El calibre del conductor del electrodo de puesta a tierra y el del conductor entre el neutro y la barra de tierra del armario deberá cumplir lo estipulado en la NTC 2050 en la Tabla 250-94 Conductor del electrodo de puesta a tierra para sistemas de c.a.

Tanto la barra del neutro como la estructura del armario deberán estar conectadas a tierra . El conector debe ser capaz de soportar 200 A.

9. MARCACIÓN

En las cajas sobre cada puerta y en el armario en la puerta del compartimiento de los transformadores de corriente, se remachará una placa del fabricante, con características similares a las de las placas de identificación, con la siguiente información (el tamaño de las letras será de 3 mm como mínimo):
  • Relación de corriente (Ip/Is)
  • Tensión nominal
  • Número de fases: 3
  • Numero de hilos: 4
  • Número de cuentas (para cajas: 1. Para armarios, según sea el caso)
  • Nombre del fabricante
  • Número de serie de fabricación
  • Dirección de la fábrica
  • Fecha de fabricación
  • Información de la certificación de producto con norma técnica y con RETIE que incluya el ente que lo emitió, numero de certificado y vigencia.
  • Para compras realizadas por Enel Colombia S.A ESP se debe incluir la palabra BOG-CUN y la orden de compra
Adicionalmente debe incluirse el símbolo de riesgo eléctrico para las cajas con las mínimas dimensiones indicadas en el art. 11.2.2 y art. 11.3 del RETIE y para el armario de acuerdo a las dimensiones mostradas en la figura 9.

10. PRUEBAS

Cada una de las cajas y armarios serán sometidos a las siguientes pruebas:

Inspección visual.
• Dimensiones.
• Se efectuarán pruebas de adherencia de acuerdo con la norma ASTM D 4541. La prueba de envejecimiento se hará de acuerdo con la norma NTC 1156 cuando sea requerida por Enel Colombia.
• Se realizarán pruebas del espesor de las capas de fosfatizado y acabado final de acuerdo con lo especificado en esta norma.
• Grado de protección IP.
• Ensamblaje de los equipos y elementos complementarios.

11. CERTIFICADOS DE CONFORMIDAD

Deben contar con certificado del sistema de calidad y de conformidad del producto con norma técnica y RETIE , expedido por una entidad autorizada por la ONAC-Organización Nacional de Acreditación de Colombia.

12. REQUISITOS PARA LAS OFERTAS

El Oferente deberá incluir con su propuesta, la siguiente información:
  • Planilla de características técnicas garantizadas, la cual deberá ser diligenciada completamente, firmada y sellada por el oferente.
  • Catálogos originales completos y actualizados del fabricante, que correspondan a los bienes cotizados, en la planilla de características técnicas garantizadas.
  • Protocolos de pruebas de acuerdo con las normas indicadas en el numeral 8 de la presente especificación. En tales protocolos se deberán anotar las fechas de fabricación y pruebas del equipo , para permitir la verificación de las características técnicas garantizadas.
  • Información adicional que considere aporta explicación a su diseño (dibujos, detalles, características de operación, dimensiones y pesos de los materiales ofertados).

Enel Colombia S.A. podrá descartar ofertas que no cumplan con las anteriores disposiciones, sin expresión de causa ni obligación de compensación.

FIGURA 1. CAJAS DE INSTALACIÓN DE TRANSFORMADORES DE CORRIENTE Y EQUIPO DE MEDIDA EN B.T.

FIGURA 2. VISTA ISOMETRICA

FIGURA 3. BANDEJA PARA SOPORTE DE MEDIDOR ELECTRÓNICO 350X500X40 mm

FIGURA 4. ARMARIO PARA INSTALACIÓN DE EQUIPO DE MEDIDA Y TRANSFORMADORES DE CORRIENTE EN B.T. (ALTERNATIVA 1)

FIGURA 5. ARMARIO PARA INSTALACIÓN DE EQUIPO DE MEDIDA Y TRANSFORMADORES DE CORRIENTE EN B.T. (ALTERNATIVA 2)

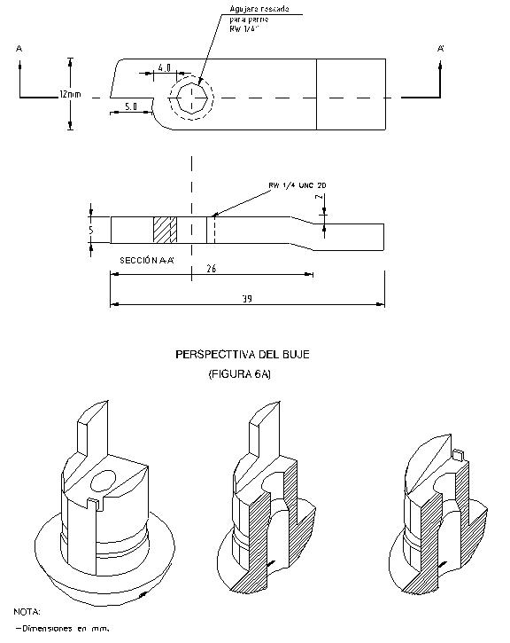
FIGURA 6A. BUJE DE SEGURIDAD

FIGURA 6B. BUJE DE SEGURIDAD
FIGURA 6B.

FIGURA 7. TORNILLO DE CABEZA TRIANGULAR

FIGURA 8. LLAVE PARA PERNO DE CABEZA TRIANGULAR
FIGURA 8.

FIGURA 9. SEÑAL PREVENTIVA
DATOS ADICIONALES
Revisión #

3

Fecha de entrada en vigencia

HERRAMIENTAS
RELACIONADAS

Actividad de los usuarios

Estado del comentario