ET812 Luminarias con tecnología LED para alumbrado público en Colombia

Describe las características de las luminarias LED a ser empleadas para las actividades propias de la operación de AP.

  • Contenido

1. OBJETIVOS

 

Establecer los requisitos técnicos para el suministro de luminarias con tecnología LED (comúnmente denotada con Luminaria LED) a ser utilizados en las instalaciones de alumbrado público dentro de la concesión o contratos de Enel Colombia.

 

2. CAMPO DE APLICACIÓN

 

Las luminarias con tecnología LED, descritas en esta especificación, están destinadas para el alumbrado público en zonas urbanas y rurales, con los tipos de montajes descritos en las diferentes especificaciones técnicas como "montajes en poste" y "soporte".

 

3. NORMAS Y LEYES DE REFERENCIA

 

Además de los requisitos de las especificaciones técnicas presentadas en este documento, las luminarias LED deben cumplir con las leyes y normas vigentes, incluidas las actualizaciones que surjan mientras el producto se encuentra en la etapa de suministro.

 

A continuación, se enumeran los principales estándares de referencia, que deben ser ejemplares y no exhaustivos:

 

3.1 Estándar Internacional

 

3.1.1 Requisitos de Seguridad

  • IEC 60598-1:2014+AMD1:2017 CSV Luminaires - Part 1: General requirements and test
  • IEC 60598-2-3:2002+AMD1:2011 CSV Luminaires - Part 2-3: Requirements - Luminaires for road and street lighting
  • IEC 60598-2-5 Luminaires - Part 2-5: Requirements – Floodlights
  • IEC 61347-1-13 Lamp controlgear
  • IEC 62031 LED modules for general lighting - Safety specifications
  • IEC 62471 Photobiological safety of lamps and lamp systems (not applicable in Colombia’s case)

 

3.1.2 Requisitos funcionales

  • IEC 60529:2014 Degrees of protection provided by enclosures (IP Code)
  • IEC 60364 Low-voltage electrical installations
  • IEC 62262:2002 Degrees of protection provided by enclosures for electrical equipment against external mechanical impacts (IK code)
  • IEC 62722-1 Luminaire performance - Part 1: General requirements
  • IEC 62722-2-1Luminaire performance - Part 2-1: Particular requirements for LED luminaires
  • UNE-EN 13201:1-5: 2015: Selection of lighting classes, Performance requirements, Calculation of performance, Methods of measuring lighting performance, Energy performance indicators

     

3.1.3 Componentes de Equipo de Iluminación

  • IEC 61347-2-13 Part 2-13: Particular requirements for D.C. or A.C. supplied electronic controlgear for LED modules
  • IEC 61643-11: Low-voltage surge protective devices - Part 11: Surge protective devices connected to low-voltage power systems – Requirements and test methods
  • IEC 62384 DC or AC supplied electronic control gear for LED modules - Performance requirements
  • IEC 62444:2010 Cable glands for electrical installations
  • IEC 62504: General lighting - Light emitting diode (LED) products and related equipment - Terms and definitions
  • ANSI C136.41: For Roadway and Area Lighting Equipment— Dimming Control Between an External Locking Type Photocontrol and Ballast or Driver
  • ANSI C136.10: For Roadway and Area Lighting Equipment—Locking-Type Photocontrol Devices and Mating Receptacles— Physical and Electrical Interchangeability and Testing

 

3.1.4 Requisitos Fotométricos

  • IESNA LM-79: IES Approved Method for the Electrical and Photometric Measurements of Solid-State Lighting Products
  • IESNA LM-80: IES Approved Method: Measuring Luminous Flux and Color Maintenance of LED Packages, Arrays and Modules
  • IESNA TM-21: Projecting Long Term Lumen Maintenance of LED Light Sources
  • IESNA TM-30: Method for evaluating light source color rendition
  • UNE-EN 13032-1: Luz y alumbrado. Medición y presentación de datos fotométricos de lámparas y luminarias. Parte 1: Medición y formato de fichero.
  • UNE-EN 13032-4: Luz y alumbrado. Medición y presentación de datos fotométricos de lámparas y luminarias. Parte 4: Lámparas LED, módulos y luminarias.
  • CIE 036: Glare and uniformity in road lighting installations
  • CIE 115: Lighting of roads for motor and pedestrian traffic
  • CIE 136: Guide to the lighting of urban areas
  • CIE 140: Road Lighting Calculations
  • CIE 1931: Standard colorimetric system

 

3.1.5 Compatibilidad Electromagnética (EMC)

  • IEC 61000-3-2 Electromagnetic compatibility (EMC) - Part 3-2: Limits - Limits for harmonic current emissions (equipment input current ≤ 16 A per phase)
  • IEC 61000-3-3 + EC of September 2014 Electromagnetic compatibility (EMC) – Part 3-3: Limits - Limitation of voltage changes, voltage fluctuations and flicker in public low-voltage supply systems, for equipment with rated current ≤ 16 A per phase and not subject to conditional connection.
  • IEC 61000-4-5: Testing and measurement techniques - Ensayos de inmunidad a las Ondas de choque.
  • IEC 61547 Equipment for general lighting purposes - EMC immunity Requirements.
  • UNE-EN 55015 + A1 of January 2016: Límites y métodos de medida de las características relativas a la perturbación radioeléctrica de los equipos de iluminación y similares.

 

3.1.1 Ensayos Especiales

  • IEC 60068-2-11 Basic environmental testing procedures - Part 2-11: Tests - Test Ka: Salt mist + ISO 9227:2017 - Corrosion tests in artificial atmospheres
  • IEC 60068-2-52: Environmental testing - Part 2: Tests - Test Kb: Salt mist, cyclic (sodium, chloride solution)
  • IEC 60068-2-6: Environmental testing - Part 2-6: Tests - Test Fc: Vibration (sinusoidal)
  • IEC 60695-2-11: 2014, Fire hazard testing – Part 2-11: Glowing/hot-wire based test methods – Glow-wire flammability test method for end-products (GWEPT)
  • ISO 4892-2:2013 Plastics - Methods of exposure to laboratory light sources
  • ASTM D3353: Paint Adhesion
  • ASTM B1117: Resistencia a la corrosión (Cámara de ambiente salino). Prueba de cámara salina, mínimo 1000 horas.

 

3.1.7 Verificación Muestral

  • ISO 2859-1: Sampling procedures for inspection by attributes — Part 1: Sampling schemes indexed by acceptance quality limit (AQL) for lot-by-lot inspection.

     

3.2 Estándar Nacional – Regulación Colombiana

 

  • RETIE: Reglamento Técnico de Instalaciones Eléctricas
  • RETILAP: Reglamento Técnico de Iluminación y Alumbrado Público
  • MUAP: Manual Único de Alumbrado Público. Decreto 500 de 2003. Alcaldía Mayor de Bogotá
  • NTC 900: Reglas generales y especificaciones para el alumbrado público
  • NTC ISO80000-1: Cantidades y unidades-Parte 1: general
  • NTC 1156: Productos metálicos y recubrimientos. Ensayos cámara salina.
  • NTC 2230: Luminarias parte 1. Requisitos generales y ensayos
  • NTC 2470: Dispositivos de fotocontrol intercambiables para iluminación pública.
  • NTC 60529: Grados de protección dado por encerramiento de equipo eléctrico [Grados IP]
  • NTC 3547: Electrotecnia. Controles para sistemas de iluminación exterior.
  • NTC ISO 2859-1: Procedimientos de muestreo para inspección por atributos. Parte 1: Planes de muestreo determinados por el nivel aceptable de calidad para inspección lote a lote.
  • NTC 2050: Código Eléctrico Nacional (conexiones internas).
  • NTC ISO 17025:2005: Requisitos generales para la competencia de los laboratorios de ensayo y calibración.

Pueden emplearse otras normas internacionalmente reconocidas equivalentes o superiores a las aquí señaladas, siempre y cuando se ajusten a lo solicitado en la presente Especificación Técnica.


Las normas citadas en la presente especificación (o cualquier otra que llegare a ser aceptada por Enel Colombia S.A ESP) se refieren a su última revisión.

 

4. DEFINICIONES

 

Para el propósito de esta especificación técnica se aplican las siguientes definiciones:

 

  • Conjunto óptico: Conjunto de elementos necesarios para controlar y dirigir la luz producida por una o varias fuentes de luz o módulos LED (pueden incluir lentes, refractor y/o reflector).

 

  • Conjunto eléctrico: Es la parte de la luminaria que contiene los equipos eléctricos y electrónicos capaces de conectar, transformar y adaptar la tensión eléctrica de la red de alimentación de baja tensión a los módulos LED que conforman el conjunto óptico.

 

  • Dispositivo de control (“DRIVER”): Fuente de alimentación eléctrica o electrónica, o equipo de control LED (controlgear for LED module; LED controlgear). El cual se encuentra entre la alimentación eléctrica y uno o más módulos LED que sirve para la alimentación de estos dispositivos a su tensión o corriente nominal y que puede consistir en una o más partes separadas; puede incluir medios para la regulación de niveles de luz emitida, corrección del factor de potencia y la supresión de radio interferencias, además de otras funciones de control. El equipo puede consistir en una fuente de alimentación y en una unidad de control, o puede estar integrado total o parcialmente con el módulo o módulos LED.

 

  • Dispositivo de Tensión contra sobretensiones transitorias (DPS): Componente electrónico diseñado para limitar las sobretensiones transitorias y conducir las corrientes de impulso, contiene al menos un elemento no lineal.

 

  • Fuente de alimentación eléctrica o electrónica, o equipo de control LED (controlgear for LED module; LED controlgear). El cual se encuentra entre la alimentación eléctrica y uno o más módulos LED que sirve para la alimentación de estos dispositivos a su tensión o corriente nominal y que puede consistir en una o más partes separadas; puede incluir medios para la regulación de niveles de luz emitida, corrección del factor de potencia y la supresión de radio interferencias, además de otras funciones de control. El equipo puede consistir en una fuente de alimentación y en una unidad de control, o puede estar integrado total o parcialmente con el módulo o módulos LED.

 

  • Lente: Es un dispositivo óptico utilizado en la transmisión, refracción y convergencia o divergencia del haz de luz emitido por el LED y están concebidos para conseguir una distribución óptima de la luz, tener una alta transmitancia luminosa y sirven como protección al LED. Se instalan dentro de un marco portalentes. Hace parte del Módulo LED.

 

  • LED (Diodo Emisor de Luz): Dispositivo de estado sólido que incluye una unión p-n y que emite una radiación óptica incoherente bajo la acción de una corriente eléctrica. Expresión tomada de su nombre (Light Emitting Diode). La emisión de radiación puede estar en las regiones de longitud de onda ultravioleta, visible o infrarroja.

 

  • Luminaria: Aparato que distribuye, filtra o transforma la luz transmitida desde al menos una fuente de radiación óptica y que incluye, excepto las propias fuentes, todas las partes necesarias para la fijación y protección de las fuentes y, cuando es necesario, los circuitos auxiliares junto con los medios para conectarlos a la fuente de alimentación.

 

 

  • Módulo LED: Fuente de luz LED que no tiene casquillo, que incorpora uno o más encapsulados LED en un circuito impreso y la posibilidad de incluir uno o más de los siguientes elementos: componentes eléctricos, ópticos, mecánicos y térmicos, interfaces y equipos de control. Un módulo LED puede ser integrado (módulo LEDi, tipo 1), semi integrado (módulo LEDsi, Tipo 2) o no integrado (módulo LEDni, Tipo 3). El módulo LED está normalmente diseñado para formar parte de una bombilla LED o una luminaria LED.

 

Fig 1 Clasificación de módulos LED. (Figura 1.2.1.1. j en RETILAP)

 

  • Sistema LED “Retrofit”: Adecuación de luminarias HID (Alta intensidad de descarga) a tecnología LED.

 

5. CONDICIONES DE FUNCIONAMIENTO

 

  1. Temperatura del aire ambiente (Ta): La temperatura ambiente (Ta) será como máximo de 50ºC y el valor mínimo de la temperatura ambiente será de -10ºC.
  2. Altitud: El fabricante deberá garantizar el correcto funcionamiento, dependiendo de la altitud del lugar de instalación a nivel nacional. La altitud del lugar de instalación no excederá de 3150 m sobre el nivel del mar para Bogotá.
  3. Condiciones atmosféricas: Considerar condiciones de atmósferas corrosivas, una humedad relativa mayor al 90% y un nivel de contaminación (IEC 60815) “Muy alto (IV)”. En estas condiciones se tendrán en cuenta las ligeras condensaciones que ocasionalmente pueden producirse debido a las variaciones de temperatura, presencia de polvo y severa contaminación por hidrocarburos.
  4. Ambientes de funcionamiento: nivel de contaminación (IEC 60815) “Muy alto (IV)”. En estas condiciones se tendrán en cuenta las ligeras condensaciones que ocasionalmente pueden producirse debido a las variaciones de temperatura, presencia de polvo y severa contaminación por hidrocarburos.

 

6. CARACTERÍSTICAS DE LA LUMINARIA LED

 

6.1 Tensión y Frecuencia de Operación

El sistema de distribución de baja tensión es trifásico y con las siguientes características de operación:

  • Tensión nominal: LL 208-380-480V ó LN 120 a 277V
  • Frecuencia nominal: 60Hz

 

6.2 Componentes 

La luminaria LED se compone de los siguientes elementos: conjunto óptico, conjunto eléctrico y carcasa.

6.2.1 Conjunto óptico

Está compuesto por: los módulos LED, una protección exterior a base de vidrio liso templado de alta pureza con transmitancia superior al 90%, el vidrio no podrá ser usado como lente, y los accesorios para el cierre hermético requerido.

6.2.2 Conjunto eléctrico

  • Tensión de alimentación: 120V A 277V con un rango de variación de +5% -10%
  • Clase de aislamiento: Clase I o II.
  • THD máximo de corriente: 20%
  • Todos los conductores pueden ser tipo cable.
  • La fuente de alimentación del módulo LED debe tener incorporado un sistema de protección contra temperatura; que cuando la temperatura de los LEDs alcance niveles definidos como críticos, la protección de la fuente de alimentación inicialmente atenúe y posteriormente apague la luminaria
  • Borneras de conexión.
  • Las conexiones eléctricas en las borneras y/o tornillería que se encuentre directamente en contacto con un punto vivo, deben ser del tipo no ferroso. Además, las conexiones libres o suspendidas dentro del compartimiento eléctrico deben llevar conectores de resorte o terminales aislados.
  • Los extremos de los cables deben ser estañados o incluir terminales y de suficiente capacidad para soportar las corrientes.
  • Las conexiones directas a los módulos LEDs, deben ser en conductor de cobre aislado mínimo para 300 V y apto para una temperatura de 105 ˚C.
  • Para la fijación de la fuente de alimentación se deben usar los apoyos internos en la carcasa.
  • La fuente de alimentación debe poseer su protección de sobrecarga interna.
  • El driver debe contar con: DPS (Dispositivo de Protección Contra Sobretensiones) de las siguientes características:
  1. Rango de tensión nominal:                 100-277 VAC
  2. Protección Tensión de apertura:        (L-N 5 kA):                  1.600 VRMS
  3. Protección Tensión de apertura:        (L-N-Tierra 5 kA):       2.500 VRMS
  • El Driver debe venir con protección contra sobre corriente incorporado. Se deberán describir las características de esta protección.

 

6.2.3 Para Luminarias con sistema de control de encendido individuales con reloj programable

Está compuesto por: el Dispositivo de control LED (DRIVER), DPS (dispositivo de protección contra sobretensión), equipo de control de encendido programable para luminaria, borneras y cables de conexión. Para Avenidas Principales se exige que las luminarias tengan PSP (Protección sobretensiones permanentes –ET860)

 

6.2.4 Carcasa

Es el elemento que albergará el conjunto óptico y eléctrico, incluye los elementos disipadores de calor pasivo para los módulos LED que conforman la luminaria. Además, permite la fijación de la luminaria en los soportes o tipos de montaje descritas en las especificaciones técnicas. El material será de aluminio no corrosivo que proporcione rigidez y resistencia adecuada, deberá resistir los niveles de contaminación solicitados. Se aceptan únicamente fabricaciones en inyección a alta presión y/o extrusión que garantice alta resistencia mecánica.

 

Se requiere un grado de resistencia a los impactos de IK08 o superior. El acabado final será pintura electrostática de resina poliéster en color gris RAL 7004 u otro que se autorice. Debe contemplar protección contra rayos UV.

 

La entrada de cables debe ser a través de un sistema de prensa estopa o similar que asegure la hermeticidad IP 66 o superior de la luminaria requerida.

 

La apertura de la luminaria debe realizarse por la parte superior o inferior. Se debe evitar las caídas accidentales de la tapa o dificultades en el cierre. La apertura inferior no puede descolgar ningún elemento.

 

La carcasa de la luminaria no debe ser modular y debe proteger de la intemperie los conjuntos óptico y eléctrico, por lo que debe ser resistente a los cambios bruscos y prolongados de la temperatura. Se debe asegurar un IP66 o superior

 

Los disipadores de calor deben ser pasivos y no de ventilación forzada. No se aceptan Retrofit (luminarias remanufacturadas)

 

6.3 Requerimientos de diseño y construcción

 

El diseño de la luminaria LED permitirá, como mínimo, la reposición del sistema óptico y del dispositivo de control electrónico de manera independiente, de forma que el mantenimiento de estos no implique el cambio de la luminaria completa. El compartimiento para conjunto eléctrico debe estar diseñado con acceso sin herramientas para facilitar el mantenimiento.

 

Cada luminaria LED debe tener una marcación con sus parámetros eléctricos de funcionamiento legible e indeleble: corriente, tensión, potencia y debe presentar el esquema de su circuito eléctrico y conexión.

 

La luminaria LED y sus componentes deben cumplir en general lo especificado en las normas correspondientes indicadas en el numeral 3, como también los certificados RETIE y RETILAP que le aplique a sus componentes o conjuntos. En particular deberán satisfacer los requisitos mínimos siguientes:

 

6.3.1 Características del Conjunto Óptico

Los Módulos LED deben cumplir las siguientes características:

 

  • Temperatura de Color:                                   2800<=CCT=<4500K
  • IRC o CRI:                                                      >= 70
  • Vida útil estimada:                                          >= 100000 horas L70 y B10

(Ta=35°C) LM80-08 y IES TM-21

  • Resistencia:                                                    Rayos UV
  • Eficacia luminosa mínima de la luminaria:   >130 lm/W
  • Potencia:                                                         Por definir en Licitación

 

Para Bienes de Interés Cultural se podrán utilizar otras temperaturas de color siempre que el diseño haya sido realizado por un especialista certificado en este tipo de bienes.

 

Para Colombia la corriente máxima que circula por el paquete LED (LED package) debe ser menor o igual con la que se realizó el test de la vía útil del LED. Se debe anexar certificación del fabricante garantizando este requisito (especificando la corriente).

 

La protección exterior está compuesta por una cubierta de vidrio liso templado de alta pureza con las siguientes características:

 

  • Nivel de transmitancia            : >=90%
  • Grado de hermeticidad           : IP 66 o superior o su equivalente NEMA 4X
  • Resistencia al impacto            : IK 08 o superior o equivalente en Joules

 

Los lentes que componen los módulos LED, deberán ser fabricados en materiales de alta transmitancia luminosa y que no cambien sus características físicas y químicas con el tiempo, como el Polimetacrilato de Petilo Acrílico (PMMA).

 

Cada módulo LED que conforma el sistema óptico debe reproducir la curva fotométrica de la luminaria

 

6.3.2 Características del Conjunto Eléctrico

La hermeticidad del conjunto eléctrico que compone la luminaria debe ser de IP66 o superior y su equivalente NEMA y resistencia al impacto de IK08 o superior o su equivalente en Joules.

 

Para la fijación de los equipos en el conjunto eléctrico se deben usar apoyos internos en la carcasa.

 

6.3.2.1 Dispositivo de Control LED (DRIVER)
  • Tensión de entrada nominal (Vn):  120V a 277V
  • Tensión de Operación: ±10% Vn
  • Frecuencia nominal: 60Hz
  • Distorsión Armónica de corriente (THD)  : <20 %
  • Factor de Potencia: >= 0.9
  • Hermeticidad: IP 66 o superior o su equivalente NEMA
  • Clase de aislamiento: I / II
  • Dimerización: Si
  • Interfaz de comunicación (Dimerización): 1-10V y DALI 2.0 (D4i)
  • Vida útil     : >= 100000 horas

 

Este dispositivo debe incorporar protección contra sobrecorriente y sobretemperatura, la cuales se deben describir.

El fabricante debe marcar de forma visible, legible e indeleble en la placa de la luminaria (o en su interior) la corriente y tensión de trabajo del módulo LED con que fue fabricada

 

6.3.2.2 DPS
  • Número de polos  : Línea/Línea o neutro/Tierra
  • Tensión máxima de operación     : 277V
  • Tensión de protección (Up) (L-L / L-L-N) : 1.5 kV
  • Tensión máxima de descarga (U0c)        : 10 KV
  • Corriente nominal de descarga (In): 5 kA
  • Corriente máxima de descarga (Imax): 10 kA
  • Tipo 3
  • Grado protección mínimo : IP 66 o superior o su equivalente NEMA
  • Clase de aislamiento: I/II

 

6.3.2.3 PSP

Para Avenidas Principales se exige que las luminarias tengan PSP (Protección sobretensiones permanentes –ET860)

 

Ver anexo G

 

6.3.2.4 Borneras y cables de conexión
  • Clase térmica: >= 105°C
  • Tensión aislamiento: 600 V
  • Conductores: Los cables de conexión a la fuente de alimentación eléctrica deberán tener los calibres y aislamientos apropiados para el tipo de carga, tensión y temperatura, en ningún caso podrán ser de calibre inferior a 20 AWG o 0,52mm2
  • Rotulación : Por fase
  • Contactos  : No ferrosos (protegidos contra la corrosión)

 

Todas las conexiones internas se deben efectuar a través de borneras. Los conductores en cable deben tener los extremos estañados o con terminales rectos de compresión. No se aceptará cable con forro de asbesto. Las conexiones eléctricas en las borneras y/o tornillería que se encuentre directamente en contacto con un punto vivo, deben ser del tipo no ferroso. Además, las conexiones libres o suspendidas dentro del compartimiento eléctrico deben llevar conectores de resorte o terminales aislados. En luminarias con tapa de apertura inferior no se permite nada suspendido o libre.

 

6.3.2.5 Acometida de luminaria
  • Clase térmica: >= 105°C
  • Tensión aislamiento: 600 V
  • Conductores: Cobre electrolítico/sección mínima 2 mm2
  • Rotulación : Por fase

 

La acometida de la luminaria debe realizarse a través de un sistema prensa estopa o similar, de tal modo que se asegure el grado de hermeticidad de la luminaria (IP y alivie los esfuerzos sobre las borneras de conexión.

 

6.3.2.6 Bornera de acometida
  • Clase térmica: >= 105°C
  • Tensión aislamiento: 600 V
  • Conductores: Cobre electrolítico/sección mínima 2 mm2
  • Rotulación : Por fase

Para conexión y desconexión de los cables de alimentación. De fijación libre dentro del conjunto eléctrico de la luminaria. Los contactos deben ser fabricados en un material no ferroso, protegido contra la corrosión y de dimensiones que garanticen el contacto eléctrico.

 

6.3.2.7 Receptáculo para instalación de la fotocelda

NEMA 7 PIN o celda de encendido y apagado programable

 

Fotocelda

El receptáculo deberá ser configurado con los 3 conductores estándar definidos en la ANSI C136.10

 

Ilustración 1: NEMA 7 PIN fotocelda receptáculo

 

 

La base podrá desplazarse entre 0° y 360° sobre su eje vertical para permitir la orientación, este procedimiento no debe afectar la hermeticidad de la luminaria.

 

Debe contar con bloqueo anti-giro o sistema que garantice fijación permanente a la carcasa de la luminaria.

 

Deben llevar marcadas como mínimo de forma permanente y legible la siguiente información:

 

  • Corriente máxima de operación
  • Nombre del fabricante
  • Identificación de los contactos de conexión
  • Modelo y referencia

 

6.3.2.8 Celda de Encendido y apagado programable

ET 811 Controles de encendido para luminarias grupales, individuales de horario programable

 

6.3.3 Características de la Carcasa:

Los componentes deben observar las siguientes características:

 

6.3.3.1 Pernería

Debe ser de acero inoxidable tipo AISI 304 o similar.

 

6.3.3.2 Sistema de fijación de la luminaria

La fijación debe realizarse fácilmente y sin necesidad de desarmar la luminaria. De utilizar accesorios complementarios, estos deben ser suministrados en conjunto con la luminaria.

 

Los tornillos de apriete del soporte al brazo, deben tener acceso libre para la herramienta

 

Los grados de inclinación del conjunto óptico como mínimo deben coincidir con la inclinación especificada en los diseños fotométricos ofertados.

 

El ajuste de inclinación debe operarse fácilmente y debe permitir una identificación clara del ángulo de inclinación, sin necesidad de quitar y volver a montar los componentes del equipo o abrir la cubierta.

 

El dispositivo debe ser ajustable incluso después de que el equipo de iluminación haya sido instalado, por un solo operador, permaneciendo estable en su posición final.

 

El rango de variación del ángulo, para ambas configuraciones enumeradas a continuación debe estar como mínimo entre:

 

a. -15 ° y 0 ° para montaje en pastorales o brazos, con un escalón mínimo no superior a 5 °.

b. 0 ° y + 15 ° para montaje en poste, con un escalón mínimo no superior a 5 °.

 

La luminaria debe permitir la instalación en soportes de 1 ½” o 2” (38 mm o 51 mm) sin suplementos. Se debe incorporar un sistema de aseguramiento antivandálico, el cual debe suministrarse, que dificulte el retiro de la luminaria del brazo soporte. Se podrá optar por uno de los siguientes sistemas:

 

a. Tornillo pasante de 3/8”x 80mm y tuerca cónica de cabeza fusible removible (galvanizados en caliente y con rosca estándar).

b. Varilla redonda 3/8” con grafilado en la punta de 20 mm.

c. Otro sistema antivandálico aprobado por la distribuidora.

 

Ilustración 2: Detalle de tuerca cónica

 

 

En caso de utilizar varilla grafilada debe ser instalada en el lado contrario al de los tornillos dispuestos para la fijación al soporte

 

6.3.3.3 Marcación

La marcación de la luminaria debe ir en una placa exterior metálica remachada (que no afecte el IP) o inyectada en el cuerpo de la luminaria, y deberá incluir la siguiente información:

 

  • Marca y logotipo de fabricante
  • Potencia
  • Modelo y referencia
  • Tensiones de conexión
  • Flujo luminoso (lm)
  • Temperatura de color (K)
  • IP garantizado (conjuntos óptico y eléctrico)
  • IK de la Luminaria
  • Clase de aislamiento
  • Mes y año de fabricación
  • Número de serie
  • Garantía
  • Contrato

 

Cada uno de los elementos que conforman el conjunto eléctrico de la luminaria, deben tener grabados el nombre de ENEL y el número de orden de compra o contrato. La información técnica debe ir grabada en cada uno de los elementos que conforman el conjunto eléctrico. En la carcasa se grabará en alto o bajo relieve, con letra imprenta de por lo menos 11 mm, la palabra ENEL, de igual manera se debe grabar en la luminaria, con un color de alto contraste, la potencia del equipo, buscando que sea visible desde el piso cuando la luminaria se encuentre instalada. En cada luminaria, se debe incluir en una parte visible, el diagrama de conexiones de los componentes internos. Dicho diagrama debe conservarse en el tiempo, ser indeleble y con una dimensión que permita su fácil observación y revisión.

 

Nota: La marcación con el nombre de Enel, es exclusivo para luminarias compradas por Enel, para luminarias de contratos de mantenimiento o propiedad de otra entidad este requerimiento no es necesario.

 

6.4 Requerimientos Luminotécnicos

 

6.4.1 Información fotométrica de la luminaria

Las características fotométricas serán para ángulos de inclinación de 0° y comprende obligatoriamente:

 

  • Curva Fotométrica.
  • Flujo luminoso global
  • Flujo luminoso del hemisferio superior
  • Diagrama Polar e Isolux
  • Curva del Coeficiente de Utilización.
  • Rendimiento de la luminaria
  • Archivo de fotometría en formato CEN, IES o LDT
  • Cálculo Luminotécnicos,

 

Nota: Todos los resultados luminotécnicos, deben ser emitidos por laboratorio internacional certificado. Para Colombia certificados de conformidad RETILAP

 

7. REQUISITOS DEL SISTEMA DE TELEGESTIÓN

 

Para los códigos que se proporcionan con la opción de telegestión, se requiere la instalación de un tipo de receptáculo adicional, no incluido para este suministro, el cuál será instalado fuera del equipo de iluminación y deberá conectarse con el driver de la luminaria.

 

Los equipos de telegestión deberán estar equipados con un conector compatible para LUMAWISE - Zhaga Book 18 (alimentación en CC con el equipo de telegestión y el driver 1-10 VDC, DALI 2.0 + D4i o derivado con dos cables para comunicación y transferencia de datos).

Ilustración 3: Diseño general de luminaria LED con equipo de telegestión.

 

Para activar la regulación del flujo lumínico, la unidad de alimentación de la luminaria deberá interactuar con la unidad de telegestión a través de los siguientes protocolos de comunicación 1-10 VDC y DALI 2.0(D4i)

 

La luminaria podrá ser comandada remotamente usando el equipo de telegestión, para el encendido, apagado, regular el flujo lumínico y recibir información sobre cualquier falla de la luminaria.

 

8. LISTA DE ENSAYOS

 

8.1 Ensayos Tipo:

 

8.1.1 Ensayos generales en la luminaria

 

Se deben realizar los ensayos tipo requeridos en IEC 60598-1 y IEC 60598-2-3

 

8.1.2 Ensayos particulares para luminarias LED

 

Se deben realizar los ensayos requeridos en, IEC 62722-1, IEC 62722-2-1

 

8.1.3 Ensayos sobre compatibilidad electromagnética en la luminaria

 

Se deben realizar los ensayos que correspondan y observar límites requeridos en IEC 61547, IEC 61000-3-2 y IEC 61000-3-3

 

8.1.4 Ensayos sobre seguridad fotobiológica en la luminaria

 

Se deben realizar los ensayos tipo y observar límites requeridos en IEC 62471

 

8.1.5 Ensayos sobre perturbación radioeléctrica en la luminaria

 

Se deben realizar los ensayos tipo y observar límites requeridos en UNE-EN 55015

 

8.1.6 Ensayos generales en el módulo LED

 

Se deben realizar los ensayos tipo y observar límites requeridos en IEC 62031

 

8.1.7 Ensayos fotométricos en el módulo LED y luminaria

 

Se deben realizar los ensayos y procedimientos indicados en UNE-EN 13032-1, UNE-EN 13032-4, CIE 127, IESNA LM80-08, IESNA TM30-19 y IESNA TM21

 

8.1.8 Ensayos generales en el dispositivo de control LED (DRIVER)

 

Se deben realizar los ensayos tipo y observar límites requeridos en IEC 61347-2-13 y IEC62384

 

 

8.2 Ensayos Especiales      

 

8.2.1 Ensayos de vibración

 

Se deben realizar los ensayos propuestos en IEC 60068-2-6

 

8.2.2 Ensayos de niebla salina y resistencia a la corrosión

 

Se deben realizar los ensayos propuestos en IEC 60068-2-52 o ASTM B1117 con una duración de un mínimo de 1000 horas.

 

 

8.3 Ensayos de Rutina

 

8.3.1 Ensayos generales en la luminaria

 

  • Verificación visual y dimensional de los aspectos constructivos y componentes de la luminaria
  • Ensayo de hermeticidad y resistencia mecánica, indicados en IEC 60598-1, IEC 60598- 2-3
  • Ensayo de resistencia de aislamiento y rigidez dieléctrica indicados en IEC 60598-1 y IEC 60598- 2-3
  • Ensayo de adherencia de pintura, indicados en ASTM D3353

     

8.4 Ensayos particulares para luminarias LED

 

  • Parámetros eléctricos nominales (tensión, corriente, potencia, factor de potencia), flujo luminoso, eficacia luminosa, índice de reproducción de color inicial (CRI), coordenada cromática inicial a la temperatura ambiente requerida bajo lo indicado en, IEC 62722-1 y IEC 62722-2-1, IESNA LM79-19,
  • Ensayos de distorsión armónica de corriente según IEC 61000-3-2.

     

8.5 Plan para ensayos de rutina:

 

Todos los ensayos de rutina indicados en el numeral 12.3 serán realizados por el proveedor en todas las muestras seleccionadas de acuerdo con el plan de muestreo siguiente, según norma ISO 2859:

 

  • Verificación dimensional, nivel de inspección general II y AQL = 2.5%
  • Ensayos mecánicos, eléctricos, fotométricos, nivel de inspección especial S-3 AQL=2.5%

 

Para cada pieza que pertenezca al lote seleccionado, el proveedor preparará un informe de ensayo con los resultados de las pruebas realizadas.

 

9. DOCUMENTACIÓN

 

Se deberá presentar la siguiente información, en idioma español:

 

  • Fichas técnicas o resultados (informes de ensayo) de los ensayos tipo realizados en un laboratorio certificado ISO 17025, para todas las distintas versiones y modelos ofertados.

 

  • Documentación que acredite la certificación de la conformidad de la luminaria con la normativa vigente en el país de referencia.

 

  • Para Colombia, documentación queesté esté de acuerdo con el RETILAP: Artículo 2.6.1. Requisitos generales de la categoría - Productos de iluminación para alumbrado público, con la totalidad de los requisitos de marcación en el cuerpo del producto, empaque, ficha técnica y los ensayos mínimos requeridos del alumbrado público.

 

  • Ficha técnica sobre la etiqueta ecológica que se colocará en los paquetes de las luminarias

 

  • Informes de los ensayos enumerados, además de los documentos sobre los ensayos realizados en los laboratorios de medición, mencionados en el punto 8

 

  • Documentación certificada de las curvas fotométricas para cada sistema óptico emitido para cada versión de 4000 K, para las luminarias de 3000 K se debe considerar un factor de corrección de flujo el cuál debe ser mayor o igual a 97% del flujo de la luminaria de 4000 K. El proveedor también debe preparar y suministrar los diagramas de potencia de cada flujo.

 

  • Manual de instrucciones completo, relativo a las operaciones de montaje, desmontaje, sustitución de accesorios y mantenimiento, según se especifica mejor en el punto 6.3.

 

  • Ficha técnica resumida, en formato Power Point, de la luminaria, con indicación de todas las características eléctricas / mecánicas y de ingeniería de iluminación (tensión de funcionamiento, factor de potencia cos phi, potencia, frecuencia de funcionamiento, resistencia mecánica de la pantalla protectora, flujo luminoso, etc.) en los diferentes tamaños y modelos producidos.

 

  • El Anexo E y el Anexo F debidamente rellenados de acuerdo con las características de la luminaria requerida.
  • Memoria descriptiva de la luminaria, detalles constructivos, materiales empleados, forma de instalación, mantenimiento, posibilidad de reposición de distintos componentes y demás especificaciones.

 

  • Planos a escala conveniente, de planta, alzado y perspectiva del elemento

 

  • Registro fotográfico de buena resolución de la luminaria.

 

  • Datos técnicos garantizados de la luminaria y sus componentes, donde se describan sus características, dimensiones, prestaciones y parámetros técnicos de funcionamiento. En formato Excel y PDF.

 

  • Información adicional que considere aporta explicación a su diseño (dibujos, detalles, características de operación, dimensiones y pesos de los materiales ofertados)

 

  • Catálogo original actualizado del producto ofertado

 

  • Características del módulo LED instalado en la luminaria

 

  • Ficha técnica del LED utilizado

 

  • Ficha técnica del dispositivo de control (DRIVER) instalado en la luminaria.

 

  • Expediente fotométrico actualizado, los cálculos luminotécnicos solicitados en la especificación y el archivo fotométrico en formato IES o LDT

 

  • Cálculos luminotécnicos solicitados, se debe anexar los reportes completos que arroja el software empleado.

 

  • De ser adjudicados deberán pasar por un proceso de TCA (Technical Conformity Assessment) que es la evaluación de la conformidad técnica del producto ofertado en referencia a la presente especificación técnica. Adicionalmente deberá proporcionar cuatro (04) muestras por cada modelo ofertado, las cuales se instalarán en una vía similar a la requerida y se medirán los valores luminotécnicos solicitados. Las mediciones validarán los valores solicitados en la especificación técnica.

 

  • El Anexo A y el Anexo C debidamente rellenados de acuerdo con las características de la luminaria requerida.

 

  • Para Colombia, adicionalmente deberán presentar la siguiente información:

 

  • Memoria de cálculo del diseño vigente, dispuesto por RETILAP, con la metodología y los resultados del diseño: Incluyendo parámetros de cálculo, y resultados (valores garantizados) del diseño: Luminancia (Lprom, Uo, UL, TI, SR) e Iluminancia (Eprom, Uo).
  • Certificado de conformidad de producto de la luminaria según RETILAP, expedida por un organismo acreditado. Se debe incluir los anexos correspondientes.

 

  • Certificado de producto del dispositivo de control (DRIVER), expedido por organismo acreditado.

 

  • Matriz de intensidades por cada referencia con certificación expedida por un organismo acreditado.

 

  • Certificado de calidad ISO 9001.

 

10. GARANTÍA

 

Este requerimiento será indicado en el momento de la licitación.

 

El proveedor se compromete a garantizar el funcionamiento de las luminarias suministradas, después de la instalación, según el procedimiento que se describe a continuación, que será de aplicación durante cinco años consecutivos a partir del año natural siguiente a la fecha correspondiente al primer pedido que Enel emita al proveedor.

 

Para aplicar la garantía sobre los productos suministrados, se utilizará un índice de confiabilidad porcentual anual (фi) definido como:

 

фi = número porcentual de productos fallidos en el i-ésimo año, en relación con las instalaciones realizadas hasta ese momento desde la fecha de emisión del primer pedido. Si фi≤2%, la causa de la falla puede ser atribuible a fenómenos estadísticamente aleatorios, incluidos fenómenos originados por agentes externos de diversos tipos que no dependen de las operaciones del técnico de mantenimiento o instalador (rayos indirectos, sobretensiones, etc.)

 

Si el índice de confiabilidad porcentual anual es superior a фi ≥2%, independientemente de la causa de la falla (la excepción se detalla en el párrafo siguiente), se requerirá al proveedor reconocer los costes de suministro y sustitución de las cantidades de luminarias defectuosas, o de sus accesorios, que superen este valor porcentual (cláusula de garantía).

 

La cláusula se aplica a todos los casos de falla, a excepción de las fallas debidas a:

  • Actos de vandalismo

  • Rayo directo

  • Eventos meteorológicos importantes y graves (inundaciones, terremotos, etc. informados por los medios de comunicación locales o nacionales)

  • Instalación incorrecta y fallas causadas por operaciones humanas

 

11. ANEXOS

 

ANEXO A: Obligaciones del proveedor durante el proceso de adjudicación y firma del contrato.

 

El suministro sólo podrá realizarse tras superar los ensayos indicados en el punto 8, en todas las versiones y modelos ofertados.

 

Después de las pruebas exitosas, algunas de las cuales se llevaron a cabo en un laboratorio certificado ISO 17025, el adjudicatario se compromete a presentar la siguiente documentación establecida en el punto 9.

 

Para el caso de la documentación certificada de las curvas fotométricas, el proveedor adjudicado provisionalmente, deberá emitir curvas fotométricas certificadas por un laboratorio externo con certificación ISO17025 y presentarlas en un plazo no mayor a 45 días luego de la adjudicación.

 

Además, el adjudicatario se compromete a suministrar las piezas de repuesto y los accesorios relacionados durante un período no menor a 5 años, a partir de la fecha de inicio de la producción.

 

Si por obsolescencia tecnológica de algunos componentes o por razones de mercado, convenientemente justificadas, fuera necesario realizar cambios en la luminaria, el proveedor se compromete a implementar todas las acciones, medios y herramientas necesarias, para permitir la continuidad de la producción.

 

ANEXO B: Gastos del proveedor y condiciones para suministro.

 

Los siguientes gastos corresponden al proveedor y están incluidos en el contrato de suministro:

 

  • Gastos de propiedad intelectual
  • Diseño, investigación y desarrollo, pruebas de laboratorio, otras pruebas y uso de materiales de prueba
  • Ingeniería para la elaboración de prototipos de equipos y muestras
  • Diseño, producción y mantenimiento de equipos de producción.
  • Depósito de montaje, embalaje y almacén
  • Carga, estiba en unidades de transporte y transporte según INCOTERM requerido
  • Recuperación de cualquier equipo de iluminación o accesorios defectuoso
  • Pruebas o ensayos de aceptación
  • Ampliación del ensayo de resistencia a la niebla salina hasta las 1500h, cuando lo solicite Enel;
  • Operaciones de prueba, confirmación y verificación de suministro;
  • Cualquier ensayo especial (máximo tres) si lo solicita Enel, para asegurar que los productos suministrados cumplen con las especificaciones de este documento (por ejemplo, análisis químico-físicos de los materiales utilizados)
  • Pruebas fotométricas, de compatibilidad electromagnética, seguridad y resistencia a sobretensiones
  • Certificaciones a través de laboratorios especializados y acreditados con ISO 17025
  • Gastos de obtención de una etiqueta “ecológica” para colocar en todos los equipos de
  • iluminación.
  • Gastos de "branding" de las luminarias

 

ANEXO C: Documentos a presentar por el proveedor para participar en la licitación

 

Para participar en la licitación, el postor deberá presentar la siguiente documentación:

 

Documento (A): Declaración de conformidad

 

Declaración que acredite la plena conformidad de los dispositivos de iluminación LED, en todos los tamaños, modelos y versiones propuestos en la presente especificación y las normas técnicas vigentes aplicables, así como estar en posesión de las capacidades técnico-profesional y de producción de los suministros propuestos según el proceso de calidad ISO 9001: 2015. Al participar en la licitación, el proveedor declara haber leído todos los puntos y capítulos de esta especificación técnica y acepta su contenido.

 

Documento (B): Garantía

 

Una declaración de garantía para todos los productos suministrados, por motivos atribuibles a defectos de diseño, montaje, materiales y producción y por motivos atribuibles a fenómenos externos aleatorios no dependientes de factores humanos. Si el número anual de fallas o mal funcionamiento de los equipos cubiertos por la garantía excede el límite establecido en el punto 10 de la especificación técnica relativa al índice de confiabilidad del 2%.

 

ANEXO D: CARACTERÍSTICAS TÉCNICAS GARANTIZADAS

 

ITEMCARACTERÍSTICASUNIDADVALOR REQUERIDOVALOR OFERTADO
1Información general   
1.1Fabricante-Indicar 
1.2País de fabricación-Indicar 
1.5Modelo-Indicar 
1.7DimensionesmmIndicar 
1.8PesoKgIndicar 
2Luminaria LED   
2.1Potencia de entrada nominal (incluye pérdidas)WIndicar 
2.2Tensión nominal de alimentaciónV120 -277 
2.3FrecuenciaHz60 
2.4Factor de potencia >=0.9 
2.5Flujo luminoso nominallmIndicar 
2.6Eficacia luminosalm/W>=130 
2.7Clase de aislamiento >= Clase 1 
3Conjunto Óptico   
 Hermeticidad óptica-IP66 o superior o su equivalente NEMA  
 Resistencia al impacto-IK08 o superior o su equivalente en   Joules 
3.1Módulo LED   
3.1.1País de fabricación / Marca / Modelo LED Indicar 
3.1.2Cantidad LED por Módulo LED Indicar 
3.1.3Cantidad de Módulo LED por Luminaria-Indicar 
3.1.4Corriente de operación máximamAIndicar 
3.1.5Temperatura de Color (CCT)K2800>=CCT=<4500K 
3.1.6Índice de Reproducción de Color (CRI) >= 70 
3.1.7Coordenada cromática (inicial/mantenida)X1, Y1 / / X2, Y2Indicar 
3.1.8Tolerancia para los valores de coordenadas cromá-ticas obtenidas (basado en las elipses McAdam) 5 
3.1.9Código de mantenimiento Flujo Luminoso. Indicar 
3.1.10Tiempo de vida y mantenimiento de flujo luminoso asociado (Ta = 35°C)horasVer numeral 9.1 
3.1.11Incorpora protección exterior SI/NO 
3.1.12Para ColombiaAMenor o igual a la indicada para funcionar el arreglo de los Leds, y garantizar L70 >= 100.000 horas 
Corriente máxima circulante por el paquete LED (package LED) y certificado del fabricante
3.2Protección exterior-  
3.2.1MaterialVidrio liso templadoIndicar 
3.2.2Material de empaquetadura de cierre-Indicar 
4Conjunto Eléctrico   
 Hermeticidad-66 o superior o su equivalente en NEMA 
 Resistencia al impacto-IK08 o superior o equivalente en Joules 
4.1Dispositivo de control LED (DRIVER)   
4.1.1País de fabricación / Marca / Modelo Indicar 
4.1.2Tensión nominal de entradaVac120-277 
4.1.3FrecuenciaHz60 
4.1.4Distorsión armónica de corriente máxima(THD)%<=20% 
4.1.5Factor de potencia mínimo >0.9 
4.1.6Tensión de salidaVdcIndicar 
4.1.7Corriente salidaAIndicar 
4.1.8Potencia de salidaWIndicar 
4.1.9Hermeticidad IP66 
4.1.10Clase de aislamiento I /II 
4.1.11Interfaz de comunicación 1-10 VDC y DALI 2.0 (D4i) 
4.1.12Vida útilhoras100000 
4.1.13Protección sobre corriente SI 
4.1.14Protección cortocircuito SI 
4.1.15Protección sobre voltaje SI 
4.1.16Protección sobre temperatura SI 
4.1.17Dimensiones del DrivermmIndicar 
4.2DPS   
4.2.1País de fabricación / Marca / Modelo Indicar 
4.2.2Número de Polos Línea/Línea o Neutro/ 
4.2.3Tensión máxima de operaciónV277 
4.2.4Tensión de protección (L-L/L-L-T)kV1,5 
4.2.5Tensión máxima de descarga (U0c)kV10 
4.2.6Corriente nominal de descarga (8/20µs)kA6.5 
4.2.7Corriente máxima de descarga (Imax)ka10 
4.2.8Grado hermeticidad mínima IP66 
4.2.9Tipo 3 
4.2.10Clase de aislamientoIndicarI/II 
4.2.11PSP-SI/NO 
5Carcasa   
5.1Tipo Fabricación inyectado/extrusión 
5.2Material / Tipo Aleación-Aluminio 
5.3Acabado final Pintura electrostática de resina poliéster. Otro autorizado 
5.4Espesor mínimommIndicar 
5.5Marcación de Luminaria con los siguientes datos:-Si 
- Marca de fábrica
- Potencia
- Modelo y referencia
- Tensiones de conexión
- Flujo luminoso (lm)
- Temperatura de color (K)
- Mes y año de fabricación
- IP garantizado (conjuntos óptico y eléctrico)
- IK de la Luminaria
- Clase de aislamiento
- Número de serie
- Garantía
- Contrato
 - Marcar de forma legible e indeleble en la placa de la luminaria (o en su interior) la corriente y tensión de trabajo del módulo LED con que fue fabricada.   
6Accesorios incorporados   
6.1Bornera de alimentación SI 
6.2Sistema anti hurto de la luminaria-Sí (Especificar) 
6.3Base para fotocontrol-SI 
6.4Tornillo antigiro en base fotocontrol- 
6.5Cumple norma ANSI C136.41, C136.10 SI/NO 
6.6Accesorio de fijación al soporte-SI 
6.7Dimensiones de fijación de la luminaria La luminaria deberá permitir la fijación a un tubo metálico de 1.5 -2 pulgadas de diámetro nominal sin suplementos-Sí (Especificar) 
6.8Posiciones de escalones de fijación que permite Indicar 
6.9Disipadores de calor pasivos SI/NO 
6.1Cuenta la acometida con prensaestopa SI/NO 
7Equipo Telegestión luminaria   
7.1País de fabricación / Marca / Modelo Indicar 
7.2Tensión de entradaVacSolicitada 
7.3Frecuencia de operaciónHzSolicitada 
7.4Potencia máxima instalable 400W 
7.5Distorsión armónica <5% 
7.6Clase de aislamiento II 
7.7Interfaz de alimentación a luminaria 1-10V yDALI2.0 (D4i) 
7.8Comunicación local en sitio Wireless o similar / NFC 
7.9Comunicación a módulo concentrador PLC con protocolo Meters and more (SI/NO) 
7.1Vida útilhoras>80000 
8Reporte de ensayos principales   
8.1Ensayos generales en la luminaria IEC 60598-1 y IEC 60598-2-3 
8.2Ensayos particulares para luminarias LED IEC 62722-1 y IEC 62722-2-1 
8.3Ensayos sobre compatibilidad electromagnética en la luminaria IEC 61547, IEC 61000-3-2 y IEC 61000-3-3 
8.4Ensayos sobre seguridad fotobiológica en la luminaria IEC 62471 
8.5Ensayos sobre perturbación radioeléctrica en la luminaria UNE-EN 55015 
8.6Ensayos generales en el módulo LED IEC 62471 
8.7Ensayos fotométricos en el módulo LED y luminaria UNE-EN 13032-1, UNE- EN 13032-4, CIE 127-IESNA LM79-08, IESNALM80-08, TM21 
8.8Ensayos generales en el Dispositivo de Control LED(DRIVER) IEC 61347-2-13 y IEC62384 
9Certificaciones   
9.1Sistema de calidad ISO 9001 del fabricante   
9.1.1Entidad acreditadora   
9.1.2Número de acreditación   
9.1.3Fecha de aprobación   
9.1.4Vigencia   
9.1.5Adjunta certificado SI/NO 
9.2Certificación de producto (RETILAP)   
9.2.1Entidad acreditadora   
9.2.2Número de acreditación   
9.2.3Fecha de aprobación   
9.2.4Vigencia   
9.2.5Adjunta certificado SI/NO 
9.3Sistema de calidad ISO 9001 del proveedor   
9.3.1Entidad acreditadora   
9.3.2Número de acreditación   
9.3.3Fecha de aprobación   
9.3.4Vigencia   
9.3.5Adjunta certificado SI/NO 
9.4Certificación bajo Norma LED ENEL   
9.4.1Entidad acreditadora   
9.4.2Número de acreditación   
9.4.3Fecha de aprobación   
9.4.4Vigencia   
9.4.5Adjunta certificado SI/NO 
10Documentación   
10.1Memoria descriptiva   
10.2Planos a escala   
10.3Registro fotográfico   
10.4Fichas técnicas: Luminarias/LED/Disp. Control LED(Driver)   
10.5Expediente fotométrico de la luminaria   
10.6Cálculos luminotécnicos solicitados   
10.7Para Colombia documentación que esté de acuerdo con el RETILAP: Artículo 2.6.1. Requisitos generales de la categoría - Productos de iluminación para alumbrado público, con la totalidad de los requisitos de marcación en el cuerpo del producto, empaque, ficha técnica y los ensayos mínimos requeridos del Alumbrado público. SI 

 

ANEXO E: PRESENTACIÓN DE RESULTADOS LUMINOTÉCNICOS

 

Informacion de la Luminaria
ProcedenciaFabricanteModeloAño
    
Potencia nominal (W)Flujo nominal (lumenes)Eficacia(lum/W)# Módulos led# Led x módulo
    
Nombre Archivo fotométricoFormato archivo fotométricoSoftware iluminación empleado (Certificado)
   
        

Detalle general de la Instalacion vial y resultados luminotecnicos

Tabla Resumen de Resultados FotométricosNombre del Perfil vial
Detalle del Perfil vial
Acera 1CiclorrutaCalzada 1Andén 1Calzada 2
Luminaria Características Perfil     
Fotometría de Luminaria     
Fuente LuminosaLED
Potencia (W)     
Altura de Montaje (m)     
Inclinación (°)     
Interdistancia (m) 
Ancho (m)     
Factor de Manteniento [Tabla 3.3.1.9. c.] 
De [kWh/m^2 año] 
Dp [W/lx*m²] 
Superficie de la carretera [Tabla. 3.3.1.2. a.]
Estado seco
Clase de iluminación 
Luminancia promedio Lprom (cd/m2)N/AN/A N/A 
Uo (mín/med)N/AN/A N/A 
UL (mín/max)N/AN/A N/A 
fTIN/AN/A N/A 
Relación entorno mínimo EIRN/AN/A N/A 
Iluminancia Em (Lux)N/AN/A N/A 
Iluminancia UoN/AN/A N/A 

En andenes adyacentes
 [Tabla. 3.3.1.2. a.]
 
Emed (Lux)  N/A N/A
Punto mín. Emín (Lux)  N/A N/A
Ilumin. Vertical mínima (Evmín, Lux)  N/A N/A
Ilumin. Semi cilíndrica mínima (Esc,mín, Lux)  N/A N/A
Uniformidad General Uo %  N/A N/A

*La configuración del perfil vial puede variar de acuerdo con la disposición y geometría de vía.

 

Para Colombia, adicionalmente deberán presentar la siguiente información;

 

  • Memoria de cálculo del diseño vigente, dispuesto por RETILAP, con la metodología y los resultados del diseño: Incluyendo parámetros de cálculo, y resultados (valores garantizados) del diseño lo establecido en el RETILAP Libro 3, resolución 40150 de 2024.


ANEXO F. PERFILES DE VÍAS TÍPICOS 

 

Los documentos que forman parte de este anexo son complementarios y deben ser cumplidos por las luminarias a instalarse en Colombia.

Nota 1: Los perfiles viales para Bogota según Decreto 555 del 2021, en sus artículos 154 y 155 no están incluidos.

Nota 2: Algunas notas importantes no aplican en Bogota.

 

PERFIL 1 VIA TIPICA

 

MALLA VIAL LOCAL VÍA TÍPICA CON LUMINARIA POTENCIA   (a definir por el proveedor)

LUMINARIA DEL PERFILANCHOTipo de disposicionInterdistancia (m)Altura de montaje (m)
CalzadaAnden
(a definir por el proveedor)6-8 m1-3mUnilateral y Bilateral en alternacia358.4
VÍA TÍPICA

 

Clasificacion vial

M5

Niveles ExigidosSegún lo establecido en el RETILAP Resolucion 40150 de 03 May 2024, Libro 3,Tabla. 3.3.1.2. a.
Notas importantesTodos los cálculos deben ser realizados con el brazo de 1.5 m, sin embargo, para casos especiales se podra utilizar los demas tipos de brazo o soportes, exigidos en la ET800-1 Soportes usados en los postes de AP, ET832.

Para todos los Perfiles el proponente debe entregar diseño fotométrico, segun lo establecido en el Artículo 3.1.4.,   3.1.4.3. Diseño detallado.

El proponente debe adjuntar en el diseño la matriz de intensidades en formato IES (*.ies) y el soporte documental de las pruebas LM79.

El factor de mantenimiento se establece segun lo descrito en el numeral 3.2.1.10.1. Factor de mantenimiento. 
 

PERFIL 2 VIA TIPICA

 

MALLA VIAL LOCAL VÍA TÍPICA CON LUMINARIA POTENCIA   (a definir por el proveedor)

LUMINARIA DEL PERFILANCHOTipo de disposicionInterdistancia (m)Altura de montaje (m)
CalzadaAnden
(a definir por el proveedor)8-10 m1-3mUnilateral y Bilateral en alternacia358.4
VÍA TÍPICA
Clasificacion vial

M5

Niveles ExigidosSegún lo establecido en el RETILAP Resolucion 40150 de 03 May 2024, Libro 3,Tabla. 3.3.1.2. a.
Notas importantesTodos los cálculos deben ser realizados con el brazo de 1.5 m, sin embargo, para casos especiales se podra utilizar los demas tipos de brazo o soportes, exigidos en la ET800-1 Soportes usados en los postes de AP, ET832.

Para todos los Perfiles el proponente debe entregar diseño fotométrico, segun lo establecido en el Artículo 3.1.4.,   3.1.4.3. Diseño detallado.

El proponente debe adjuntar en el diseño la matriz de intensidades en formato IES (*.ies) y el soporte documental de las pruebas LM79.

El factor de mantenimiento se establece segun lo descrito en el numeral 3.2.1.10.1. Factor de mantenimiento. 
 

PERFIL 3 VIA TIPICA

 

MALLA VIAL LOCAL VÍA TÍPICA CON LUMINARIA POTENCIA   (a definir por el proveedor)

LUMINARIA DEL PERFILANCHOTipo de disposicionInterdistancia (m)Altura de montaje (m)
CalzadaAnden
(a definir por el proveedor)6-8 m1-3mUnilateral y Bilateral en alternacia358.4
VÍA TÍPICA
Clasificacion vial

M4

Niveles ExigidosSegún lo establecido en el RETILAP Resolucion 40150 de 03 May 2024, Libro 3,Tabla. 3.3.1.2. a.
Notas importantesTodos los cálculos deben ser realizados con el brazo de 1.5 m, sin embargo, para casos especiales se podra utilizar los demas tipos de brazo o soportes, exigidos en la ET800-1 Soportes usados en los postes de AP, ET832.

Para todos los Perfiles el proponente debe entregar diseño fotométrico, segun lo establecido en el Artículo 3.1.4.,   3.1.4.3. Diseño detallado.

El proponente debe adjuntar en el diseño la matriz de intensidades en formato IES (*.ies) y el soporte documental de las pruebas LM79.

El factor de mantenimiento se establece segun lo descrito en el numeral 3.2.1.10.1. Factor de mantenimiento. 
 

PERFIL 4 VIA TIPICA

 

MALLA VIAL LOCAL VÍA TÍPICA CON LUMINARIA POTENCIA   (a definir por el proveedor)

LUMINARIA DEL PERFILANCHOTipo de disposicionInterdistancia (m)Altura de montaje (m)
CalzadaAnden
(a definir por el proveedor)8-10 m1-3mUnilateral y Bilateral en alternacia358.4
VÍA TÍPICA
Clasificacion vial

M4

Niveles ExigidosSegún lo establecido en el RETILAP Resolucion 40150 de 03 May 2024, Libro 3,Tabla. 3.3.1.2. a.
Notas importantesTodos los cálculos deben ser realizados con el brazo de 1.5 m, sin embargo, para casos especiales se podra utilizar los demas tipos de brazo o soportes, exigidos en la ET800-1 Soportes usados en los postes de AP, ET832.

Para todos los Perfiles el proponente debe entregar diseño fotométrico, segun lo establecido en el Artículo 3.1.4.,   3.1.4.3. Diseño detallado.

El proponente debe adjuntar en el diseño la matriz de intensidades en formato IES (*.ies) y el soporte documental de las pruebas LM79.

El factor de mantenimiento se establece segun lo descrito en el numeral 3.2.1.10.1. Factor de mantenimiento. 
 

PERFIL 5 VIA TIPICA

 

MALLA VIAL LOCAL VÍA TÍPICA CON LUMINARIA POTENCIA   (a definir por el proveedor)

LUMINARIA DEL PERFILANCHOTipo de disposicionInterdistancia (m)Altura de montaje (m)
CalzadaAnden
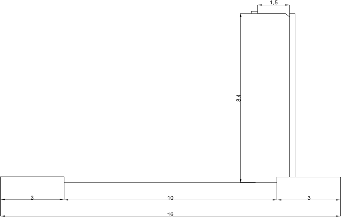
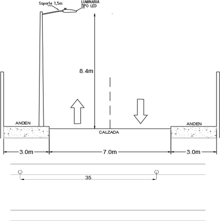
(a definir por el proveedor)7 m3mUnilateral20-358,4-10,2
VÍA TÍPICA

 

Clasificacion vial

M3

Niveles ExigidosSegún lo establecido en el RETILAP Resolucion 40150 de 03 May 2024, Libro 3,Tabla. 3.3.1.2. a.
Notas importantesTodos los cálculos deben ser realizados con el brazo de 1.5 m, sin embargo, para casos especiales se podra utilizar los demas tipos de brazo o soportes, exigidos en la ET800-1 Soportes usados en los postes de AP, ET832.

Para todos los Perfiles el proponente debe entregar diseño fotométrico, segun lo establecido en el Artículo 3.1.4.,   3.1.4.3. Diseño detallado.

El proponente debe adjuntar en el diseño la matriz de intensidades en formato IES (*.ies) y el soporte documental de las pruebas LM79.

El factor de mantenimiento se establece segun lo descrito en el numeral 3.2.1.10.1. Factor de mantenimiento. 
 

PERFIL 6 VIA TIPICA

 

MALLA VIAL LOCAL VÍA TÍPICA CON LUMINARIA POTENCIA   (a definir por el proveedor)

LUMINARIA DEL PERFILANCHOTipo de disposicionInterdistancia (m)Altura de montaje (m)
CalzadaAnden
(a definir por el proveedor)10-15 m1-3mUnilateral358.4-10.2
VÍA TÍPICA

 

Clasificacion vial

M3

Niveles ExigidosSegún lo establecido en el RETILAP Resolucion 40150 de 03 May 2024, Libro 3,Tabla. 3.3.1.2. a.
Notas importantesTodos los cálculos deben ser realizados con el brazo de 1.5 m, sin embargo, para casos especiales se podra utilizar los demas tipos de brazo o soportes, exigidos en la ET800-1 Soportes usados en los postes de AP, ET832.

Para todos los Perfiles el proponente debe entregar diseño fotométrico, segun lo establecido en el Artículo 3.1.4.,   3.1.4.3. Diseño detallado.

El proponente debe adjuntar en el diseño la matriz de intensidades en formato IES (*.ies) y el soporte documental de las pruebas LM79.

El factor de mantenimiento se establece segun lo descrito en el numeral 3.2.1.10.1. Factor de mantenimiento. 
 

PERFIL 7 VIA TIPICA

 

MALLA VIAL LOCAL VÍA TÍPICA CON LUMINARIA POTENCIA   (a definir por el proveedor)

LUMINARIA DEL PERFILANCHOTipo de disposicionInterdistancia (m)Altura de montaje (m)
CalzadaAndenCiclorruta
(a definir por el proveedor)10-15 m1-3m1.5mUnilateral358.4-10.2
VÍA TÍPICA

 

 

Clasificacion vial

M3

Niveles ExigidosSegún lo establecido en el RETILAP Resolucion 40150 de 03 May 2024, Libro 3,Tabla. 3.3.1.2. a.
Notas importantesTodos los cálculos deben ser realizados con el brazo de 1.5 m, sin embargo, para casos especiales se podra utilizar los demas tipos de brazo o soportes, exigidos en la ET800-1 Soportes usados en los postes de AP, ET832.

Para todos los Perfiles el proponente debe entregar diseño fotométrico, segun lo establecido en el Artículo 3.1.4.,   3.1.4.3. Diseño detallado.

El proponente debe adjuntar en el diseño la matriz de intensidades en formato IES (*.ies) y el soporte documental de las pruebas LM79.

El factor de mantenimiento se establece segun lo descrito en el numeral 3.2.1.10.1. Factor de mantenimiento. 
 

PERFIL 8 VIA TIPICA

 

MALLA VIAL LOCAL VÍA TÍPICA CON LUMINARIA POTENCIA   (a definir por el proveedor)

LUMINARIA DEL PERFILANCHOTipo de disposicionInterdistancia (m)Altura de montaje (m)
CalzadaAnden
(a definir por el proveedor)10-15 m1-3mBilateral358.4-10.2
VÍA TÍPICA

 

Clasificacion vial

M3

Niveles ExigidosSegún lo establecido en el RETILAP Resolucion 40150 de 03 May 2024, Libro 3,Tabla. 3.3.1.2. a.
Notas importantesTodos los cálculos deben ser realizados con el brazo de 1.5 m, sin embargo, para casos especiales se podra utilizar los demas tipos de brazo o soportes, exigidos en la ET800-1 Soportes usados en los postes de AP, ET832.

Para todos los Perfiles el proponente debe entregar diseño fotométrico, segun lo establecido en el Artículo 3.1.4.,   3.1.4.3. Diseño detallado.

El proponente debe adjuntar en el diseño la matriz de intensidades en formato IES (*.ies) y el soporte documental de las pruebas LM79.

El factor de mantenimiento se establece segun lo descrito en el numeral 3.2.1.10.1. Factor de mantenimiento. 
 

PERFIL 9 VIA TIPICA

 

MALLA VIAL LOCAL VÍA TÍPICA CON LUMINARIA POTENCIA   (a definir por el proveedor)

LUMINARIA DEL PERFILANCHOTipo de disposicionInterdistancia (m)Altura de montaje (m)
CalzadaAndenCiclorruta
(a definir por el proveedor)10-15 m1-3m1.5mBilateral358.4-10.2
VÍA TÍPICA

 

Clasificacion vial

M3

Niveles ExigidosSegún lo establecido en el RETILAP Resolucion 40150 de 03 May 2024, Libro 3,Tabla. 3.3.1.2. a.
Notas importantesTodos los cálculos deben ser realizados con el brazo de 1.5 m, sin embargo, para casos especiales se podra utilizar los demas tipos de brazo o soportes, exigidos en la ET800-1 Soportes usados en los postes de AP, ET832.

Para todos los Perfiles el proponente debe entregar diseño fotométrico, segun lo establecido en el Artículo 3.1.4.,   3.1.4.3. Diseño detallado.

El proponente debe adjuntar en el diseño la matriz de intensidades en formato IES (*.ies) y el soporte documental de las pruebas LM79.

El factor de mantenimiento se establece segun lo descrito en el numeral 3.2.1.10.1. Factor de mantenimiento. 
 

PERFIL 10 VIA TIPICA

 

MALLA VIAL LOCAL VÍA TÍPICA CON LUMINARIA POTENCIA   (a definir por el proveedor)

LUMINARIA DEL PERFILANCHOTipo de disposicionInterdistancia (m)Altura de montaje (m)
CalzadaAnden
(a definir por el proveedor)10-15 m1-3mBilateral en alternacia358.4-10.2
VÍA TÍPICA
Clasificacion vial

M3

Niveles ExigidosSegún lo establecido en el RETILAP Resolucion 40150 de 03 May 2024, Libro 3,Tabla. 3.3.1.2. a.
Notas importantesTodos los cálculos deben ser realizados con el brazo de 1.5 m, sin embargo, para casos especiales se podra utilizar los demas tipos de brazo o soportes, exigidos en la ET800-1 Soportes usados en los postes de AP, ET832.

Para todos los Perfiles el proponente debe entregar diseño fotométrico, segun lo establecido en el Artículo 3.1.4.,   3.1.4.3. Diseño detallado.

El proponente debe adjuntar en el diseño la matriz de intensidades en formato IES (*.ies) y el soporte documental de las pruebas LM79.

El factor de mantenimiento se establece segun lo descrito en el numeral 3.2.1.10.1. Factor de mantenimiento. 
 

PERFIL 11 VIA TIPICA

 

MALLA VIAL LOCAL VÍA TÍPICA CON LUMINARIA POTENCIA   (a definir por el proveedor)

LUMINARIA DEL PERFILANCHOTipo de disposicionInterdistancia (m)Altura de montaje (m)
CalzadaAndenCiclorruta
(a definir por el proveedor)10-15 m1-3m1.5mBilateral en alternacia358.4-10.2
VÍA TÍPICA

 

Clasificacion vial

M3

Niveles ExigidosSegún lo establecido en el RETILAP Resolucion 40150 de 03 May 2024, Libro 3,Tabla. 3.3.1.2. a.
Notas importantesTodos los cálculos deben ser realizados con el brazo de 1.5 m, sin embargo, para casos especiales se podra utilizar los demas tipos de brazo o soportes, exigidos en la ET800-1 Soportes usados en los postes de AP, ET832.

Para todos los Perfiles el proponente debe entregar diseño fotométrico, segun lo establecido en el Artículo 3.1.4.,   3.1.4.3. Diseño detallado.

El proponente debe adjuntar en el diseño la matriz de intensidades en formato IES (*.ies) y el soporte documental de las pruebas LM79.

El factor de mantenimiento se establece segun lo descrito en el numeral 3.2.1.10.1. Factor de mantenimiento. 

La configuración de la vial, para la clasificación de iluminación en vías M1, M2 y M6, se deberá realizar un análisis detallado, para la posterior presentación de diseño y aprobación de la municipalidad y su interventoría.

 

ANEXO G. PROTECCIÓN SOBRETENSIONES PERMANENTES (PSP) PARA LUMINARIAS LED

Los documentos que forman parte de este anexo son complementarios y deben ser cumplidos por las luminarias a instalarse en Colombia.

 

1. Requerimientos Técnicos Particulares

 

1.1 Características Generales

 

El protector sobretensión permanente (PSP), es un dispositivo que se conecta a la entrada de la luminaria led, sodio o metal halide, el cual busca proteger la luminaria de sobretensiones permanentes que presente la red de alimentación y estos valores superen las tensiones nominales de la luminaria.

Figura No. 1 Diagrama unifilar ubicación del PSP

 

El protector sobretensiones permanentes debe contar con un circuito electrónico de control que garantice el monitoreo de la tensión de entrada y la compare con los valores de referencia expuesto en la tabla 1 Características Protección. En presencia de sobretensiones permanentes, él debe enviar la señal de apertura de la carga (conjunto eléctrico de la luminaria).

 

Figura No. 2 Diagrama electrónico del PSP

1.2 Requerimientos técnicos particulares

 

1.2.1 Características técnicas

 

El protector de sobretensión permanente (PSP) debe cumplir las siguientes características:

CARACTERISTICAS TÉCNICAS PROTECTOR SOBRETENSIÓN PERMANENTE (PSP)

Tensión operación nominal [V] monofásico

277 - 220

Tipo de conexión

SERIE

Frecuencia [Hz]

60

Tensión máxima permanente [v]

520

Pérdidas máximas [W]

1.6

Tensión de corte PSP [v]

>= 305…<=320

Tiempo de reacción PSP [seg]

< 5

Tensión de reconexión PSP [v]

<= 290

Carga máxima [va]

1800 VA Inductiva

Cos(Ø) 0.4-0.6; 1000 W

Incandescente; 2 Arms Carga LED

Número de operaciones

>= 5000

Temperatura máxima [°C]

90

Tabla No. 1 Características técnicas del PSP

 

1.2.2 Modo de Operación del PSP

 

El protector de sobretensión permanente (PSP) debe seguir la siguiente secuencia de operación para proteger los elementos del conjunto eléctrico de las luminarias:

 

  • Monitorear análogamente la señal de tensión en el tiempo y comparar con la tensión nominal de operación del sistema exclusivo de Alumbrado Público.

 

  • Si se evidencia tensión mayor o igual a la expuesta en la tabla 1 Características Protección del PSP (tensión de corte entre 305-320 [V]), el equipo debe desenergizar el conjunto eléctrico, de tal manera que la sobretensión no esté de manera prolongada sobre los componentes del conjunto eléctrico. Esta acción debe permanecer de manera continua siempre que, la tensión sea superior al valor de tensión de corte.

 

  • El protector sobretensión permanente (PSP) debe restablecer el servicio de manera autónoma posterior a la normalización de la tensión de suministro, que se encuentra indicado en la tabla 1 Características Protección del PSP (tensión de reconexión menor o igual a 290 [V]).

 

1.2.3 Ensayos Generales

 

Las pruebas que realizar serán:

1

Tipo de conexión

3

Tensión máxima permanente [V]

4

Pérdidas máximas [W]

5

Tensión de corte PSP [V]

6

Tiempo de reacción PSP [Seg]

7

Tensión de reconexión PSP [V]

8

Número de operaciones

 

2. Planilla De Características Técnicas Garantizadas Protección PSP

CARACTERÍSTICAS TÉCNICAS GARANTIZADAS PSP
ITEMCARACTERISTICASOFERTADO
1País de fabricación 
2Fabricante 
3Representante del fabricante 
4Normas para fabricación y ensayos 
5Referencia 
6Tipo de protector sobretensiones permanentes (Describir) 
7Tipo de instalación (Interior, Aclarar) 
8Tensión de operaciónNominal [V] 
Intervalo o rango [V] 
9Frecuencia de operación[Hz] 
10Carga nominal (W/VA) 
11Corriente nominal (carga LED) [A] 
12Corriente máxima pico en los contactos [A] 
13Capacidad portadora de corriente de los contactos en régimen continuo [A] 
14Hermeticidad del dispositivo de PSP (IP) 
15Contactos del dispositivo PSP (N.C. ó N.A.) 
16Duración de los contactos del dispositivo PSP 
17Tensión máxima de disrupción del dispositivo de protección de sobretensión con onda de impulso a 1,5 x 40 µs.[V] 
18Nivel de aislamiento [V] 
19Tiempo de retardo (segundos) 
20Rango de temperatura[°C] 
21Pérdidas[W]A tensión y corriente nominales 
En operación del PSP 
22Tipo de falla de los contactos (Fail On) 
23Terminales de conexiónMaterial (Describir) 
Tipo de recubrimiento (Describir) 
Sus contactos están libres de filos 
Rebabas (Si/No) 
24Garantía (meses) 
25Marcación (Si/No/Aclarar)Con la palabra BOG-CUN 
Con número de Orden de Compra 
Con tensión nominal 
Con el rango de operación 
Con la carga nominal 
Con Diagrama conexión 
26EmpaqueEn caja (Si/No/Aclarar) 
Número de unidades 
Dimensiones [mm x mm x mm] 
Peso unitario [gr] 
Posee marcación con el código SAP (Si/No) 
27Certificación de producto con norma técnicaEntidad acreditadora 
Número de acreditación 
Norma técnica con la cual se certifica 
Fecha de aprobación (Día/Mes/Año) 
Vigencia (Día/Mes/Año) 
Adjunta el certificado (Si/No) 
28Certificación de producto con RETILAPEntidad acreditadora 
Número de acreditación 
Fecha de aprobación (Día/Mes/Año) 
Vigencia (Día/Mes/Año) 
Adjunta el certificado (Si/No) 
29Certificación del sistema de calidad ISO 9001Entidad acreditadora 
Número de acreditación 
Fecha de aprobación (Día/Mes/Año) 
Vigencia (Día/Mes/Año) 
Adjunta el certificado (Si/No) 
30PruebasEstán incluidas dentro del precio del material (Si/No) 
A realizar en fabrica (Describir) 
31Desviaciones técnicas relacionadas 
DATOS ADICIONALES
Revisión #

0

Fecha de entrada en vigencia

HERRAMIENTAS
RELACIONADAS

Actividad de los usuarios

Estado del comentario