ET411 Bayoneta para doble poste
- Contenido
1. OBJETO
Esta especificación técnica tiene por objeto establecer las características y requisitos técnicos que deben cumplir y los ensayos a los cuales deben ser sometidos las bayonetas para doble poste que solicitará Enel Colombia, para el sistema eléctrico de distribución.2. ALCANCE
Esta especificación técnica se aplicará en todas las bayonetas para doble poste que adquiera Enel Colombia.3. CONDICIONES DE SERVICIO
Las bayonetas para doble poste; serán empleados a la intemperie, para retención y/o suspensión del cable de guarda, bajo las siguientes condiciones:| CARACTERÍSTICAS AMBIENTALES | |
| Altura sobre el nivel del mar | Hasta 2 700 m.s.n.m. |
| Ambiente | Tropical |
| Humedad relativa | Desde 20% hasta 100% |
| Temperatura máxima y mínima | +45 °C y -5 °C respectivamente |
| Polución | Media. |
| CARACTERÍSTICAS ELÉCTRICAS | |
| a. Tensión Nominal | 11.4 kV, 13.2 kV, 34.5 kV |
| c. Frecuencia del sistema | 60 Hz |
4. SISTEMA DE UNIDADES
Todos los documentos tanto de la propuesta como del contrato de suministro, deben expresar las cantidades numéricas en unidades del Sistema Internacional (SI). Si el oferente utiliza en sus libros de instrucción, folletos o dibujos, unidades en sistemas diferentes, debe hacer las conversiones respectivas.5. NORMAS DE FABRICACIÓN Y PRUEBAS
| NORMA | DESCRIPCIÓN |
| NTC 2 | Siderurgia. Ensayo de tracción para materiales metálicos. Método de ensayo a temperatura ambiente. |
| NTC 422 | Barras de acero aleadas y al carbono, laminadas en caliente y terminadas en frío. Requisitos generales. |
| NTC 2076 | Recubrimiento de zinc por inmersión en caliente para elementos en hierro y acero. |
| NTC 2616 | Herrajes y accesorios para redes y líneas aéreas de distribución de energía eléctrica. Crucetas, diagonales y bayonetas metálicas. |
| ET457 | Especificación Técnica Enel Colombia - Tornillo |
| ET462 | Especificación Técnica Enel Colombia – Arandela |
| ET463 | Especificación Técnica Enel Colombia – Tuerca hexagonal |
6. REQUERIMIENTOS TÉCNICOS PARTICULARES
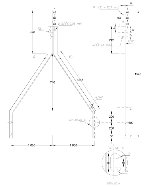
Las bayonetas para retención deberán estar formadas por dos elementos, en ángulo de 3 ” X 3 ” X ¼” y dos tornillos de 5/8” X 1 ½” con arandela redonda y de presión y tuerca de 5/8” por cada uno; todos los materiales deben ser de alta calidad y cumplir la norma NTC 422; el acero debe ser de bajo silicio o sea menor de 0,05% (A34 - SAE1010 ó SAE1020.Los tornillos o pernos, tuercas y arandelas deberán estar de acuerdo con las normas que disponga Enel Colombia para tal fin o en su defecto con las norma ANSI/ASME B1.1 –1982, deberán ser galvanizadas según norma NTC 2076.
6.1 GEOMÉTRICOS
Los ángulos utilizados serán de 3” X 3” X 1/4” la forma y dimensiones se muestran en la figura 16.2 QUÍMICOS
Los ángulos deben cumplir con los siguientes requisitos, de la tabla 1:TABLA 1
| REQUISITOS QUIMICOS DE LOS ÁNGULOS | ||
| ELEMENTO | SAE 1010 | SAE 1020 |
| % Carbono | 0,08 a 0,13 | 0,18 a 0,22 |
| % Fósforo, máx. | 0,05 | 0,05 |
| % Azufre, máx | 0,05 | 0,05 |
| % Manganeso | 0,3 a 0,6 | 0,3 a 0,6 |
| % Silicio, máx | 0,05 | 0,05 |
Los tornillos, arandelas y las tuercas deben cumplir con los siguientes requisitos, de la tabla 2:
TABLA 2
| REQUISITOS QUIMICOS | |||
| ELEMENTO | ARANDELAS DE PRESIÓN | PERNOS | TUERCAS Y ARANDELAS |
| % Carbono, máx. | 0,55 | 0,28 | 0,28 |
| % Fósforo, máx. | 0,048 | 0,048 | 0,048 |
| % Azufre, máx | 0,058 | 0,058 | 0,058 |
| % Manganeso mín | - | - | |
La capa de material de cinc utilizado será de calidad especial según norma NTC 2076 (tabla 3)
TABLA 3
| COMPOSICIÓN QUIMICA DEL CINC ( % ) | ||||
| GRADO | Plomo máx | Hierro máx | Cadmio máx | Cinc, mín |
| Especial | 0,03 | 0,02 | 0,02 | 99,9 |
6.3 MECÁNICOS
Los ángulos utilizados para la fabricación de las bayonetas para doble poste deben tener los siguientes requisitos mínimos:• Resistencia a la tracción 34,7 Kg/mm 2 (340 MN/m 2 ).
• Límite mínimo de fluencia 18,4 Kg/mm 2 (180 MN/m 2 ).
• Elongación 30% en 50 mm(2pulg.).
6.4 REQUISITOS DEL RECUBRIMIENTO
Las bayonetas para doble poste serán totalmente galvanizadas por inmersión en caliente y deberán cumplir con las especificaciones técnicas de la norma NTC 2076 y deben estar libres de burbujas, áreas sin revestimiento, depósitos de escoria, manchas negras y cualquier otro tipo de inclusiones o imperfecciones.Los ángulos se galvanizan con clase B-2 y los elementos roscados con clase C según Norma NTC 2076 (tabla 4).
TABLA 4
| REQUISITOS DE GALVANIZADO | ||||
| ELEMENTO | PROMEDIO | MINIMO | ||
| g/m 2 | µ m | g/m 2 | µ m | |
| Ángulo | 458 | 65,4 | 381 | 54,4 |
| Elementos Roscados | 397 | 56,6 | 336 | 48 |
6.5 REQUISITOS DEL ACABADO
Los perfiles deben ser de una sola pieza, libres de soldaduras, libres de deformaciones, fisura, aristas cortantes, y defectos de laminación. No se permiten dobleces ni rebabas en las zonas de corte, perforadas o punzadas. El galvanizado debe estar libre de burbujas, depósitos de escorias, manchas negras, excoriaciones y/u otro tipo de inclusiones.7 CRITERIOS DE ACEPTACIÓN O RECHAZO
Si el número de elementos defectuosos es menor o igual al correspondiente número de defectuosos definidos a continuación, se deberá considerar que el lote cumple con los requisitos técnicos exigidos por Enel Colombia, en caso contrario, el lote se rechazará.Inspección Visual y Dimensional
De acuerdo a la tabla a continuación.
| Tabla inspección visual y dimensional | |||
| Tamaño del lote | Muestra | Aceptado | Rechazado |
| 2 a 8 | 2 | 0 | 1 |
| 9 a 15 | 2 | 0 | 1 |
| 16 a 25 | 2 | 0 | 1 |
| 26 a 50 | 3 | 0 | 1 |
| 51 a 90 | 5 | 1 | 2 |
| 91 a 150 | 8 | 1 | 2 |
| 151 a 280 | 13 | 1 | 2 |
| 281 a 500 | 20 | 2 | 3 |
| 501 a 1200 | 32 | 3 | 4 |
| 1201 a 3200 | 50 | 5 | 6 |
| 3201 a 10000 | 80 | 6 | 7 |
| 10001 a 35000 | 125 | 8 | 9 |
| 35001 a 150000 | 200 | 10 | 11 |
| 150001 a 500000 | 315 | 10 | 11 |
Ensayos mecánicos
De acuerdo a la tabla a continuación.
| Tabla inspección visual y dimensional | |||
| Tamaño del lote | Muestra | Aceptado | Rechazado |
| 2 a 8 | 2 | 0 | 1 |
| 9 a 15 | 2 | 0 | 1 |
| 16 a 25 | 2 | 0 | 1 |
| 26 a 50 | 2 | 0 | 1 |
| 51 a 90 | 2 | 0 | 1 |
| 91 a 150 | 2 | 0 | 1 |
| 151 a 280 | 3 | 0 | 1 |
| 281 a 500 | 3 | 0 | 1 |
| 501 a 1200 | 5 | 1 | 2 |
| 1201 a 3200 | 6 | 1 | 2 |
| 3201 a 10000 | 8 | 1 | 2 |
| 10001 a 35000 | 8 | 1 | 2 |
| 35001 a 150000 | 13 | 1 | 2 |
| 150001 a 500000 | 13 | 1 | 2 |
8. PRUEBAS
8.1 PRUEBAS DE RECEPCIÓN
Las pruebas de recepción son:- Inspección visual
- Verificación dimensional
- Verificación certificados de calidad
- Verificación espesor de galvanizado
- Ensayo de tracción, se debe realizar a una probeta, acorde a lo establecido en la NTC2616. La probeta deberá fabricarse según lo descrito en la NTC2
9 MARCACIÓN, EMPAQUE Y ROTULADO
9.1 MARCACIÓN.
El material debe cumplir la siguiente marcación en bajo o en alto relieve. No se acepta pintura ni calcomanía.- Logo del fabricante
- Lote
- Enel Colombia
- Mes y año de fabricación
9.2 EMPAQUE
Para el transporte debe embalarse en estibas con un peso no mayor a 80 kg por estiba y la estiba recubierta y sellada con material plástico.9.3 ROTULADO
En cada estiba se colocará un rótulo con la siguiente información.- Especificación del contenido con su referencia.
- Nombre y razón social del proveedor.
- País de origen.
- Cantidad de elementos.
- Peso unitario, peso total bruto y neto.
- Palabra Enel Colombia.
- Número de contrato o pedido.
- Fecha de entrega.
- Código de Almacén.
10 REQUISITOS DE LAS OFERTAS
El oferente adjuntara con su propuesta, para el fabricante de los bienes cotizados, el certificado del sistema de calidad de acuerdo con cualquier norma NTC-ISO serie 9000 o norma equivalente en el país de origen, expedida por una entidad idónea del mismo país de origen. Adicionalmente debe anexarse, el certificado de conformidad de producto expedido por la autoridad competente debidamente autorizada por la Superintendencia de Industria y Comercio ó su equivalente; es de tener en cuenta que las pruebas de recepción de está especificación técnica , no reemplazan el certificado de conformidad de producto , ni viceversa.En la oferta técnica deberán entregarse diligenciados los formatos de las planillas de características técnicas garantizadas en Excel.
El oferente deberá adjuntar catálogos que contengan características técnicas principales y muestras físicas del producto ofertado, así mismo las fotocopias de los certificados de laboratorios internacionales cuando las pruebas deban ser hechas fuera del país.
Los oferentes deberán ofrecer una garantía absoluta de sus productos de por lo menos dos (2) años.
ANEXO 1
FIGURA 1 BAYONETAS PARA ÁNGULOS
| Símbolo | Cód. SAP | Material |
| h8 | 6804640 | 3” x 3 ½” x ¼” |
1-Galvanizado por inmersión en caliente NTC 2076
2-Dimensiones en milímetros y pulgadas
3-Tolerancia de medida ± 5 %
| ELEMENTOS QUE SE SUMINISTRAN | |||
| N° | CANTIDAD | REFERENCIA | DESCRIPCIÓN |
| 1 y 2 | 2 | ET 410 | SECCIONES DE BAYONETA |
| 3 | 2 | ET 457 | TORNILLO EXAGONAL 5/8” X 1 ½” |
| 3 | 2 | ET 462 | ARANDELA REDONDA 5/8” |
| 3 | 2 | ET 462 | ARANDELA DE PRESIÓN 5/8” |
| 3 | 2 | ET 463 | TUERCA EXAGONAL 5/8” |
| PLANILLA DE CARACTERISTICAS TÉCNICAS GARANTIZADAS | |||
| N° | CARACTERISTICAS | OFERTADO | |
| 1 | Normas de fabricación y pruebas | ||
| 2 | Dimensiones del ángulo | Ancho | |
| Espesor | |||
| 3 | Perforaciones | N° de Perforación | |
| Diámetros de c/u | |||
| 4 | Longitud de la bayoneta | ||
| 5 | Accesorios incluidos (Si/No, indicar cantidad) | Tornillos | |
| Arandela redonda | |||
| Arandela de presión | |||
| Tuerca | |||
| 6 | Posee marcación Enel Colombia( SI/NO ) | ||
| 7 | Posee marcación fabricante ( SI/NO ) | ||
| 8 | Adjunta planos dimensionales ( SI / NO ) | ||
| 9 | Material del ángulo | ||
| 10 | Proceso de galvanizado | ||
| 11 | Espesor mínimo garantizado de galvanizado | ||
| 12 | Presentan pruebas (Si/No, indicar cuáles) | ||
| 13 | Resistencia a la tracción del ángulo | ||
| 14 | Límite mínimo de fluencia | ||
| 15 | Elongación | ||
| RESULTADO DE EVALUACIÓN TÉCNICA | |||
| 16 | Certificación de calidad | Ente certificador | |
| N° de Certificado | |||
| Fecha de aprobación (Día/Mes/Año) | |||
| Vigencia | |||
| Adjunta certificado | |||
| 17 | Certificación de producto con norma técnica | Ente certificador | |
| N° de Certificado | |||
| Fecha de aprobación (Día/Mes/Año) | |||
| Vigencia | |||
| Norma técnica con la cual se certifica | |||
| Adjunta certificado | |||
| 18 | Certificación de producto con RETIE | Ente certificador | |
| N° de Certificado | |||
| Fecha de aprobación (Día/Mes/Año) | |||
| Vigencia | |||
| Adjunta certificado | |||
| RESULTADO DE EVALUACIÓN REGULATORIA | |||
| 19 | Observaciones | ||
DATOS ADICIONALES
Revisión #
3
Fecha de entrada en vigencia
Actividad de los usuarios
Para hacer comentarios debe iniciar sesión o registrarse aquí