ET406 Diagonal metálica en ángulo
- Contenido
1. OBJETIVO
Esta especificación técnica tiene por objeto establecer las características y requisitos técnicos que deben cumplir y los ensayos a los cuales deben ser sometidos las diagonales metálicas en ángulo que solicitará Enel Colombia, para el sistema eléctrico de distribución.2. ALCANCE
Esta especificación técnica se aplicará en todas las diagonales metálicas en ángulo que adquiera Enel Colombia.3. SERVICIO
Estos herrajes se usan para soportar y/o fijar otros elementos a postes y son de servicio continuo.4. SISTEMA DE UNIDADES
En todos los documentos técnicos se deben expresar las cantidades numéricas en unidades del sistema Internacional (S.I.). Si se usan catálogos, folletos o planos, en sistemas diferentes de unidades, deben hacerse las conversiones respectivas.5. NORMAS DE FABRICACIÓN Y PRUEBAS
| NORMA | DESCRIPCIÓN | |
| NTC | 2076 | Electricidad. Galvanizado por inmersión en caliente para herrajes y perfiles estructurales de hierro y acero. |
| NTC | 2616 | Electrotecnia. Herrajes y accesorios para redes y líneas aéreas de distribución de energía eléctrica. Pernos de ojo. |
Pueden emplearse otras normas internacionalmente reconocidas equivalentes o superiores a las aquí señaladas, siempre y cuando se ajusten a lo solicitado en la presente especificación técnica .
Las normas citadas en la presente especificación (o cualquier otra que llegare a ser aceptada por Enel Colombia) se refieren a su última revisión.
6. REQUISITOS
Son elementos de características geométricas y mecánicas tales que les permiten adaptarse a las limitaciones impuestas por otros elementos y por los postes.Las diagonales metálicas en ángulo deberán estar formadas por dos elementos uno la diagonal propiamente dicha y el peldaño de apoyo, los ángulos y la platina del peldaño deben ser de alta calidad y cumplir la norma NTC – 422; el acero debe ser de bajo silicio o sea menor de 0,05% (A34 - SAE1010 ó SAE1020).De acuerdo con las dimensiones el peldaño debe quedar horizontal para el apoyo del zapato del liniero.
Los tornillos o pernos, tuercas y arandelas deberán estar de acuerdo con las normas que disponga Enel Colombia para tal fin o en su defecto con las normas NTC – 858 y ANSI/ASME B1.1 –1982, deberán tener un recubrimiento para evitar la corrosión .
6.1 GEOMÉTRICOS.
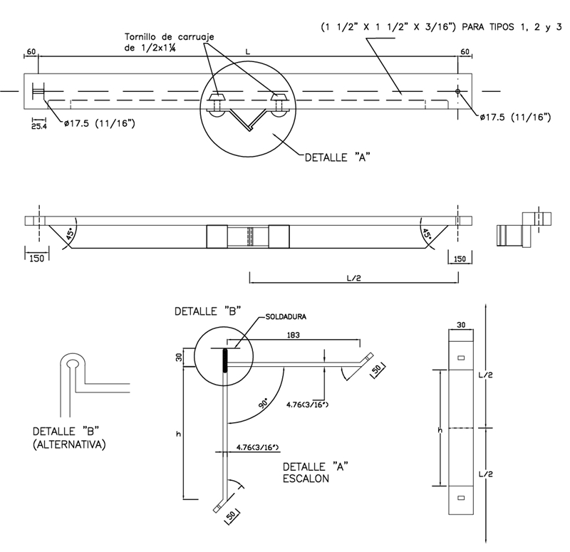
Los ángulos utilizados será de 1 ½” X 1 ½” X 3/16” para tipos 1,2 y 3 y la platina utilizada será mínimo de 30 mm X 3/16”. La forma y dimensiones se muestran en la figura 1.6.2 QUÍMICOS.
Los ángulos y platinas deben cumplir con los siguientes requisitos, de la tabla 1:TABLA 1. REQUISITOS QUÍMICOS DE LAS PLATINAS
| ELEMENTO | SAE 1010 | SAE 1020 |
| % Carbono | 0,08 a 0,13 | 0,18 a 0,22 |
| % Fósforo, máx. | 0,05 | 0,05 |
| % Azufre, máx. | 0,05 | 0,05 |
| % Manganeso | 0,3 a 0,6 | 0,3 a 0,6 |
| % Silicio, máx. | 0,05 | 0,05 |
Nota: Se pueden usar aceros equivalentes u otros aceros con la previa autorización de Enel Colombia
6.3 MECÁNICOS.
Las Los ángulos y platinas utilizados para la fabricación de las diagonales metálicas en ángulo deben tener los siguientes requisitos mínimos:- Resistencia a la tracción34, 7 Kg/mm 2 (340 MN/m 2 ).
- Límite mínimo de fluencia18, 4 Kg/mm 2 (180 MN/m 2 ).
- Elongación30% en 50 mm (2pulg.).
Estampado en caliente.
La temperatura máxima permitida es de 650ºC. El fabricante debe garantizar ésta temperatura sobre la platina; se recomienda el uso de tizas térmicas de 620ºC y de 650ºC.
6.4 REQUISITOS DEL RECUBRIMIENTO
Para el recubrimiento se acepta el galvanizado por inmersión en caliente y como alternativa el recubrimiento órgano metálico por micro capas. La determinación del tipo de recubrimiento lo realizará Enel Colombia en el proceso de licitación.6.4.1 Galvanizado por inmersión en caliente
Las diagonales metálicas en ángulo serán totalmente galvanizadas por inmersión en caliente y deberán cumplir con las especificaciones técnicas de la norma NTC 2076 y deben estar libres de burbujas, áreas sin revestimiento, depósitos de escoria, manchas negras y cualquier otro tipo de inclusiones o imperfecciones.La capa de material de cinc utilizado será de calidad especial según norma NTC 2076 (tabla 2)
TABLA 2. COMPOSICIÓN QUÍMICA DEL CINC ( % )
| GRADO | Plomo máx. | Hierro máx. | Cadmio máx. | Cinc, mín. |
| Especial | 0,03 | 0,02 | 0,02 | 99,9 |
Los ángulos y platinas se galvanizan con clase B-2 y los elementos roscados con clase C según Norma NTC 2076 (tabla 3).
TABLA 3. REQUISITOS DE GALVANIZADO
| ELEMENTO | PROMEDIO | MÍNIMO | ||
| g/m 2 | µ m | g/m 2 | µ m | |
| Platinas | 458 | 65,4 | 381 | 54,4 |
| Elementos Roscados | 397 | 56,6 | 336 | 48 |
6.4.2 Recubrimiento Órgano – Metálico
El recubrimiento órgano metálico se realiza a base de zinc y aluminio, por micro capas de acuerdo con la especificación ET470 .6.5 REQUISITOS DEL ACABADO
Los perfiles deben ser de una sola pieza, libres de soldaduras, libres de deformaciones, fisura, aristas cortantes, y defectos de laminación. No se permiten dobleces ni rebabas en las zonas de corte, perforadas o punzadas. El recubrimiento debe estar libre de burbujas, depósitos de escorias, manchas negras, excoriaciones y/u otro tipo de inclusiones.7. CRITERIOS DE ACEPTACIÓN O RECHAZO
Si el número de elementos defectuosos es menor o igual al correspondiente número de defectuosos definidos a continuación, se deberá considerar que el lote cumple con los requisitos técnicos exigidos por Enel Colombia, en caso contrario, el lote se rechazará.Inspección Visual y Dimensional
De acuerdo a la tabla a continuación.
| Tabla inspección visual y dimensional | |||
| Tamaño del lote | Muestra | Aceptado | Rechazado |
| 2 a 8 | 2 | 0 | 1 |
| 9 a 15 | 2 | 0 | 1 |
| 16 a 25 | 2 | 0 | 1 |
| 26 a 50 | 3 | 0 | 1 |
| 51 a 90 | 5 | 1 | 2 |
| 91 a 150 | 8 | 1 | 2 |
| 151 a 280 | 13 | 1 | 2 |
| 281 a 500 | 20 | 2 | 3 |
| 501 a 1200 | 32 | 3 | 4 |
| 1201 a 3200 | 50 | 5 | 6 |
| 3201 a 10000 | 80 | 6 | 7 |
| 10001 a 35000 | 125 | 8 | 9 |
| 35001 a 150000 | 200 | 10 | 11 |
| 150001 a 500000 | 315 | 10 | 11 |
Ensayos mecánicos
De acuerdo a la tabla a continuación.
| Tabla inspección visual y dimensional | |||
| Tamaño del lote | Muestra | Aceptado | Rechazado |
| 2 a 8 | 2 | 0 | 1 |
| 9 a 15 | 2 | 0 | 1 |
| 16 a 25 | 2 | 0 | 1 |
| 26 a 50 | 2 | 0 | 1 |
| 51 a 90 | 2 | 0 | 1 |
| 91 a 150 | 2 | 0 | 1 |
| 151 a 280 | 3 | 0 | 1 |
| 281 a 500 | 3 | 0 | 1 |
| 501 a 1200 | 5 | 1 | 2 |
| 1201 a 3200 | 6 | 1 | 2 |
| 3201 a 10000 | 8 | 1 | 2 |
| 10001 a 35000 | 8 | 1 | 2 |
| 35001 a 150000 | 13 | 1 | 2 |
| 150001 a 500000 | 13 | 1 | 2 |
8. PRUEBAS
8.1 PRUEBAS TIPO
8.1.1 Prueba dimensional
La verificación de las dimensiones se hará con los instrumentos de medida que den la aproximación requerida (cinta metálica con divisiones de 1 mm para longitudes y calibrador para los diámetros y espesores). El tamaño de la muestra deberá estar de acuerdo con la tabla 4.8.1.2 Análisis químico
Se efectuará el análisis químico de acuerdo a lo requerido en el numeral 6.2 y las normas NTC 23 y 180 (carbono), NTC 27 (azufre), NTC 181 (fósforo), NTC 24 o 25 (manganeso), NTC 26 o 28 (silicio) o en su defecto se aceptará un certificado de calidad de los materiales empleados, emitido por un laboratorio reconocido y aprobado por Enel Colombia. El análisis químico puede ser realizado en un espectrómetro calibrado con los patrones correspondientes.8.1.3 Prueba mecánica
Ensayo de doblamientoLas platinas deben ser sometidas a doblamiento de 180º sin que se presente agrietamiento del acero en la parte exterior, según norma NTC 1.
Ensayo de desdoblamiento
Como prueba de rutina se debe efectuar un enderezamiento a 30º en los dobleces donde van alojados los tornillos sin que se presente ningún agrietamiento.
8.1.4 PRUEBA DEL GALVANIZADO
Para elementos galvanizados, esta prueba se hará de acuerdo a la norma NTC 2076. Para los elementos de fijación - tornillos, tuercas, arandelas se harán las pruebas de acuerdo a la NTC 3241 con los siguientes requisitos establecidos en la tabla Nº 6.TABLA 6. PRUEBA DE GALVANIZADO
| ELEMENTO | NÚMERO DE INMERSIONES |
| Ángulos, Platinas | 6 |
| Tornillos, Parte no roscada | 6 |
| Parte roscada | 4 |
| Arandelas | 4 |
Si el recubrimiento es órgano metálico esta prueba debe realizarse con la especificación ET470 .
La prueba de espesor de recubrimiento puede ser con un ecómetro debidamente calibrado.
8.2 PRUEBAS DE RECEPCIÓN
Las pruebas de recepción son:- Inspección visual
- Verificación dimensional
- Verificación certificados de calidad
- Verificación espesor de galvanizado
- Ensayo de tracción, se debe realizar a una probeta, acorde a lo establecido en la NTC 2616. La probeta deberá fabricarse según lo descrito en la NTC 2.
9. MARCACIÓN, EMPAQUE Y ROTULADO
9.1 MARCACIÓN
El material debe cumplir la siguiente marcación en bajo o en alto relieve. No se acepta pintura ni calcomanía.• Logo del fabricante
• Lote
• Enel Colombia
• Mes y año de fabricación
• Tipo de perfil o rango de uso
9.2 EMPAQUE
Las diagonales metálicas en ángulo se empacarán en cajas de madera de tal manera que no sufran durante el transporte, manipuleo y almacenamiento. Los tornillos irán engrasados, con sus tuercas y arandelas instaladas y a su vez instalados en las platinas.9.3 ROTULADO
En cada caja se colocará un rótulo con la siguiente información.- Especificación del contenido con su referencia.
- Nombre y razón social del proveedor.
- País de origen.
- Cantidad de elementos.
- Peso unitario, peso total bruto y neto.
- Palabra Enel Colombia.
- Número de contrato o pedido.
- Fecha de entrega.
- Código de Almacén.
10. REQUISITOS DE LAS OFERTAS
El Oferente obligatoriamente deberá incluir con su propuesta, la siguiente información:- Relación de los bienes cotizados.
- Información del oferente.
- Planilla de características técnicas garantizadas, la cual deberá ser diligenciada completamente en formato Excel.
- Catálogos originales, completos y actualizados del fabricante, que correspondan a las abrazaderas cotizados en la planilla de características técnicas garantizadas.
- El oferente adjuntará con su propuesta el certificado de conformidad de producto con noma técnica y con RETIE , expedido por una entidad autorizada por la ONAC. Además deberá presentar el certificado de calidad ISO 9001.
- Carta de garantía de los bienes cotizados.
- En caso que se requiera se podrán exigir muestras de cada uno de los tipos ofertados sin cargo a devolución, con cada una de las características técnicas, solicitadas y mencionadas en la presente especificación.
- Se deben relacionar las excepciones de carácter exclusivamente técnico de la oferta, respecto a los bienes solicitados. Si la oferta no presenta excepción, se indicaría expresamente en el mismo “NO HAY EXCEPCIONES”
- Información adicional que considere aporta explicación a su diseño (dibujos, detalles, características de operación, dimensiones y pesos de los materiales ofertados).
Enel Colombia podrá descartar ofertas que no cumplan con las anteriores disposiciones, sin expresión de causa ni obligación de compensación.
11. GARANTÍA DE FÁBRICA
Enel Colombia requiere como mínimo, un período de garantía de fábrica de cuarenta y ocho (48) meses, a partir de la entrega de los bienes.
Figura 1. Dimensiones y componentes
NOTAS :
1 - Dimensiones en mílimetros y pulgadas
2 - Tolerancias de medidas ± 5%
| PERFIL | TIPO | SIMB. | COD. SAP | L | h | Long. Total | APLICACIÓN | OBSERVACIONES |
| mm | mm | mm | ||||||
| 1 ½"x1 ½"x 3/16" | 1 | d2 | 6762507 | 1780 | 170 | 1900 | Bandera 11,4kV y 13,2kV con cruceta 2 m. | Cruceta 2 m. Descontinuada |
| 1 ½"x1 ½"x 3/16" | 2 | d3 | 6762206 | 1426 | 123 | 1546 | Semibandera 34,5kV con cruceta de 2,5 m | LA 102 |
| 2 ½"x2 ½"x 1/4" | d0 | 2073 | 124 | 2193 | Bandera 34,5 kV, con cruceta de 2,5m | No se usa | ||
| 1 ½"x1 ½"x 3/16" | 3 | d4 | 6762179 | 2080 | 129 | 2200 | Bandera 34,5 kV, 11,4 kV con cruceta de 2,5m | LA 104-105; LA 204-205 |
ANEXO. CARACTERÍSTICAS TÉCNICAS GARANTIZADAS
| N° | DESCRIPCIÓN | OFERTADO | ||
| 1 | Proponente | Fabricante | ||
| Representante del fabricante | ||||
| Dimensión | ||||
| 2 | Normas | Fabricación y pruebas | ||
| 3 | Ángulo | Longitud total del ángulo | ||
| Espesor del ángulo | ||||
| Lados del ángulo | ||||
| Tamaño del agujero rectangular | ||||
| Diámetro del agujero circular | ||||
| Diámetro de los agujeros para los tornillo | ||||
| Cumple con la posición de los agujeros indicada en la imagen 1 (Si/No) | ||||
| Longitud de 150 mm | ||||
| Longitud de 60 mm | ||||
| 4 | Escalón | Espesor de la Platina | ||
| Ancho de la Platina | ||||
| Tamaño de los agujeros | ||||
| Longitud de 50mm | ||||
| Longitud de 183mm | ||||
| Longitud h | ||||
| Longitud de 30mm | ||||
| 5 | Recubrimiento | Galvanizado | Tipo (Describir) | |
| Espesor (min/prom, µm) | ||||
| Órgano Metálico | Grado de corrosión (indicar alto / medio acorde con ET470 ) | |||
| Espesor capa ( µm) | ||||
| Horas mínimas de SST- Salt Spray Test | ||||
| Cumple con los ensayos indicados en la ET470 | ||||
| 6 | Ensayos | Prueba dimensional | ||
| Prueba química | ||||
| Ensayo de doblamiento | ||||
| Ensayo de desdoblamiento | ||||
| Prueba de recubrimiento (espesor y adherencia) | ||||
| Prueba de funcionamiento | ||||
| Están incluidas dentro del precio del material (Si/No) | ||||
| A realizar en fabrica (Describir) | ||||
| 7 | Cumple con la marcación solicitada (Si/No, describir) | |||
| 8 | Desviaciones presentadas | |||
| 9 | Garantía | |||
| RESULTADO DE EVALUACIÓN TÉCNICA | ||||
| 10 | Certificado Sistema de calidad (Norma ISO9001) | Entidad certificadora | ||
| Número de certificado | ||||
| Fecha de aprobación (Día/Mes/Año) | ||||
| Vigencia | ||||
| Adjunta el certificado (Si/No) | ||||
| 11 | Certificación de producto con norma técnica | Entidad certificadora | ||
| Número de certificado | ||||
| Fecha de aprobación (Día/Mes/Año) | ||||
| Vigencia | ||||
| Norma técnica con la cual se certifica | ||||
| Adjunta el certificado (Si/No) | ||||
| 12 | Certificación de producto con RETIE | Entidad certificadora | ||
| Número de certificado | ||||
| Fecha de aprobación (Día/Mes/Año) | ||||
| Vigencia | ||||
| Adjunta el certificado (Si/No) | ||||
| RESULTADO DE EVALUACIÓN REGULATORIA | ||||
| 13 | Observaciones | |||
DATOS ADICIONALES
Revisión #
4
Fecha de entrada en vigencia
Actividad de los usuarios
Para hacer comentarios debe iniciar sesión o registrarse aquí