ET403 Crucetas en fibra de vidrio

  • Contenido

1. OBJETO

La presente especificación técnica tiene por objeto establecer las características y dimensiones que deben cumplir las crucetas en fibra de vidrio con resina de poliéster que se emplearán como soportes estructurales para líneas aéreas de distribución de media y baja tensión.

2. ALCANCE

Las crucetas serán instaladas, en cualquier zona del área de cobertura de Enel Colombia S.A., estas crucetas se emplean para la fijación y sostén de los diferentes elementos utilizados en los sistemas aéreos de distribución urbana y rural.

3. CONDICIONES AMBIENTALES

El ambiente donde serán instaladas las crucetas de fibra podrá tener las siguientes características dentro del área de concesión de Enel Colombia S.A. E.S.P, bajo las siguientes condiciones:

TABLA 1. PARÁMETROS AMBIENTALES
CARACTERÍSTICAS AMBIENTALES
a. Altura sobre el nivel del mar 2 640 m
b. Ambiente Tropical
c. Humedad 90%
d. Temperatura máxima y mínima 27 ºC y - 5 ºC respectivamente.
e. Temperatura promedio 14 ºC.

4. CONDICIONES SE SERVICIO

Las crucetas podrán ser instaladas, en cualquier zona del área de cobertura de Enel Colombia S.A.

5. SISTEMAS DE UNIDADES

En todos los documentos técnicos se deben expresar las cantidades numéricas en unidades del sistema Internacional. Si se usan catálogos, folletos o planos, en sistemas diferentes de unidades, deben hacerse las conversiones respectivas.

6. NORMAS RELACIONADAS

Las crucetas deberán cumplir con las siguientes normas de fabricación y ensayos:

TABLA 1. NORMAS RELACIONADAS
FABRICACION DESCRIPCIÓN
ANSI C 136 American National Standard for Roadway and Area Lighting Equipment— Fiber-Reinforced Composite (FRC) Lighting Poles
PRUEBAS DESCRIPCIÓN
ASTM G 154 Standard Practice for Operating Fluorescent Light Apparatus for UV Exposure of Nonmetallic Materials
ASTM D 6109 Standard Test Methods for Flexural Properties of Unreinforced and Reinforced Plastic Lumber and Related Products
ASTM D 149 Test Method for Dielectric Breakdow Voltage and Dielectric -Strength -Solid Electrical Insulating Materials at Cornmercial Power Frecuencies
ASTM D 543 Standard Practices for Evaluating the Resistance of Plastics to Chemical Reagents
ASTM D 570 Standard Test Method for Water Absorption of Plastics
IEC/ NTC 60695-2-11/ 5283 Fire hazard testing - Part 2-11: Glowing/hot-wire based test methods - Glow-wire flammability test method for end-products
ASTM D 648 Standard Test Method for Deflection Temperature of Plastics Under Flexural Load in the Edgewise Position
ASTM D 2584 Standard Test Method for Ignition Loss of Cured Reinforced Resins
ASTM D 2734 Standard Test Methods for Void Content of Reinforced Plastics
IEC 60587 Electrical insulating materials used under sever ambient conditions – Test methods for evaluating resistance to tracking and erosion
IEC 60243-1 Electric strength of insulating materials - Test methods - Part 1: Tests at power frequencies
PRACTICAS DESCRIPCIÓN
RETIE Reglamento Técnico de Instalaciones Eléctricas
ASCE 104 Recommended practice for Fiber reforcerd Polymer products for overhead Utility Line Structures


Pueden emplearse otras normas internacionalmente reconocidas equivalentes o superiores a las aquí señaladas, siempre y cuando se ajusten a lo solicitado en la presente especificación técnica.

Las normas citadas en la presente especificación (o cualquier otra que llegare a ser aceptada por Enel Colombia S.A.) se refieren a su última revisión.

7. DEFINICIONES

Se establecen las siguientes definiciones para efectos de esta especificación técnica:
  • AGRIETAMIENTO
Hendidura (quiebre o fractura) que se forma en la superficie del material,
  • FLEXION MAXIMA ADMISIBLE
Valor máximo porcentual definido en funcion de la longitud de la cruceta.
  • CARGA DE TRABAJO
Carga máxima a la que puede estar sometida la cruceta en condiciones de operación, sin que se exceda la flexión máxima admisible.
  • CARGA DE ROTURA
Aquella carga que aplicada produce colapso estructural de la cruceta hasta la rotura de la misma.
  • CARGA DE DISEÑO
Mínima carga que debe soportar la cruceta sin presentar degradación estructural.
  • CRUCETA
Pieza ubicada en la parte superior de las estructuras en posición transversal, tiene como propósito soportar conductores y equipos de redes aéreas de distribución de energía eléctrica y telecomunicaciones.
  • EROSIÓN
Perdida de material de la superficie aislante que produce una superficie no conductora. Puede ser uniforme, localizada o en forma de árbol. Después de la formación de arcos pueden quedar rastros superficiales poco profundos.
  • FIBRA DE VIDRIO
Cualquier hilo de fibra de vidrio basado en sílice de alto modulo de resistencia para ser utilizado como refuerzo de matrices plásticas.
  • FACTOR DE SEGURIDAD
Relación entre la carga mínima de rotura y la tensión máxima aplicada (carga máxima de trabajo).
  • RESINAS
Polímeros termo fijos obtenidos por la unión de un pre polímero y un catalizador, este ultimo promueve una reacción de curado o polimerización que permite el endurecimiento y fijación del termo fijo en sus propiedades.

Los materiales termoplásticos no están contemplados en la presente especificación.

8. REQUERIMIENTOS TÉCNICOS Y PARTICULARES

8.1. Características Generales

Entre otras características, las crucetas debe tener las que se indican a continuación:
  • Resistir los rayos solares
  • Evitar propagar la llama
  • Rigidez dieléctrica elevada
  • Alta dureza
  • Alta resistencia a la tracción y a la flexión.
  • Resistente a los químicos y ácidos.
  • Debe ser libre de mantenimiento.
  • No debe contener elementos que sirvan de alimento o permitan ser atacadas por microorganismos.
  • Vida útil de 25 años o mayor
  • El acabado exterior de la cruceta debe ser de color gris RAL serie 70, similar al RAL 7004.

8.2. Características constructivas

La cruceta deberá tener como mínimo las siguientes capas constructivas iniciando en el exterior de la cruceta de la siguiente manera:

a. Top Coat: Capa exterior con protección contra intemperie y U.V, de acuerdo con la ASTM-G154.

b. Veil o velo: Capa rica en resina que permite uniformidad en la textura y elimina la exposición de fibras expuestas acorde con la ASCE-104 (Resin rich nonstructural suface veil). Cubrimiento uniforme de resina en toda la superficie de la cruceta . ?Acabado liso que evita acumulación de polvo, sales y elementos contaminantes que pueden a largo plazo crear caminos conductivos y fenómenos de tracking.

c. Composición o fibra que determina las características mecánicas de la cruceta de acuerdo a la carga, acorde con la ANSI C136 y RETIE. La fibra de vidrio deberá ser clase E o de características superiores.

d. Composición rica en resina que elimina la exposición de fibras y defectos de la cruceta que puedan afectar el servicio del mismo y protege la parte interior de la cruceta contra la intemperie.

Nota: Las crucetas pueden llevar o no material de relleno en su interior, en caso de contener material de relleno este debe ser no higroscópico.

En caso de ofertarse la cruceta en fibra de vidrio con herraje auto soportado, la cruceta debe de traer este elemento incluido como parte del suministro.

Para cualquier tipo de uso de la con herrajes tales como abrazaderas y/o pernos entre otros, la cruceta debe soportar los esfuerzos mecánicos de compresión de los herrajes hacia la cruceta; para tal fin la cruceta debe venir reforzada en las zonas donde se instalen los herrajes; de manera que se cumpla con la prueba de torque de apriete. Para esta prueba como requisito mínimo de Enel Colombia se debe exigir el cumplimiento de 130 Nm sin deformarse o averiarse en su estructura de la cruceta.

8.3. Parámetros geométricos

Las crucetas en fibra de vidrio para el sistema de distribución urbana y rural será de la forma y dimensiones que se muestran en las figuras las siguientes figuras:

8.3.1. Cruceta de fibra de 2,5 X 0,10 X 0,10 m


Notas:
  1. Cruceta para uso con herrajes de Enel Colombia, abrazadera tipo U.
  2. Unidades en mm.

8.3.2. Cruceta de fibra de 2,5 X 0,10 X 0,05 m (alternativa herraje auto soportado)


Notas:
  1. El herraje auto soportado reemplaza el uso de abrazadera tipo U. Debe venir dentro del suministro de la cruceta como parte del kid. Ver numeral 8.3.3.
  2. Unidades en mm.

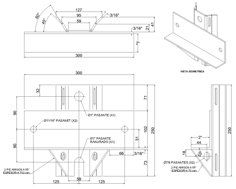
8.3.3. Herraje auto soportado


Notas:
  1. Unidades en mm y pulgadas.

9. PRUEBAS DE LABORATORIO

9.1. Resistencia a la carga de diseño

Se aplicara la carga de diseño de 1000 kgf según establecido en la ASTM D6109 con las perforaciones realizadas. Las crucetas no deberán de romperse ni fracturarse.
Las fuerzas se aplicaran como lo indica la figura 1 del anexo 2.

9.2. Prueba de carga de rotura

La prueba se realizara según establecido en la ASTM D6109 aplicando la carga de rotura de 1200kgf con las perforaciones realizadas. Las crucetas no deberán de romperse ni fracturarse.
Las fuerzas se aplicaran como lo indica la figura 1 del anexo 2.

9.3. Prueba de flexión

La prueba se realizara según establecido en la ASTM D6109 con las perforaciones realizadas aplicando la carga de trabajo de 700 kgf. Las crucetas no deberán de romperse un fracturarse y no deberá presentar deflexión superior al 2% de su longitud.
Las fuerzas se aplicaran como lo indica la figura 1 del anexo 2.

9.4. Prueba de perno pasante

Se deberá aplicar la carga de trabajo forma progresiva hasta llegar al valor de la carga de trabajo de 700 kgf de sin que se presente falla en la pared de la cruceta que está diseñada para recibir carga mediante un perno de acero con arandela cuadrada en tres puntos equidistantes de la cruceta de acuerdo con lo establecido en el manual de la ASCE104 numeral 6.2.3. La cruceta deberá de soportar como mínimo la carga de trabajo.
Las fuerzas se aplicaran conforme lo indica la figura 2 del anexo 2.

9.5. Prueba de torsión de apriete

De acuerdo con lo establecido en el Manual de la ASCE104 numeral 6.2.2., la cruceta debe de suportar 75 Nm (55 lb/pie) de carga en un perno. No se debe presentar fractura durante el apriete, ni después de realizar el ensayo de perno pasante.
La prueba se realizara según lo indicado en la figura 3 del anexo 2.

9.6. Prueba de resistencia a la torsión

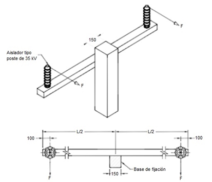
Con la cruceta montada conforme a lo indicado en la figura 4 del anexo 2, instalar a 10 cm de cada extremo un aislador tipo poste de acuerdo con la NTC 2620 (ANSI C29.7) para realizar la fijación del sistema de tracción en los cuellos de los aisladores, se debe aplicar gradualmente una carga de tracción al conjunto hasta alcanzar 102 kgf (perpendicular al eje vertical).
Después de al menos 5 minutos de aplicación de la carga, la cruceta no debe de presentar grietas de ningún tipo.

9.7. Prueba mecánica de larga duración

Con la cruceta instalada en forma simétrica (ver figura 5 del anexo2), se debe aplicar la carga de trabajo de 700 kgf sobre el punto de fijación de los aisladores laterales. La carga debe mantenerse por un periodo de 216 horas.
Una vez retirada la carga se debe realizar la lectura del valor de la flecha (deflexión) en un intervalo de tiempo de 5 – 10 minutos como máximo. La cruceta se considera aprobada si no presenta grietas y la flecha residual máxima medida en cada extremo en el plano de aplicación de las cargar no supera los 20 mm.

9.8. Resistencia de las tapas laterales

Se debe dejar caerla cruceta en posición horizontal a una altura de un (1) metro sobre la superficie de concreto. Las tapas no se deben desprender.
Se debe suspender la misma muestra desde una de sus extremidades formando un ángulo de 30° en relación con el suelo, se debe arrastrar en una superficie áspera a una distancias de dos (2) metros, se debe de repetir el proceso para la tapa contraria. No se debe presentar desprendimiento ni fracturas de las tapas.

9.9. Resistencia a rayos UV

De acuerdo con la normas ASTM G-154, la cruceta deberá presentar resistencia a la degradación producida por la exposición de rayos ultravioleta. Se deberán conservar mínimo el 75 % de los valores de carga de diseño y deflexión y no presentar variación del 2 % en el peso.

9.10. Termo deformación

Se toma tres crucetas por referencia para someterla a una temperatura, las crucetas deben de iniciar efectos de degradación térmica a una temperatura superior a 100 °C, de acuerdo con la norma ASTM D648, método B.

9.11. Flamabilidad

Esta prueba está destinada a la verificación del material en cuanto a las propiedades de ignición y extinción de la llama. Se debe efectuar el ensayo de hilo incandescente a 900 °C, conforme a lo establecido en la NTC 5283 (IEC 60695-2-11).

9.12. Resistencia a la absorción de humedad

Se deberán conservar mínimo el 75% de los valores de carga de diseño y deflexión y no presentar variación del 3% en el peso, conforme a la normas ASTM D570.

9.13. Rigidez dieléctrica

El ensayo se debe realizar sobre un espécimen de 5 mm ± 1 mm. La rigidez dieléctrica debe cumplir con un valor mayor a 8 kV/mm en aire, en caso de que exista flameo se debe realizar en aceita.
La prueba se debe realizar de acuerdo con el método establecido en la norma ASTM D149, Método A con electrodo Tipo 1 y las condiciones de temperatura y humedad relativa de la muestra debe cumplir con el numeral 5 de la IEC 60243-1.

9.14. Tracking y erosión

Se debe garantizar un alto desempeño que se demuestra al no presentar erosión ni flameo bajo tensiones a frecuencias industriales según la norma IEC 60587.
La prueba se realiza mediante el método de escalonamiento de tensión y debe de cumplir como mínimo con la tensión de 1500 V, conforme al método 2, criterio A.

9.15. Prueba de tensión no disruptiva a frecuencia industrial en húmedo

Se aplica tensión directamente a la cruceta en el punto de fijación de la fase central. La cruceta tiene que estar montada con una sola diagonal metálica de fijación , en el extremo opuesto se aplica la tensión , entre el punto de fijación del aislador y el punto de fijación de la cruceta al poste (tierra). La tensión de aplicación debe de ser 1,05 veces mayor de la tensión fase-tierra con una duración de 1 minuto.
La cruceta se considera aprobada si no se produce ninguna descarga disruptiva, ni ningún daño al material durante el ensayo.

9.16. Resistencia química

Ante la presencia de agentes como cloruro de sodio, acido sulfúrico, carbonato de sodio, sulfato de sodio, acido hidroclórico , hidróxido de sodio, acido acético, kerosene y aceite de transformador. La cruceta deberá presentar resistencia a la degradación producida por la exposición de rayos ultravioleta . Se deberán conservar mínimo el 75% de los valores de carga de diseño y deflexión y no presentar variación del 2% en el peso. La prueba se realizara como lo indiqué la norma ASTM D543.

9.17. Contenidos de vacío y relación Fibra-Resina

El contenido de vacios y relación fibra-resina de las crucetas se evalúan según las normas ASTM D2734 y ASTM D2584.

9.18. Prueba de torque de apriete ó par de pernos

El propósito de la prueba de torque del perno es determinar el torque óptimo para un perno pasante.. Se debe instalar un perno pasante usando una arandela plana indicada en la ET460 en ambos lados del perno.
Prueba de torque de apriete 130 Nm en un laboratorio acreditado con ISO 17025.

También deberá presentar esta pruebas con los siguientes materiales:
  • Abrazaderas en U ET-436 de Enel Colombia

10. PRUEBA DIMENSIONAL

La verificación de las dimensiones se hará con los instrumentos de medida que den la aproximación requerida y calibrador para los diámetros y espesores. El tamaño de la muestra deberá estar de acuerdo con la NTC ISO 2859-1. Se debe verificar las dimensiones de las crucetas de acuerdo en el numeral 8.3.

11. VERIFICACIONES DE PROCESOS

Se refiere a las verificaciones que deben realizarse a las crucetas durante el proceso de fabricación. Constituyen una validación en el cumplimiento de parámetros dimensionales y físicos propios del diseño. Esta evaluación debe hacerse a todo el lote de producción que se está fabricando.

12. ENSAYOS DE LABORATORIO

El registro completo de los ensayos debe estar disponible para Enel Colombia S.A. ESP., durante el tiempo que dure la fabricación y por los dos años siguientes a su terminación.

Todos los ensayos descritos en esta especificación se deben realizar por parte del fabricante y se deben entregar a Enel Colombia S.A. ESP.

Los laboratorios de pruebas deberán ser certificados bajo ISO IEC 17025.

13. MARCAS

Todos las crucetas deberán llevar, en forma clara una leyenda en bajo relieve o placa, que indique:
  • Palabra BOG-CUN (en bajo relieve)
  • Nombre o razón social del fabricante.
  • Peso máximo (kg)
  • Longitud y especificación técnica ET–403.
  • Fecha de fabricación, día mes año.
  • Número de orden de pedido.
  • Orden de compa de Enel Colombia o pedido abierto

14. REQUISITOS DE LAS OFERTAS

La oferta técnica deberá entregarse en medio magnético. El oferente deberá incluir con su propuesta la siguiente información:
  • Relación de los bienes cotizados.
  • Información del oferente, relación de clientes, evidencia de su capacidad técnica y experiencias relacionadas con los materiales y/o equipos cotizados.
  • Listado de normas técnicas aplicables a los bienes cotizados.
  • Planilla de características técnicas garantizadas indicada en el anexo1, la cual deberá ser diligenciada completamente por el oferente. Esta planilla debe entregarse en formato Excel.
  • Catálogos originales, completos y actualizados, que contengan características técnicas principales correspondientes a los bienes cotizados en la planilla de características técnicas garantizadas.
  • Protocolos de pruebas de acuerdo con las normas indicadas en esta especificación en laboratorios certificados y/o reconocidos a nivel nacional. En tales protocolos se deberán anotar las fechas de fabricación y de realización de las pruebas, para permitir la verificación de las características técnicas garantizadas. Así mismo las fotocopias de los certificados de laboratorios internacionales cuando las pruebas deban ser hechas fuera del país.
  • El oferente adjuntará con su propuesta el certificado de conformidad de producto con noma técnica y con RETIE, expedido por una entidad autorizada por la ONAC. Además deberá presentar el certificado del sistema de calidad (ISO 9001).
  • Los oferentes deberán ofrecer una garantía absoluta de sus productos de por lo menos dos (2) años.
  • Foto microscópica ampliada que evidencie cada una de las capas de fabricación de la cruceta.
  • Información adicional que considere aporta explicación a su diseño (dibujos, detalles, características de operación, dimensiones y pesos de los materiales ofertados).
  • Una muestra física de mínimo 5cm x 5cm de la cruceta
  • Relación de las excepciones de carácter exclusivamente técnico de la oferta, respecto a los bienes solicitados. Si la oferta no presenta excepción, esto se indicaría expresamente.
  • Prueba de torque de apriete 130 Nm en un laboratorio acreditado con ISO 17025.
  • Carta firmada por el oferente aceptando que si el resultado de la evaluación técnica es satisfactorio y es adjudicado, debe realizar las pruebas de perno de apriete e instalación de una estructura típica previamente a la fabricación masiva y a las pruebas de recepción, si el resultado es satisfactorio se procede a la fabricación. Si el resultado no es satisfactorio Codensa tendrá la potestad de rechazar el producto adjudicado.

Enel Colombia S.A. ESP. podrá descartar ofertas que no cumplan con las anteriores disposiciones, sin expresión de causa ni obligación de compensación.

15. SUMINISTRO Y RECEPCIÓN DE CRUCETAS

15.1. Tolerancias Aceptadas

Tipo de tolerancia observada Valores de tolerancia
Longitud ± 5 mm
Lados de sección externa ± 4 mm
Entre centros de perforación ± 4 mm
Perforaciones ± 2 mm

15.2. Recepción de crucetas

La recepción de crucetas, deberá hacerla el gestor técnico o un representante de Enel Colombia S.A. E.S.P, quienes inspeccionarán los lotes en forma detallada, para determinar si cumplen las especi¬ficaciones establecidas.

Para llevar a cabo las labores de inspec¬ción y recepción de crucetas, se establece el siguiente plan de muestreo, en el que se determina, de acuerdo con el tamaño del lote, el número de crucetas a las cuales se les debe practicar la inspección visual para la aceptación o rechazo del mismo:

*TABLA 6. INSPECCION VISUAL Y DIMENSIONAL
(Nivel de Inspección general II, NCA = 4%)*
Tamaño del lote Tamaño de muestra
0 – 300 Sujeto a acuerdo
301 - 2000 7
2001 - 5000 12
5001 – 10000 18

Nota. Si el tamaño de la muestra es mayor o igual al lote, se hará inspección 100%

15.3. Motivos de rechazo

Se rechazarán las crucetas por las siguientes causas (Defectos críticos):
  • La resistencia mecánica no cumple con los requisitos mínimos especificados.
  • Presencia de grietas, abultamientos o malos acabados
  • El incumplimiento de las tolerancias especificadas, se consideran como defectos críticos.
  • No colocación de la leyenda mencionada en el numeral 13.
  • No cumplimiento de alguna de las pruebas requeridas en esta especificación

16. GARANTIA DE FABRICA

Enel Colombia S.A. E.S.P requiere como mínimo, un período de garantía de fábrica de veinticuatro (24) meses, a partir de la entrega de los bienes.

17. INSPECCIÓN EN FABRICA

El suministrador enviará con no menos de quince (15) días calendario de anticipación, a la fecha programada para la realización de las pruebas en fábrica, el formato de protocolos de pruebas.

El proveedor debe brindar plena colaboración al funcionario de Enel Colombia S.A. ESP. en el cumplimiento de sus funciones.

El valor de las pruebas y ensayos debe incluirse en los precios cotizados en la propuesta. Enel Colombia S.A. ESP. se reserva el derecho de descartar las propuestas que no ofrezcan pruebas, o si las ofrecidas son consideradas insuficientes para garantizar la calidad de los dispositivos.

18. CERTIFICADOS DE CONFORMIDAD

El oferente adjuntará con su propuesta el certificado de conformidad de producto con norma técnica, expedido por una entidad acreditada bajo ISO IEC 17065.

ANEXO1. CARACTERÍSTICAS TÉCNICAS

ITEM DESCRIPCION OFERTADO
1 Proveedor
2 Fabricante
3 País del fabricante
4 Normas técnicas de diseño y pruebas
5 Dimensiones ancho, alto y profundidad (cm)
6 Peso total (kg)
7 Carga mínima de rotura (kgf)
8 Carga de trabajo (kgf)
9 Deflexión bajo carga máxima (mm)
10 Color (referencia RAL)
11 Cumple con la dimensión y la distribución de las perforaciones indicadas en el numeral 8.3. (Si/No)
12 Espesor de las capas (numeral 8.2. ) Capa a. Top coat exterior
Capa b. Veil ó Velo
Capa c. Fibra
Capa d. Composición Resina
13 Incluye tapas? (Si/No y describir)
14 Incluye marcación según numeral 13.? (Si/No y describir)
15 Presentan protocolo de pruebas de los siguientes ensayos: (Indicar Si/No y el laboratorio)
Prueba de resistencia a carga de diseño - ASTM D6109
Prueba de carga de rotura - ASTM D6109
Prueba de flexión - ASTM D6109
Prueba de perno pasante - ASCE104
Prueba de torsión de apriete - ASCE104
Prueba de resistencia a la torsión
Prueba mecánica de larga duración
Resistencia de las tapas laterales
Resistencia a rayos UV - ASTM G154
Termo deformación - ASTM D648
Retardación a las llamas - IEC 60695-2-11
Absorción de humedad - ASTMD 570
Rigidez Dieléctrica - ASTM D149
Prueba de tracking y erosión - IEC 60587
Prueba de tensión no disruptiva a frecuencia industrial en húmedo
Resistencia química - ASTM D543
Contenidos de vacío y relación Fibra-Resina (ASTM D2734 y ASTM D2584)
Prueba de torque de apriete o par de pernos
16 Vida útil (años)
17 Garantía (años)
RESULTADO DE EVALUACIÓN TÉCNICA
18 Certificación de sistema de calidad Entidad acreditadora
Número de acreditación
Fecha de aprobación (día/mes/año)
Vigencia
Adjunta el certificado (Si/No)
19 Certificación con normas técnicas Entidad acreditadora
Número de acreditación
Fecha de aprobación (Día/Mes/Año)
Vigencia
Norma técnica con la cual se certifica
Adjunta el certificado (Si/No)
20 Certificación con RETIE Entidad acreditadora
Número de acreditación
Fecha de aprobación (día/mes/año)
Vigencia
Adjunta el certificado (Si/No)
RESULTADO DE EVALUACIÓN REGULATORIA
21 Observaciones

ANEXO 2

Figura 1. Esquema para la prueba de resistencia de diseño y de flexión

Nota: P = carga que varía según la prueba

Figura 2. Esquema para la prueba de perno pasante


Figura 3. Esquema para la prueba de torsión de apriete


Figura 4. Esquema para la prueba de resistencia a la torsión


Figura 5. Esquema para la prueba mecánica de larga duración


DATOS ADICIONALES
Revisión #

2

Fecha de entrada en vigencia

HERRAMIENTAS
RELACIONADAS

Actividad de los usuarios

Estado del comentario