ET244 Tapa y marco en materiales compuestos poliméricos para cajas de inspección subterraneas
- Contenido
1.0 OBJETO
Establecer las características, requisitos y ensayos técnicos que deben cumplir las tapas y marcos para cajas de inspección en andenes en el sistema subterráneo de distribución y alumbrado público, en los siguientes materiales compuestos poliméricos:
1. Fibra de vidrio
2. Polipropileno de alta densidad
3. Policoncreto
No se permiten tapas y marcos con materiales que no sean los indicados en este numeral de la especificación
2.0 ALCANCE
Esta especificación técnica se aplicará en todas las tapas y marcos para cajas de inspección en andenes en el sistema subterráneo de distribución M.T, B.T y alumbrado público que adquiera Enel Colombia S.A. ESP. (Normas CS274 , CS275 y CS276 ). La instalación de estas tapas no se deben ubicar en ingreso a garajes o zonas de tráfico vehicular continuo.
3.0 CONDICIONES DE SERVICIO
Las tapas y marcos para cajas de inspección en el sistema de distribución y alumbrado público serán empleados a la intemperie bajo las siguientes condiciones:
CARACTERÍSTICAS AMBIENTALES | |
| a. Altura sobre el nivel del mar | Desde 2900 a los 600 m.s.n.m. |
| b. Ambiente | Tropical |
| c. Humedad relativa | Desde 100% al 20% |
| d. Temperatura máxima y mínima | +40 °C y -5 °C respectivamente |
| e. Temperatura promedio | 14 °C |
| f. Polución | Alta con productos de la combustión y altamente contaminada por otros agentes. |
| CARACTERÍSTICAS ELÉCTRICAS | |
| a. Tensión Nominal | 220V, 11.400 V, 13.200 V, 34.500V |
| b. Tensión Máxima | 35000 V |
| c. Frecuencia del sistema | 60 Hz |
4.0 SISTEMA DE UNIDADES
Todos los documentos tanto de la propuesta como del contrato de suministro, deben expresar las cantidades numéricas en unidades del Sistema Internacional (SI). Si el oferente utiliza en sus libros de instrucción, folletos o dibujos, unidades en sistemas diferentes, debe hacer las respectivas conversiones.
5.0 NORMAS DE FABRICACIÓN Y PRUEBAS
| NORMA | DESCRIPCION | |
| ANSI/SCTE | 77- 2013 | Society of Cable Telecommunications Engineers |
| ASTM D | 635-03 | Test Method for Rate of Buming and/or Extent and Time of Burning of Self-Supporting Plastics in a Horizontal Position |
| ASTM D | 883 | Terminology Relating to plastics |
| ASTM G | 154 | Standard Practice for Operating Fluorescent Light Apparatus for UV Exposure of Nonmetallic Materials |
| ASTM | 570-05 | Standard test method for water absorption of plastic |
| ASTM D | 543-06 | Standard Practices for evaluating the resistance of plastics to Chemical Reagents |
| ASTM C | 1028-07 | Standard test method for determining the static coefficient of friction of ceramic tile and other like surfaces by the horizontal dynamometer Pull-meter method |
| ASTM D | 2444-5/99 | Standard test method for determination of the impact resistance of thermoplastic pipe and fittings by means of a tup (Falling Weight) |
Pueden emplearse otras normas internacionalmente reconocidas equivalentes o superiores a las aquí señaladas, siempre y cuando se ajusten a lo solicitado en la presente especificación técnica.
Las normas citadas en la presente especificación (o cualquier otra que llegare a ser aceptada por ENEL - Enel Colombia S.A. ESP.) se refieren a su última revisión.
6.0 REQUERIMIENTOS TÉCNICOS PARTICULARES
Las tapas y marcos de materiales compuestos poliméricos indicados en el numeral 1 para cajas de inspección en el sistema de distribución y alumbrado público estarán construidos con materiales con la mejor calidad para ese fin. Las tapas y marcos deben ser auto soportables, rígidos y no debe presentar desajustes durante su transporte e instalación.
Entre otras características las tapas y marcos deben tener las características que se indican a continuación:
Resistir los rayos solares
Evitar propagar la llama
Rigidez dieléctrica elevada
Alta dureza
Alta resistencia a la tracción y a la flexión.
Resistente a los químicos y ácidos.
Debe ser libre de mantenimiento.
No debe contener elementos que sirvan de alimento o permitan ser atacadas por microorganismos.
Vida útil de 25 años o mayor
El acabado exterior de la tapa y el marco debe ser de color gris RAL serie 70, similar al RAL 7004
7.0 FABRICACIÓN DE LAS TAPAS
Las tapas y marcos serán entregadas como kit. Así mismo para suministro en instalaciones existentes donde se tiene caja y marco metálico construidos se podrá realizar la provisión de solo tapas de material compuestos polimérico.
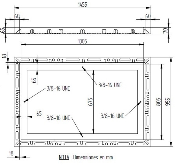
Para la fijación de la tapa al marco metálico existente se deberán hacer sobre el marco metálico perforaciones de 3/8” X 16 UNC (rosca de 16 hilos por pulgada) para poder atornillar y asegurar la tapa al marco. Para tapas de alumbrado público se requieren mínimo dos perforaciones, para tapas de MT y BT se requieren mínimo 4 perforaciones; ver figura No. 2 y figura No. 4.
Las tapas de fábrica llevarán de manera opcional tornillos del mismo material en lo posible y de cabeza destruible de Ø 3/8” X 91 mm que permitirá asegurar la tapa al marco. Para tapas de alumbrado público se tienen 2 tornillos, para tapas de MT y BT se tienen 4 tornillos; ver figura No. 6. No obstante el proveedor debe garantizar que, en el evento de no presentarte tornillos en la tapa, la misma no salga flotante por efectos de inundación de la caja de inspección , para tal fin la tapa debe entrar con cierta presión sobre el marco. Se permite bajo propuesta libre del proveedor previa validación de ENEL algún mecanismo que permita el ajuste de la tapa sobre el marco o en su defecto incremento del peso sin afectar el levantamiento ergonómico por dos personas.
Para cubrir el tornillo y dejar el hueco a nivel de la tapa llevara tapones de Ø 20 mm x 18 mm o ver figura No. 6.
El marco llevará en su contorno perforaciones de diferentes longitudes y ángulos que permiten la fijación a la caja de inspección con el concreto. Ver figuras No. 1, 3 y 5.
La tapa deberá tener como mínimo las siguientes capas y características constructivas iniciando en el exterior de la tapa de la siguiente manera:
Capa exterior con protección contra intemperie y U.V, de acuerdo con la ASTM- G154.
Compuestos que determinen las características mecánicas de la tapa de acuerdo con la carga a soportar o tipo de tapa.
Acabado superficial de la tapa, garantizando características antideslizantes.
El peso de la tapa deberá evitar riesgos de accidentes en la instalación y operación de las mismas en el momento de ser levantadas por mínimo dos personas sin que se presenten riesgos ergonómicos.
Las tapas podrán traer refuerzos en la parte inferior del mismo material, para garantizar estabilidad y cumplir con los requisitos de carga, deflexión y rotura.
La tapa deberá llevar en la parte frontal en bajo relieve el texto “NO RECICLABLE”. El texto deberá ser legible a una distancia de 1.60 m.
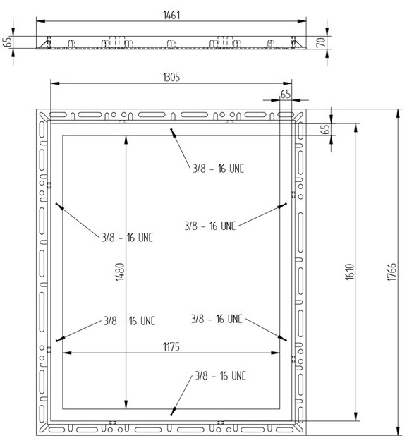
8.0 PARÁMETROS GEOMÉTRICOS
Las tapas y marcos de material compuestos polimérico para el sistema de distribución y alumbrado público será de la forma y dimensiones que se muestran en las figuras No. 1 a la figura No. 6. No obstante se permiten otros diseños de tapas en cuanto a la forma de los aquí indicados en este numeral siempre y cuando las tapas permitan instalarse y no afecten la geometría de las normas de cajas de inspección CS274-275-276 tanto existentes como nuevas que son las indicadas en el numeral 8.
8.1 Marco para acometidas BT y AP
8.2 Tapa para acometidas BT y AP

8.3 Marco para caja de inspección sencilla de MT y BT

8.4 Tapa para caja de inspección sencilla de MT y BT
Nota: Dimensiones en mm
8.5 Marco para caja de inspección doble de MT y BT
Nota: Dimensiones en mm

La tapa utilizada para el marco de inspección doble para MT y BT será la misma del numeral 8.4. Figura No. 4.
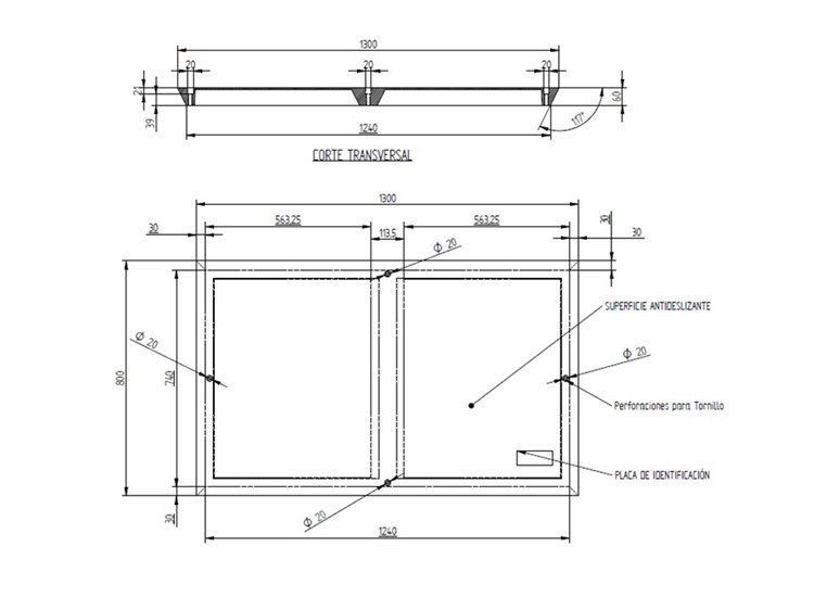
8.6 Tornillo de soporte de la tapa al marco
Nota: Dimensiones en mm
La sección de 18 mm del tornillo deberá tener una guía para fijar la broca en caso de retiro del tornillo.
9.0 PRUEBAS DE LABORATORIO
Los procedimientos para cada una de las pruebas indicadas en este numeral tendrán los criterios y procedimientos de prueba indicados en las normas ANSI/SCTE 77 2013 y ASTM indicados en los siguientes numerales.
9.1 Resistencia de Carga de Diseño - ASTM D2444-99
Se deberá aplicar una carga de 8000 lb – 3629 Kg por 10 ciclos. La tapa no deberá romperse ni fracturarse y no deberá presentar deflexión en su punto máximo más de 13 mm en el momento de aplicación de la carga.
9.2 Resistencia a impactos mecánicos - ASTM D2444-99 y ANSI/SCTE 77 2013
De acuerdo con la norma ANSI/SCTE 77 2013, la tapa deberá soportar un peso acorde con la ASTM D2444-99 de manera que soporte una energía correspondiente a la clasificación TIER 8.
9.3 Resistencia a carga de rotura - ASTM D2444-99
La tapa debe soportar una carga mínima de 12000 lb – 5443 kg la tapa no deberá presentar daños ni fracturas de ningún tipo.
9.4 Resistencia al deslizamiento – ASTM C1028-06
El grado de resistencia al deslizamiento sobre la superficie de la tapa deberá tener un coeficiente de fricción de al menos 0.5
9.5 Resistencia a la degradación UV – ASTM G-154
La tapa deberá presentar resistencia a la degradación producida por la exposición de rayos ultravioleta . Se deberán conservar mínimo el 85% de los valores de carga de diseño y deflexión y no presentar variación del 2% en el peso.
9.6 Resistencia a agentes químicos – ASTM D543
Ante la presencia de agentes químicos tales como cloruro de sodio, acido sulfúrico, carbonato de sodio, sulfato de sodio, acido hidroclórico , hidróxido de sodio, acido acético, kerosene y aceite de transformador, entre otros, la tapa deberá presentar resistencia a la degradación producida por la exposición de rayos ultravioleta . Se deberán conservar mínimo el 85% de los valores de carga de diseño y deflexión y no presentar variación del 2% en el peso.
9.7 Resistencia a la absorción de humedad – ASTM D570
Se deberán conservar mínimo el 85% de los valores de carga de diseño y deflexión y no presentar variación del 2% en el peso.
9.8 Retardancia a la llama ANSI/SCTE 77 -2007
Al colocar la llama en un extremo de una muestra de material de la tapa de 25 mm x 100 mm, la rata de propagación de la llama no debe ser mayor de 8 mm por minuto por cada 3 mm de espesor
10.0 PRUEBA DIMENSIONAL
La verificación de las dimensiones se hará con los instrumentos de medida que den la precisión requerida y el calibrador para los diámetros y espesores. El tamaño de la muestra deberá estar de acuerdo con la NTC 2857-1.
11.0 ENSAYOS DE LABORATORIO
El registro completo de los ensayos debe estar disponible para ENEL - Enel Colombia S.A. ESP., durante el tiempo que dure la fabricación y por los dos años siguientes a su terminación.
Todos los ensayos descritos en esta especificación se deben realizar por parte del fabricante y se deben entregar a ENEL - Enel Colombia S.A. ESP.
Los laboratorios de pruebas deberán ser laboratorios certificados a nivel nacional por los entes competentes.
12.0 MARCAS
Todas las tapas deberán llevar, en forma clara una leyenda en bajo relieve o placa, que indique:
Palabra BOG-CUN (en bajo relieve)
Nombre o razón social del fabricante.
Peso máximo carga soportada en kg
Fecha de fabricación, día mes año.
Peso de la tapa kg
13.0 REQUISITOS DE LAS OFERTAS
La oferta técnica deberá entregarse en medio magnético. El oferente deberá incluir con su propuesta la siguiente información:
Relación de los bienes cotizados.
Información del oferente, relación de clientes, evidencia de su capacidad técnica y experiencias relacionadas con los materiales y/o equipos cotizados.
Listado de normas técnicas aplicables a los bienes cotizados.
Planilla de características técnicas garantizadas indicada en el anexo1, la cual deberá ser diligenciada completamente por el oferente. Esta planilla debe entregarse en formato Excel.
Catálogos originales, completos y actualizados, que contengan características técnicas principales correspondientes a los bienes cotizados en la planilla de características técnicas garantizadas.
Protocolos de pruebas de acuerdo con las normas indicadas en esta especificación en laboratorios certificados y/o reconocidos a nivel nacional. En tales protocolos se deberán anotar las fechas de fabricación y de realización de las pruebas, para permitir la verificación de las características técnicas garantizadas. Así mismo las fotocopias de los certificados de laboratorios internacionales cuando las pruebas deban ser hechas fuera del país.
El oferente adjuntará con su propuesta el certificado de conformidad de producto con noma técnica, expedido por una entidad autorizada por la ONAC. Además deberá presentar el certificado del sistema de calidad (ISO 9001).
Los oferentes deberán ofrecer una garantía absoluta de sus productos de por lo menos dos (2) años.
Foto microscópica ampliada que evidencie cada una de las capas de fabricación de la tapa.
Una muestra física desde el borde superior de la tapa, mínimo 10 cm de largo x 6,0 cm de altura del corte de la tapa.
Información adicional que considere aporta explicación a su diseño (dibujos, detalles, características de operación, dimensiones y pesos de los materiales ofertados).
Relación de las excepciones de carácter exclusivamente técnico de la oferta, respecto a los bienes solicitados. Si la oferta no presenta excepción, esto se indicaría expresamente.
Enel Colombia S.A. ESP. podrá descartar ofertas que no cumplan con las anteriores disposiciones, sin expresión de causa ni obligación de compensación.
14.0 SUMINISTRO Y RECEPCION TAPAS Y MARCOS
14.1 Tolerancias aceptadas
Se acepta una tolerancia en la longitud, ancho y alto de la tapa y el marco de ± 3 milímetros.
14.2 Recepción de marcos y tapas
La recepción de marcos y tapas se deberá hacerla el gestor técnico o un representante de ENERL -
Enel Colombia S.A. ESP., quienes inspeccionarán los lotes en forma detallada, para determinar si cumplen las especificaciones establecidas.
Para llevar a cabo las labores de inspección y recepción de tapas y marcos, se establece el siguiente plan de muestreo, en el que se determina, de acuerdo con el tamaño del lote, el número de unidades a los cuales se les debe practicar la inspección visual para la aceptación o rechazo del mismo:
INSPECCION VISUAL Y DIMENSIONAL (Nivel de Inspección general II, NCA = 4%)
| Tamaño del lote | Tamaño de muestra | Aceptación | Rechazos |
| 2 - 25 | 3 | 0 | 1 |
| 26 - 90 | 13 | 1 | 2 |
| 91 - 150 | 20 | 2 | 3 |
| 151 - 280 | 32 | 3 | 4 |
| 281 - 500 | 50 | 5 | 6 |
| 501 - 1200 | 80 | 7 | 8 |
Nota: Si el tamaño de la muestra es mayor o igual al lote, se hará inspección 100%
14.3 Motivos de rechazo.
Se rechazarán los tapas y marcos por las siguientes causas (Defectos críticos):
La resistencia mecánica no cumple con los requisitos mínimos especificados.
Presencia de grietas, abultamientos o malos acabados
El incumplimiento de las tolerancias especificadas, se consideran como defectos críticos.
No colocación de la leyenda mencionada en el numeral 17.1
No cumplimiento de alguna de las pruebas requeridas en esta especificación
15.0 GARANTÍA DE FABRICA
Enel Colombia S.A. E.S.P requiere como mínimo, un período de garantía de fábrica de veinticuatro (24) meses, a partir de la entrega de los bienes.
16.0 INSPECCIÓN EN FABRICA
El suministrador enviará con no menos de quince (15) días calendario de anticipación, a la fecha programada para la realización de las pruebas en fábrica, el formato de protocolos de pruebas
El proveedor debe brindar plena colaboración al funcionario de Enel Colombia S.A. ESP. en el cumplimiento de sus funciones.
El valor de las pruebas y ensayos debe incluirse en los precios cotizados en la propuesta. Enel Colombia S.A. ESP. se reserva el derecho de descartar las propuestas que no ofrezcan pruebas, o si las ofrecidas son consideradas insuficientes para garantizar la calidad de los dispositivos.
17.0 CERTIFICADOS DE CONFORMIDAD
El oferente adjuntará con su propuesta el certificado de conformidad de producto con norma técnica, expedido por una entidad autorizada por la ONAC- Organismo Nacional de Acreditación de Colombia
ANEXO 1. RELACIÓN DE LOS BIENES COTIZADOS.
| Código | Descripción | Cantidad |
| Tapa y marco compuestos poliméricos CS274 | ||
| Tapa y marco compuestos poliméricos CS275 | ||
| Tapa y marco compuestos poliméricos CS276 | ||
| Tapa compuestos poliméricos CS274 | ||
| Tapa compuestos poliméricos CS275 | ||
| Tapa compuestos poliméricos CS276 |
ANEXO 2. TABLA DE CARACTERÍSTICAS TÉCNICAS GARANTIZADAS.
| ITEM | |||||
| DESCRIPCIÓN | Tapa y marco compuesto polimérico (CS274 ____ , CS275 ____ , CS276 ____ ) | ||||
| ESPECIFICACIÓN | ET244 | ||||
| CÓDIGO | |||||
| ITEM | DESCRIPCION | SOLICITADO | OFERTADO | ||
| 1 | Proveedor | A especificar por el fabricante | |||
| 2 | Fabricante | A especificar por el fabricante | |||
| 3 | Pais del fabricante | A especificar por el fabricante | |||
| 4 | Normas técnicas de diseño y pruebas | ET244 y las indicadas en esta especificación | |||
| 5 | Tapa y marco para AP y acometidas en BT -CS274 | A especificar por el fabricante (tapa y marco o solo tapa) | |||
| 6 | Tapa y marco caja de inspección sencilla para canalizaciones de MT y BT CS275 | A especificar por el fabricante (tapa y marco o solo tapa) | |||
| 7 | Tapa y marco caja de inspección doble para canalizaciones de MT y BT CS276 | A especificar por el fabricante (tapa y marco o solo tapa) | |||
| 8 | Cumple con las dimensiones indicadas en la ET244 | SI | |||
| 9 | Peso total (kg) | A especificar por el fabricante | |||
| 10 | Adjunta protocolos de la prueba de Resistencia de Carga de Diseño - ASTM D2444-99 | SI | |||
| 11 | Adjunta protocolos de la prueba de Resistencia a impactos mecánicos - ASTM D2444-99 | SI | |||
| 12 | Adjunta protocolos de la prueba de Resistencia a carga de rotura - ASTM D2444-99 | SI | |||
| 13 | Adjunta protocolos de la prueba de Resistencia al deslizamiento – ASTM C1028-06 | SI | |||
| 14 | Adjunta protocolos de la prueba de resistencia a la degradación UV – ASTM G-154 | SI | |||
| 15 | Adjunta protocolos de la prueba de Resistencia a agentes químicos – ASTM D543 | SI | |||
| 16 | Resistencia a la absorción de humedad – ASTM D570 | SI | |||
| 17 | Retardancia a la llama ANSI/SCTE 77 -2007 | SI | |||
| 18 | Incluye muestra muestra física desde el borde mínimo 10 cm de largo x 6,0 cm de altura del corte de la tapa | SI | |||
| 19 | Incluye foto microscopica ampliada que evidencie cada una de las capas de fabricación de la tapa | SI | |||
| 20 | Incluyen tornillos de cabeza perdible y tapon | SI | |||
| 21 | Incluye marcación según numeral 12,1 | SI (describir metodo) | |||
| 22 | Vida útil (años) | minimo 25 | |||
| 23 | Garantía (años) | minimo 2 | |||
| RESULTADO DE EVALUACIÓN TÉCNICA | |||||
| 24 | Certificación de sistema de calidad | Entidad acreditadora | |||
| Número de acreditación | |||||
| Fecha de aprobación (día/mes/año) | |||||
| Vigencia | |||||
| Adjunta el certificado (Si/No) | |||||
| 25 | Certificación con normas técnicas | Entidad acreditadora | |||
| Número de acreditación | |||||
| Fecha de aprobación (Día/Mes/Año) | |||||
| Vigencia | |||||
| Norma técnica con la cual se certifica | |||||
| Adjunta el certificado (Si/No) | |||||
| RESULTADO DE EVALUACIÓN REGULATORIA | |||||
| 26 | OBSERVACIONES | ||||
DATOS ADICIONALES
Revisión #
4
Fecha de entrada en vigencia
Actividad de los usuarios
Para hacer comentarios debe iniciar sesión o registrarse aquí