ET215 Postes de concreto con puesta a tierra inmersa en concreto
- Contenido
1. OBJETO
La presente especificación técnica tiene por objeto establecer las características y dimensiones que deben cumplir los postes de concreto con el conductor del electrodo de puesta a tierra inmersa en el fraguado del concreto que se emplean como soportes estructurales para líneas aéreas de distribución de media y baja tensión y alumbrado público2. ALCANCE
Los postes son usados para la fijación de las diferentes estructuras utilizados en los sistemas de distribución urbana y rural.Los suelos donde son instalados podrán ser terrenos de relleno, arenosos, rocosos, arcillosos semiduros, con una capa de profundidad variable de humus, abarcando químicamente suelos desde ácidos a alcalinos y desde oxidantes a reductores con gran variedad en la cantidad y tipo de sales solubles.
3. CONDICIONES AMBIENTALES
El ambiente donde serán instalados los postes de concreto con la bajante inmersa podrá tener las siguientes características dentro del área de concesión de Enel Colombia S.A. E.S.P, bajo las siguientes condiciones:| CARACTERÍSTICAS AMBIENTALES | |
| a. Altura sobre el nivel del mar | Desde 300 m hasta 2 640 m |
| b. Ambiente | Tropical |
| c. Humedad | 90% |
| d. Temperatura máxima y mínima | 27 ºC y - 5 ºC respectivamente. |
| e. Temperatura promedio | 14 ºC. |
4. CONDICIONES DE SERVICIO
Los postes podrán ser instalados, en cualquier zona del área de cobertura de Enel Colombia S.A.5. SISTEMAS DE UNIDADES
En todos los documentos técnicos se deben expresar las cantidades numéricas en unidades del sistema Internacional. Si se usan catálogos, folletos o planos, en sistemas diferentes de unidades, deben hacerse las conversiones respectivas.6. NORMAS RELACIONADAS
Los postes deberán cumplir con las normas de fabricación y ensayos estipulados en la especificación técnica ET-201 “Postes de Concreto” y las indicadas en este documento.Pueden emplearse otras normas internacionalmente reconocidas equivalentes o superiores a las aquí señaladas, siempre y cuando se ajusten a lo solicitado en la presente especificación técnica .
Las normas citadas en la presente especificación (o cualquier otra que llegare a ser aceptada por Enel Colombia S.A.) se refieren a su última revisión.
7. DEFINICIONES
Se establecen las siguientes definiciones para efectos de esta especificación técnica :- CABLE BAJANTE-CONDUCTOR DEL ELECTRODO DE PUESTA A TIERRA
Conductor eléctrico utilizado para conectar el neutro o un punto de referencia de tierra ubicado en las estructuras de Media Tensión o Baja Tensión o equipos al electrodo de puesta a tierra (normalmente una varilla de puesta a tierra )
- CONECTOR DE LA BAJANTE
Borna utilizada para conectar el cable de bajante con los diferentes punto de referencia (neutro, varilla de puesta a tierra o punto de tierra de equipos y cables).
- CAJA 5800
Caja en material plástico utilizada para alojar el conector de la bajante y realizar empalmes
- CORROSIÓN
Destrucción paulatina del cable de bajante por acción de agentes externos como son la humedad que absorba el poste ò las sales propias de la construcción del concreto.
- BASE
Plano o sección transversal extrema en la parte inferior del poste.
- CIMA
Plano o sección transversal extrema, en la parte superior del poste.
- CONCRETO
Mezcla de cemento hidráulico, agregado fino (arena), agregado grueso (gravilla) y agua.
- LONGITUD DE EMPOTRAMIENTO (H 1 )
Distancia entre la sección de empotramiento y la base del poste.
- LONGITUD TOTAL (H)
Distancia entre la cima y la base del poste.
- LONGITUD ÚTIL (H 2 )
Distancia entre la cima y la sección de empotramiento del poste.
- PERFORACIONES
Agujeros cilíndricos, a través del eje central de la sección del poste, utilizados para la fijación de elementos de la red.
- SECCIÓN DE EMPOTRAMIENTO
Plano o sección transversal del poste, a nivel de piso, donde se produce el máximo momento flector, por efecto de las cargas de trabajo.
8. REQUERIMIENTOS TÉCNICOS Y PARTICULARES
8.1. Calculo y Diseño
8.1.1. Cargas Mínimas de RoturaSe establecen las siguientes cargas mínimas de rotura para todos los postes de concreto reforzado y pretensionado incluidos en esta norma.
Carga mínima de rotura:
510 kg, 750 kg, 1 050 kg, 1 350 kg
8.1.2. Parámetros Geométricos, conicidad y carga de trabajo
Los postes de concreto reforzado o de concreto pretensionado, deberán cumplir con las características establecidas en la ET -.201 ”Postes de Concreto” y con lo descrito en este documento.
8.1.3. Detalle constructivo
La fabricación del sistema , incluye la instalación del conductor del electrodo de puesta a tierra dentro del armazón del poste antes de su fraguado.
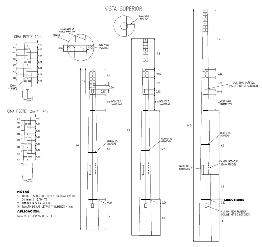
El poste tendrá dos salidas con su respectivo conector para realizar las respectivas conexiones una en la parte inferior, 30 cm por debajo de la línea de enterramiento, ver figuras No. 1, 2 y 3, para conectar la varilla de tierra. La otra salida se encuentra en la parte superior del poste (10 cm por debajo de la perforación inferior), ver figura 5 y conecta la bornera con la tierra de los cables y/o equipos. Estas dos borneras estarán dentro de las cajas 5800 que vienen empotradas al poste, ver figuras No. 3 y 4, no queda nada fuera de la superficie del poste para evitar que la manipulación del poste en fábrica y cargue afecte cualquier elemento de la conexión.
Las cajas 5800 deben estar cubiertas para evitar el llenado de concreto durante el fraguado. Las borneras utilizada en la parte superior como en la parte inferior del poste son exactamente iguales en su diseño.
El cable interno dentro del poste debe asegurarse con terminal tipo pala para facilitar la conexión a la bornera.
El cable utilizado como conductor del electrodo de puesta a tierra debe ser aislado a 600 V para evitar la corrosión que se pueda presentar al contacto con las sales del concreto antes y después del proceso de fabricación. El calibre a utilizar en el cable electrodo de puesta a tierra es en cobre No. 4 AWG, siguiendo las mismas características del calibre de electrodo utilizado actualmente en las diferentes estructuras normalizadas en la Compañía. De esta forma se interconecta el conductor del electrodo en la parte superior como en la parte inferior con sus respectivos conectores.
El material del diseño estándar del conector y tonillo principal están elaborados en bronce y las arandelas y rosca en Cobre ya que el conductor del electrodo de puesta a tierra esta elaborado en Cobre, y el material del cable de conexión a la varilla esta diseñado en Cobre, igualmente los materiales de los cables actuales que se conectan en la bornera superior son en Cobre para evitar corrosión y/o par galvánico entre materiales.
De la misma forma el material utilizado como conductor del electrodo, borneras y accesorios de conexión pueden ser de otro tipo siempre y cuando este avalados en el RETIE y no generen par galvánico y/o corrosión entre materiales que conectan y se unen al electrodo. La utilización de otro material diferente al estándar será elaborando previa solicitud directa de Enel Colombia S.A. E.S.P al proveedor.
Los elementos que sirven de empalme al exterior del poste constituyen un kit compuesto de los siguientes elementos:
• Una caja 5800 tipo plástica
• Un conector plano en bronce tipo servicio con ojo y para conexión de cable No 4 AWG.
• Un terminal tipo pala para cable No. 4 AWG en Cu zincado
• Dos tuercas en bronce
• Dos arandela de sujeción internas en cobre
• Una arandela de sujeción externa en cobre
• Un tornillo principal en bronce.
Tanto el conector como los accesorios, deben ser diseñados de manera que no genere corrosión y/o par galvánico con el conductor del electrodo seleccionado en la instalación, para este caso el estándar cable de Cu No. 4 AWG. Se requiere que en la punta del tornillo principal se realice una traba a la rosca para evitar que se salgan los accesorios del cuerpo del conector.
Cada poste debe incluir dos de estos kit, uno en la parte superior para la conexión a tierra de protecciones y equipos y otro en la parte inferior para la conexión a la varilla de puesta a tierra .
Figura No. 3. Instalación superior e inferior de cajas 5800 en postes
Figura No. 4. Conexiones inferior y superior al electrodo de Puesta a
8.2. Longitud de Enterramiento
Para definir la longitud de empotramiento, se debe aplicar la siguiente fórmula:H1 = 0,1 H + 0,60 (m)
H1 = Longitud de empotramiento (m).
H = Longitud total del poste (m).
9. FABRICACIÓN DE LOS POSTES
Los postes se deben fabricar de acuerdo con las características y normas indicadas en la ET-201 ”Postes de Concreto” y las descritas en este documento. Por lo tanto los parámetros de recubrimiento, resistencia, refuerzo y deformaciones deberán cumplir con las características y normas indicadas en la ET-201 ”Postes de Concreto” y las descritas en este documento.10. ENSAYO DE LABORATORIO Y PRUEBAS DE CARGA
El registro completo de los ensayos de los materiales y del concreto, debe estar disponible para el comprador, durante el tiempo que dure la fabricación y por los dos años siguientes a su terminación. Todos los ensayos de los materiales y de laboratorio y del concreto en sí, se deben realizar de acuerdo con las características y normas indicadas en la ET-201 ”Postes de Concreto” y las descritas en este documento.Es obligación del fabricante realizar las pruebas de postes y ensayos de materiales indicados por un laboratorio especializado y aceptado previamente por el comprador.
11. SUMINISTRO Y RECEPCIÓN DE POSTERÍA
11.1 Tolerancias Aceptadas
El proveedor deberá cumplir con las longitudes de poste, desviaciones de eje longitudinal, dimensiones de sección transversal y separación entre perforaciones de acuerdo a las indicaciones estipuladas en la ET-201 ”Postes de Concreto” y las descritas en este documento.11.2 Marcas y señalizaciones
11.2.1 Marcas.Todos los postes deberán llevar, en forma clara y a una altura entre 1.5m y 2 m sobre la sección de empotramiento, una marcación en bajo relieve en el concreto o placa metálica embebida en el concreto, que indique:
- Nombre o razón social del fabricante.
Longitud del poste en metros
- Carga mínima de rotura en N o kgf
Fecha de fabricación, día mes año.
Peso del poste.
Para compras realizadas por Enel Colombia S.A ESP se debe incluir la palabra BOG-CUN y la orden de compra.
11.2.2 Señalizaciones.
Todos los postes deben llevar las siguientes señalizaciones:
- Centro de gravedad. Debe llevar una franja, pintada de color rojo, de 30 mm de ancho y que cubra el semiperímetro de la sección, en el sitio que corresponde al centro de gravedad.
- Profundidad de empotramiento. Todos los postes deben llevar pintada, una franja de color verde, de 30 mm de ancho y que cubra el semiperímetro de la sección e indique hasta donde se debe enterrar el poste.
- Zona para telemáticos. Para señalizar esta zona debe incluirse dos franjas con una separación de 1m, pintadas de color verde, de 30mm de ancho cada una y que cubra el semiperímetro de la sección. La primera franja debe ubicarse a 1.7m de la cima en los postes de 10m, a 3.5m de la cima para postes de 12m y a 5.3m de la cima para postes de 14m.
11.3 Recepción de postería, plan de muestreo y motivos de rechazo
La recepción de los postes, deberá hacerla un representante de Enel Colombia S.A. E.S.P, quien inspeccionará los lotes en forma detallada, para determinar si cumplen las condiciones establecidas en este documento y lo estipulado en la ET-201 “Postes de Concreto”. Durante el proceso de recepción, se deberá cumplir con el procedimiento ( inspección en sitio, plan de muestreo, motivos de rechazo, etc.) establecido en la ET-201.El proveedor deberá firmar acta de garantía por escrito a Enel Colombia S.A. E.S.P en el momento de la asignación de orden de Compra, que certifique la veracidad de la instalación del conductor electrodo inmerso en concreto y de la correcta conexión entre conectores y conductor.
Dentro del plan de muestreo y pruebas Enel Colombia S.A. E.S.P, tendrá la potestad de destruir una muestra para verificar la correcta instalación y conexión del electrodo y sus componentes y la existencia del electrodo inmerso en el concreto. Adicionalmente para verificar la instalación del conductor se debe realizar pruebas de resistencia ohmica o continuidad, de las cuales el proveedor debe entregar protocolos de medición.
El poste y el kit para conexión del conductor del electrodo de puesta a tierra deberán ser suministrados por el fabricante, este mismo deberá entregar en su propuesta el nombre del proveedor de los accesorios de conexión y unión del electrodo con el fin de que los mismos sean avalados por Enel Colombia S.A. E.S.P. Se aceptaran para el kit elementos diferentes a los propuestos en el numeral 8.1.3 siempre que cuenten con aceptación previa de Enel Colombia S.A ESP.
12. REQUISITOS DE LAS OFERTAS
El oferente obligatoriamente deberá incluir con su propuesta la siguiente información:- Planilla de características técnicas garantizadas, la cual deberá ser diligenciada completamente, firmada y sellada por el oferente. El proponente debe indicar en el formulario 1, todos los datos solicitados para cada uno de los postes ofrecidos
- Catálogos originales completos y actualizados del fabricante, que correspondan a los bienes cotizados, en la planilla de características técnicas garantizadas.
- Protocolos de pruebas de acuerdo con las normas indicadas en el numeral 10 de la presente especificación. En tales protocolos se deberán indicar las fechas de fabricación y de las pruebas realizadas, para permitir la verificación de las características técnicas garantizadas.
- Certificaciones del sistema de calidad y de producto con norma técnica y RETIE .
- Información adicional que considere aporta explicación a su diseño (dibujos, detalles, características de operación, dimensiones y pesos de los materiales ofertados).
Enel Colombia S.A. podrá descartar ofertas que no cumplan con las anteriores disposiciones, sin expresión de causa ni obligación de compensación
13. CERTIFICADOS DE CONFORMIDAD
El oferente adjuntará con su propuesta el certificado de conformidad de producto con norma técnica y RETIE , expedido por una entidad autorizada por la ONAC-Organismo Nacional de Acreditación de Colombia.FORMULARIO 1. CARACTERÍSTICAS TÉCNICAS
| N° | CARACTERÍSTICAS | OFERTADO | |
| 1 | Fabricante | ||
| 2 | Proveedor del poste | ||
| 3 | Proveedor de accesorios del electrodo | ||
| 4 | Normas técnicas de diseño y tipo de fabricación | ||
| 5 | Longitud total (m) | ||
| 6 | Diámetro en la cima (cm) | ||
| 7 | Diámetro en la base (cm) | ||
| 8 | Peso total (kg) | ||
| 9 | Elementos del kit de conexión del electrodo (indicar tipo, material, número, características) | Conector y tornillo | |
| Arandelas interna y externa | |||
| Terminal externo de conexión de cable No. 4AWG | |||
| Tuercas | |||
| Caja 5800 | |||
| 10 | Tipo y calibre del conductor inmerso en concreto | ||
| 11 | Resistencia mínima concreto f'c (kg/cm²) | ||
| 12 | Carga mínima de rotura (kgf) | ||
| 13 | Sistema de construcción (vibrado/centrifugado) | ||
| 14 | Tipo de poste (Para red de BT y/o MT o Para AP) | ||
| 15 | Cumple con marcación y señalización según ítem 11.2 (Si/No, detalles) | ||
| 16 | Presentan protocolo de pruebas (Si/No, indicar las pruebas) | ||
| 17 | Certificación de sistema de calidad | Entidad acreditadora | |
| Número de acreditación | |||
| Fecha de aprobación (día/mes/año) | |||
| Vigencia | |||
| Adjunta el certificado (Si/No) | |||
| 18 | Certificación de producto con norma técnica | Entidad acreditadora | |
| Número de acreditación | |||
| Fecha de aprobación (día/mes/año) | |||
| Vigencia | |||
| Adjunta el certificado (Si/No) | |||
| 19 | Certificación de producto con RETIE | Entidad acreditadora | |
| Número de acreditación | |||
| Fecha de aprobación (día/mes/año) | |||
| Vigencia | |||
| Adjunta el certificado (Si/No) | |||
DATOS ADICIONALES
Revisión #
2
Fecha de entrada en vigencia
Actividad de los usuarios
Para hacer comentarios debe iniciar sesión o registrarse aquí