ET211 Poste metálico para alumbrado público con canasta
- Contenido
1. OBJETO
Esta especificación técnica establece las características y requisitos técnicos que deben cumplir y los ensayos a los cuales deben ser sometidos los postes metálicos con canasta en el sistema de alumbrado público de Enel Colombia S.A. ESP.2. ALCANCE
Esta especificación técnica se aplicará en todos los postes metálicos para alumbrado público con canasta que adquiera Enel Colombia S.A. ESP.3. CONDICIONES AMBIENTALES
Los postes metálicos para alumbrado público con canasta serán utilizados en el sistema de alumbrado público del área de concesión de Enel Colombia S.A. E.S.P, bajo las siguientes condiciones:| CARACTERÍSTICAS AMBIENTALES | |
| a. Altura sobre el nivel del mar | 2 640 m |
| b. Ambiente | Tropical |
| c. Humedad | Mayor al 90 % |
| d. Temperatura máxima y mínima | 45 ºC y - 5 ºC respectivamente. |
| e. Temperatura promedio | 14 ºC. |
| f. Instalación | A la intemperie bajo condiciones de contaminación atmosférica, humedad, humo, polvo, ozono y a cambios repentinos de temperatura. |
| CARACTERÍSTICAS ELÉCTRICAS | |
| a. Tensión Nominal del sistema | |
| Línea - Línea | 208 V, 240 V, 380 V, 480V |
| Línea – Neutro | 220V, 240 V, 277 V |
| b. Frecuencia del sistema | 60 Hz |
4. SISTEMA DE UNIDADES
Todos los documentos técnicos, deben expresar las cantidades numéricas en unidades del sistema Internacional (S.I.). Si se usan catálogos, folletos o planos, en sistemas diferentes de unidades, deben hacerse las conversiones respectivas.5. NORMAS DE FABRICACIÓN Y PRUEBAS
| NORMA | DESCRIPCIÓN | |
| NTC | 1 | Ensayo de doblamiento para productos metálicos |
| NTC | 2 | Ensayos de tracción para productos de acero. |
| NTC | 23 | Determinación gravimétrica de carbono por combustión directa en aceros al carbono. |
| NTC | 24 | Determinación del manganeso en aceros al carbono. |
| NTC | 25 | Determinación del manganeso en aceros al carbono. Método del Bismutato. |
| NTC | 26 | Determinación del silicio en aceros al carbón. |
| NTC | 27 | Determinación de azufre en aceros al carbono. Método de evolución. |
| NTC | 28 | Determinación del silicio en aceros al carbono. Método del ácido sulfúrico. |
| NTC | 180 | Método gasométrico para determinación de carbono por combustión directa en hierros y aceros al Carbono. |
| NTC | 181 | Aceros al carbono y fundiciones de hierro, método alcalimétrico para determinación de fósforo. |
| NTC | 422 | Perfiles livianos y barras de acero al carbono acabadas en frío. |
| NTC | 858-3 | Discontinuidades superficiales en pernos, tornillos y espárragos para aplicaciones generales. |
| NTC | 1097 | Control estadístico de calidad , inspección por atributo, planeo de muestra única, doble y múltiple. |
| NTC | 1645 | Tuercas cuadradas y hexagonales. Serie inglesa. |
| NTC | 1920 | Metalurgia. Acero estructural. |
| NTC | 2076 | Electricidad. Galvanizado por inmersión en caliente para herrajes y perfiles estructurales de hierro y Acero. |
| NTC | 3320 | Siderurgia. Recubrimiento de zinc (galvanizado) por inmersión en caliente en productos de hierro y Acero. |
| NTC | 2120 | Electrotecnia. Guía para inspección de soldadura por medio de ensayos no destructivos. |
| NTC | 2618 | Herrajes y accesorios para líneas y redes de distribución de energía eléctrica. Tornillos y tuercas de Acero galvanizados |
| ASTM | A-370 | Methods and definitions for mechanicals testing of steel products. |
| AWS | D.1.1 | Structural welding code. |
| AWS | D 10.9 | Standard for qualification of welding procedures and welders for piping and tubing. |
| ASTM | A53 | Standard Specification for Pipe, Steel, Black and Hot-Dipped, Zinc-Coated, Welded and Seamless. |
| ASTM | A385 | Standard practice for providing high quality zinc coatings (hot dip) |
| ASTM | A500 | Standard Specification for Cold-Formed Welded and Seamless Carbon Steel Structural Tubing in Rounds and Shapes. |
| ASTM | A563 | Standard Specification for carbon and alloy steel nuts. |
| ANSI / ASME | B1.1 | Unified Inch Screw Threads. |
Las normas citadas en la presente especificación (o cualquier otra que llegare a ser aceptada por Enel Colombia S.A.) se refieren a su última revisión.
6. REQUERIMIENTOS TÉCNICOS PARTICULARES
6.1 Características Generales
Los postes son elementos mecánicos que trabajan a flexión y cuya única función es sostener las luminarias y sus brazos, estos elementos serán empleados a la intemperie, siendo ésta generalmente en climas que van desde el cálido al frío y desde el húmedo hasta el cálido y sometidos a la contaminación atmosférica de la ciudad.Los postes metálicos de que trata esta especificación serán instalados en los sistemas de alumbrado público a 208 V, de los circuitos de distribución de Enel Colombia S.A. ESP.
Los postes metálicos deben ser inmunes a la acción de la humedad, el humo, el polvo, el ozono, etc. y a los cambios rápidos de temperatura, en condiciones de trabajo.
Son elementos de características geométricas y mecánicas tales que les permiten adaptarse a las limitaciones impuestas por otros elementos.
6.2 Características geométricas
Los postes metálicos para alumbrado público serán de la forma y dimensiones que se muestran las figuras.Los postes metálicos a fabricar serán los siguientes:
- Poste metálico de 12 m
- Poste metálico de 14 m
- Poste metálico de 16 m
- Poste metálico de 18 m
- Poste metálico de 21 m
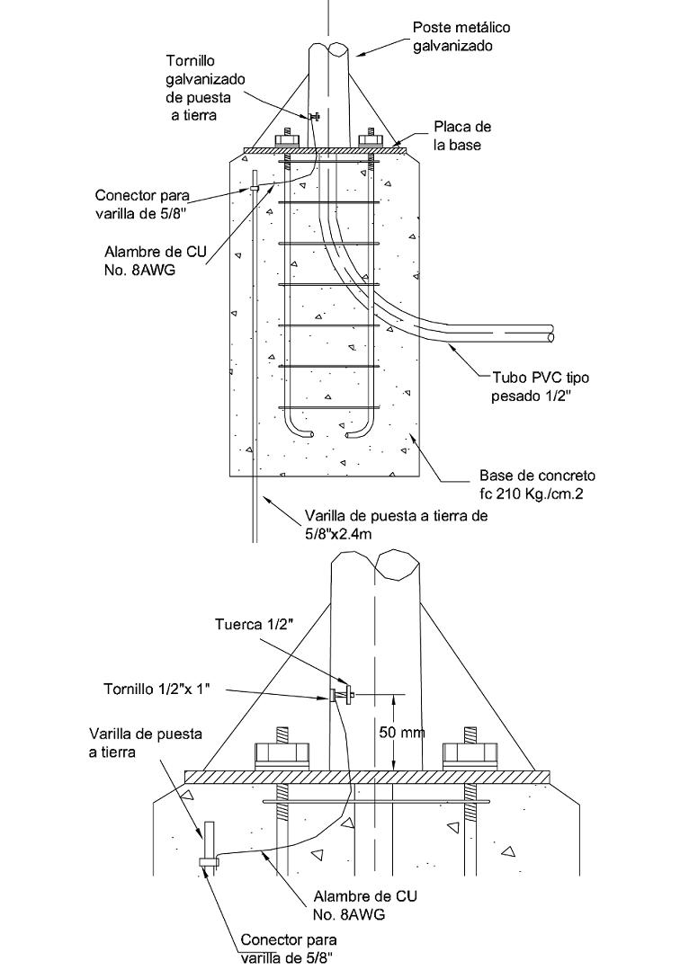
Los postes fabricados deben tener en su extremo inferior una base o placa cuadrada debidamente soldada y adicionalmente la unión del poste con la base metálica debe ser reforzada con 4 platinas triangulares de un espesor adecuado para dar rigidez a la placa base, según se muestra en la figura 1. Referente a las uniones de los tramos tronco cónicos y base se debe realizar con uno o dos pases de soldadura E-6010 son suficiente corriente eléctrica para obtener máxima penetración entre las piezas y con pases sucesivos de E-7018 hasta alcanzar una altura mínima del refuerzo de ¼” todas las soldaduras deben ser libres de defectos tales como escorias, inclusiones, poros, etc., y de la misma forma deben cumplir el código ASME capitulo IX.
El espesor de recubrimiento (galvanizado) debe ser como mínimo de 75 micras con acabado liso y uniforme y con una barrera epóxica con curado poliamida para metales (la barrera epóxica puede ir precedido de imprímante si es necesario) en el primer 1,5m contado desde la base de por lo menos 70 micras y un recubrimiento en toda la longitud con pintura e imprímante de por lo menos 60 micras y con una adherencia mínima de 400 psi.
Adicionalmente y en forma separada del poste se deben fabricar los (pernos) de anclaje y plantillas para fundición de la cimentación como aparece en la figura 2. (Se debe suministrar sus correspondientes tuercas y arandelas de presión todos estos elementos deben ser galvanizados y cumplir este galvanizado la norma NTC 2076.
Una vez que se vaya a anclar el poste se debe realizar sobre una base nivelada de concreto de acuerdo con las condiciones mínimas dadas en la Tabla 2, en las cuales el constructor determinará las condiciones del suelo para determinar dimensiones finales adecuadas que garanticen el cumplimiento del Código de Sismo Resistencia NSR-010 aprobado por el Decreto 092 del 27 de enero de 2011 del Gobierno Nacional.
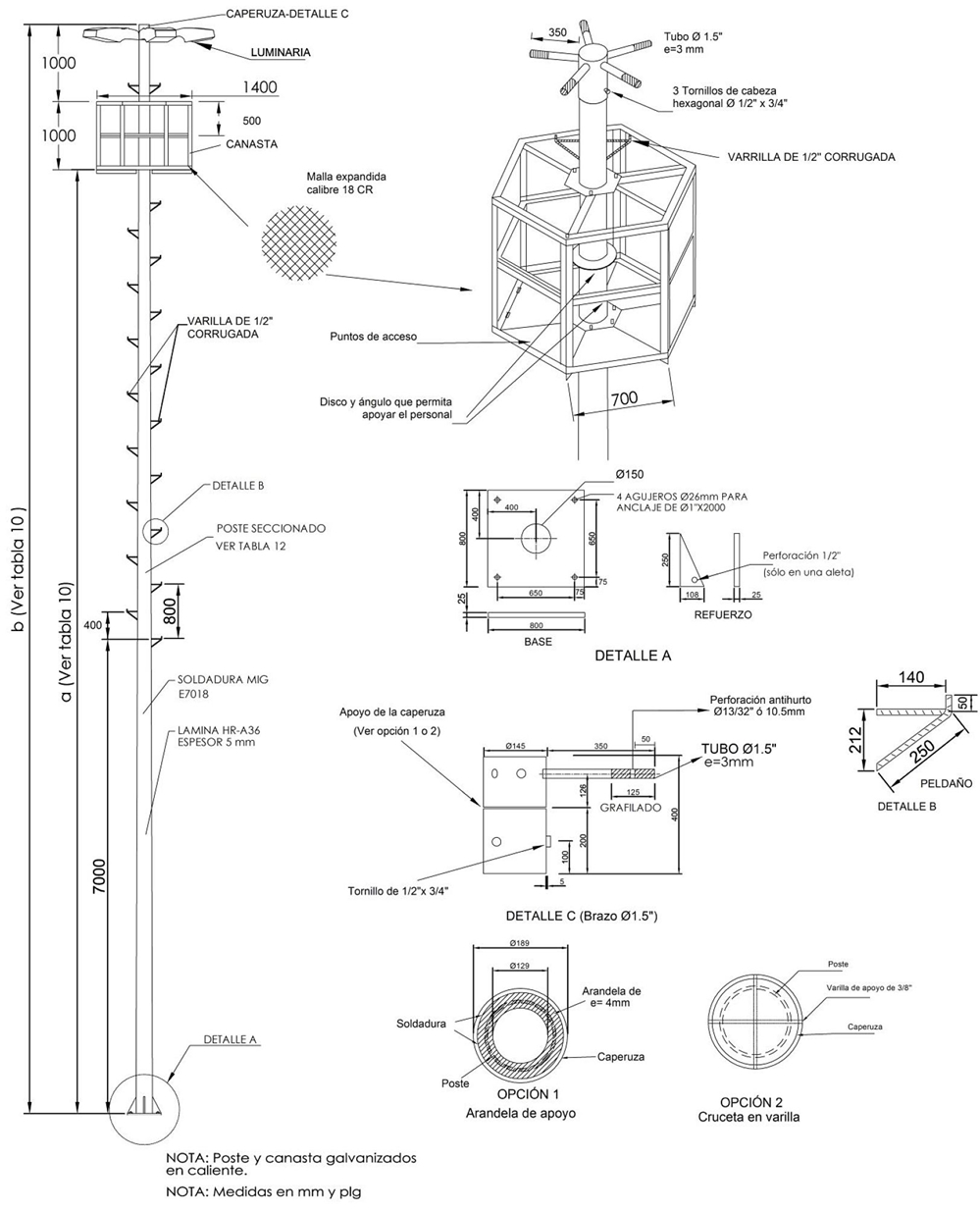
En la cima del poste se instala caperuza metálica con 4, 5 o 6 brazos para luminarias. En la figura 1 esta la opción con soportes o brazos de diámetro de 1.5” y 5 brazos y en la figura 1A se tiene la opción para soportes o brazos de 2” y 5 brazos. En la figura 1C y 1D esta el esquema para 5 y 6 brazos. En la figura 1 y No. 1B esta las caperuzas para brazos de 1.5” y 2” respectivamente.
Para el caso de instalación de proyectores se deberá tener en cuenta la caperuza y cruceta especificados en las figuras No .4 y 4A. La cruceta deberá alojar 3 proyectores y se especifican hasta dos crucetas dependiendo del proyecto.
En el evento que no sea para la instalación de los soportes anteriormente descritos, debe ser tapada la cima y se deben realizar orificios para el alambrado a la altura que se dispongan los brazos de soporte de las luminarias.
Las dimensiones de los postes y su base serán las que aparecen en las Tablas 1 y 2. Las perforaciones deben conservar su concentricidad y mantener la tolerancia adecuada con los tornillos (pernos) de anclaje.
En cuanto a las tolerancias, serán las indicadas en los planos y las siguientes:
- Longitud total del poste: Se acepta +100 mm –50 mm.
- Desviación longitudinal (deformación permanente al eje longitudinal) se acepta una tolerancia no mayor a +20 mm.
- Sección transversal: En la dimensión del diámetro externo se acepta +10 mm y –3 mm.
- En espesores - 0,2 mm.
TABLA 1. DIMENSIONES GENERALES DE LOS POSTES METÁLICOS
| Descripción | Longitud (mm) | Diámetro de la cima (mm) | Diámetro de la base (mm) | Espesor de lámina (mm) | Placa de la Base | |||
| Espesor (mm) “C” | Lado (mm) “B” | Distancia entre huecos (mm) “A” | Diámetro de los huecos (mm) | |||||
| Poste metálico 12 m. | 12000 | 140 | 390 | 6 | 25 | 800 | 650 | 26 |
| Poste metálico 14 m. | 14000 | 140 | 450 | 6 | 25 | 800 | 650 | 26 |
| Poste metálico 16 m. | 16000 | 140 | 450 | 6 | 25 | 800 | 650 | 26 |
| Poste metálico 18 m. | 18000 | 140 | 510 | 6 | 25 | 800 | 650 | 26 |
| Poste metálico 21 m. | 21000 | 140 | 560 | 6 | 25 | 800 | 650 | 26 |
TABLA 2. DIMENSIONES DE LOS PERNOS DE ANCLAJE Y LA BASE DE CONCRETO
| Descripción | PERNO DE ANCLAJE | BASE DE CONCRETO | ||||
| Diámetro del perno mm (pulg.) | Distancia entre pernos (mm) “A” | Longitud del perno (mm) “L1” | Longitud doblada (mm) | PROFUNDIDAD H1(mm) | LADO D (mm) | |
| Poste metálico 12 m. | 25(1”) | 650 | 2000 | 300 | 2000 | 1000 |
| Poste metálico 14 m. | 25(1”) | 650 | 2000 | 300 | 2000 | 1000 |
| Poste metálico 16 m. | 25(1”) | 650 | 2000 | 300 | 2000 | 1000 |
| Poste metálico 18 m. | 25(1”) | 650 | 2000 | 300 | 2000 | 1000 |
| Poste metálico 21 m. | 25(1”) | 650 | 2000 | 300 | 2000 | 1000 |
Los pernos y tuercas deben cumplir en cuanto las roscas la norma ANSI/ASME B1.1 –1982
Los postes deben traer un sistema de seguridad anticaidas (linea de vida). El proveedor en la oferta debe indicar el detalle del sistema de seguridad anticaidas propuesto, para su aprobación. Se debe adjuntar la línea de vida en la propuesta.
Para la conexión a tierra todos los postes deben incluir un tornillo galvanizado de ½” x 1” soldando la cabeza en la parte interna del poste a 50mm de la base y después hacer reparación de galvanizado con pintura a base de zinc y aplicar esmalte color plateado. Debe incluir una tuerca de ½” galvanizada en caliente para conexión del cable .
Buscando garantizar que la conexión a tierra sea continua, la varilla de puesta a tierra debe ir dentro de la base de anclaje del poste antes de fundir el concreto.
Luego de galvanizar en caliente cada una de las secciones o tramos del poste, deberán unirse a través de juntas a fricción o embonadas; el numero de secciones permitidas se encuentra en la tabla No. 12.
Se debe incluir marcación clara para su correcto acople. La zona de ensamble de postes embonados debe incluir una franja pintada de color negro, de 30mm de ancho que cubra el semiperímetro de la sección. También se podrá señalizar en bajo relieve siempre y cuando cumpla con el ancho indicado y que cubra el semiperimetro de la sección. Con esta marcación se busca que se garantice el correcto acople de las secciones cuando los postes sean embonados.
6.3 Características químicas
Las láminas para la fabricación de los postes metálicos para alumbrado público deben cumplir con los siguientes requisitos, de la tabla 3:TABLA 3. REQUISITOS QUÍMICOS DE LOS LÁMINAS Y PLATINAS
| ELEMENTO | SAE 1010 | SAE 1020 |
| % Carbono | 0,08 a 0,13 | 0,18 a 0,22 |
| % Fósforo, máx. | 0,05 | 0,05 |
| % Azufre, máx. | 0,05 | 0,05 |
| % Manganeso | 0,3 a 0,6 | 0,3 a 0,6 |
| % Silicio, máx. | 0,05 | 0,05 |
La capa de material de cinc utilizado será de calidad especial según tabla 4.
TABLA 4. COMPOSICIÓN QUÍMICA DEL CINC
| GRADO | Plomo máx. (%) | Hierro máx. (%) | Cadmio máx. (%) | Cinc, mín. (%) |
| Especial | 0,03 | 0,02 | 0,02 | 99,9 |
6.4 Características mecánicas
Las láminas y platinas utilizadas para la fabricación de los postes metálicos para alumbrado público deben tener los siguientes requisitos mínimos:- Resistencia a la tracción 34,7 Kg/mm 2 (340 MN/m 2 ).
- Límite mínimo de fluencia 18,4 Kg/mm 2 (180 MN/m 2 ).
- Elongación 30% en 50 mm (2pulg).
6.5 Características del recubrimiento
Los postes metálicos para alumbrado público serán totalmente galvanizados por inmersión en caliente y deberán cumplir con las especificaciones técnicas de la norma NTC 2076 y deben estar libres de burbujas, áreas sin revestimiento, depósitos de escoria, manchas negras y cualquier otro tipo de inclusiones o imperfecciones.Las láminas, platinas y elementos roscados se galvanizan con clase B-2 y los elementos roscados con clase C según norma NTC 2076 (tabla 5). Los pernos sólo se galvanizarán 15cm en la parte roscada.
TABLA 5. REQUISITOS DE GALVANIZADO
| ELEMENTO | PROMEDIO | MÍNIMO | ||
| gr/m 2 | µ mm | gr/m 2 | µ mm | |
| Platinas y láminas | 458 | 65,4 | 381 | 54,4 |
| Elementos Roscados | 397 | 56,6 | 336 | 48 |
6.6 Acabado
Las láminas deben ser de una sola pieza, libres de soldaduras intermedias, libres de deformaciones, fisura, aristas cortantes, y defectos de laminación. No se permiten dobleces ni rebajas en las zonas de corte, perforadas o punzadas. El galvanizado debe estar libre de burbujas, depósitos de escorias, manchas negras, excoriaciones y/u otro tipo de inclusiones.7. CRITERIOS DE ACEPTACIÓN O RECHAZO
Se considera que existe un lote cuando, los materiales de las láminas y platinas y los demás elementos pertenecen a un mismo lote de producción de materia prima y un mismo lote de producción, de no ser así deberá tomarse como lotes, por los diferentes aspectos de materia prima y de producción.7.1 Muestreo
A menos que se especifique otra condición, el muestreo se llevará a cabo tomando muestras para cada prueba de acuerdo a lo indicado en las tablas 6 y 7, según la norma NTC –ISO 2859-1.Para el desarrollo de las pruebas es indispensable que los instrumentos involucrados estén calibrados.
7.2 Aceptación o Rechazo
Si el número de elementos defectuosos es menor o igual al correspondiente número de defectuosos dado en la tercera columna de las tablas 6 y 7, se deberá considerar que el lote cumple con los requisitos relacionados en el numeral 6 de esta especificación; en caso contrario el lote se rechazará.TABLA 6. PLAN DE MUESTREO PARA INSPECCIÓN VISUAL Y DIMENSIONAL, NIVEL DE INSPECCIÓN II, NAC = 2,5%(NORMA NTC-ISO 2859-1 TABLA1 - TABLA 2A)
| TAMAÑO DEL LOTE | TAMAÑO DE LA MUESTRA | NÚMERO PERMITIDO DE DEFECTUOSOS | NÚMERO DEFECTUOSOS PARA RECHAZO |
| 2 a 8 | A = 2 | 0 | 1 |
| 9 a 15 | B = 3 | 0 | 1 |
| 16 a 25 | C = 5 | 0 | 1 |
| 26 a 50 | D = 8 | 1 | 2 |
| 51 a 90 | E = 13 | 1 | 2 |
| 91 a 150 | F = 20 | 1 | 2 |
| 151 a 280 | G = 32 | 2 | 3 |
| 281 a 500 | H = 50 | 3 | 4 |
| 501 a 1200 | J = 80 | 5 | 6 |
| 1201 a 3200 | K = 125 | 7 | 8 |
| 3201 a 10000 | L = 200 | 10 | 11 |
| TAMAÑO DEL LOTE | TAMAÑO DE LA MUESTRA | NÚMERO PERMITIDO DE DEFECTUOSOS | NÚMERO DEFECTUOSOS PARA RECHAZO |
| 2 a 8 | A = 2 | 0 | 1 |
| 9 a 15 | A = 2 | 0 | 1 |
| 16 a 25 | B = 3 | 0 | 1 |
| 26 a 50 | B = 3 | 0 | 1 |
| 51 a 90 | C = 5 | 1 | 2 |
| 91 a 150 | C = 5 | 1 | 2 |
| 151 a 280 | D = 8 | 1 | 2 |
| 281 a 500 | D = 8 | 1 | 2 |
| 501 a 1200 | E = 13 | 1 | 2 |
| 1201 a 3200 | E = 13 | 1 | 2 |
| 3201 a 10000 | F = 20 | 1 | 2 |
Para efectuar cualquier despacho, es requisito indispensable una autorización escrita de Enel Colombia S.A., la cual será expedida con base en los resultados de las pruebas realizadas en fábrica y/o la aprobación del protocolo de pruebas realizadas por el fabricante a los bienes solicitados.
8. PRUEBAS
Las pruebas y ensayos para la recepción de los materiales serán efectuados en presencia de los representantes de Enel Colombia S.A.; así mismo se realizarán en las instalaciones del proveedor quien deberá asumir su costo y proporcionar el material , equipos y personal necesario para tal fin.Si los resultados de las pruebas o los equipos de prueba no son confiables, éstas igualmente podrán ser realizadas o repetidas a costa del proveedor en laboratorios acreditados ante la ONAC (Organismo Nacional de Acreditación de Colombia), o un organismo internacional reconocido para la elaboración de pruebas.
Enel Colombia S.A. se reserva el derecho de realizar una inspección durante el proceso de fabricación; para tal efecto el proveedor suministrará los medios necesarios para facilitar la misma.
8.1 Prueba Dimensional
La verificación de las dimensiones se hará con los instrumentos de medida que den la aproximación requerida (cinta metálica con divisiones de 1 mm para longitudes y calibrador para los diámetros y espesores). El tamaño de la muestra deberá estar de acuerdo con la tabla 6.8.2 Análisis Químico
Se efectuará el análisis químico de acuerdo a lo requerido en el numeral 6.3 de la presente especificación y las normas NTC 23 y 180 (carbono), NTC 27 (azufre), NTC 181 (fósforo), NTC 24 o 25 (manganeso), NTC 26 o 28 (silicio) o en su defecto se aceptará un certificado de calidad de los materiales empleados, emitido por un laboratorio reconocido y aprobado por Enel Colombia S.A. El análisis químico puede ser realizado en un espectómetro calibrado con los patrones correspondientes.8.3 Prueba Mecánica
Los postes metálicos para alumbrado público deben ser sometidos a doblamiento según la figura 3 y los valores de flexión deberán ser inferiores a los valores de la tabla 8.TABLA 8. PRUEBA DE RESISTENCIA MECÁNICA
| Descripción | Carga de rotura [kgf] | DEFLEXIÓN MÁXIMA | |
| Carga aplicada [kgf] | Deflexión máxima a 200mm de la cima [mm] | ||
| Poste metálico 12 m. | 400 | 200 | 360 |
| Poste metálico 14 m. | 400 | 200 | 420 |
| Poste metálico 16 m. | 500 | 250 | 480 |
| Poste metálico 18 m. | 500 | 250 | 540 |
| Poste metálico 21 m. | 550 | 275 | 630 |
8.4 Prueba del Galvanizado
Esta prueba se hará de acuerdo con la norma NTC 2076.Para los elementos de fijación, tornillos, tuercas y arandelas se harán las pruebas de acuerdo a la NTC 3241 con los siguientes requisitos:
TABLA 9. PRUEBA DE GALVANIZADO
| ELEMENTO | NÚMERO DE INMERSIONES |
| Ángulos, platinas | 6 |
| Tornillos, parte no roscada | 6 |
| Parte roscada | 4 |
| Arandelas | 4 |
9. MARCACIÓN Y EMPAQUE
9.1 Marcación
La marcación del poste y su brazo, debe ir en una placa metálica remachada en cuatro partes a una altura de 2m de la base, en altorrelieve o bajorrelieve incluyendo la siguiente información:- Marca del fabricante
- Longitud del poste en metros
- Resistencia mecánica de rotura en kgf.
- Peso del poste en kg.
- Garantía
- Palabra BOG-CUN
- Mes y año de fabricación
- Numero de orden de compra o contrato
9.2 Empaque
Los bienes, objeto de la presente especificación técnica , deben ser empacados en forma individual, adecuadamente para resistir las condiciones de humedad e impacto que pueden presentarse durante el transporte desde fábrica hasta las bodegas de la compañía y durante su almacenamiento. Los tornillos irán engrasados, con sus tuercas y arandelas instaladas.Para ello los postes metálicos deben contar con un recubrimiento total elaborado de cartón resistente y plástico.
En caso de que los postes no cuenten con la protección indicada, o si ésta no cumple con los requerimientos para la conservación de su estado original, Enel Colombia S.A. rechazará los materiales.
Es obligación del CONTRATISTA , una vez aceptado el material , solicitar al fabricante las recomendaciones especiales a tener en cuenta para la manipulación, transporte e instalación de los postes metálicos, así como de sus elementos y accesorios (luminarias, bases, brazos, etc.). Estas recomendaciones deben ser acatadas y adoptadas por el CONTRATISTA , durante el transporte, almacenamiento, manipulación, e instalación del poste.
10. REQUISITOS DE LAS OFERTAS
El oferente obligatoriamente deberá incluir con su propuesta, la siguiente información:- Relación de los bienes cotizados.
- Información del oferente.
- Planilla de características técnicas garantizadas del poste y de los soportes, la cual deberá ser diligenciada completamente, firmada y sellada por el oferente. Además se debe entregar este cuadro en formato Excel.
- Catálogos originales completos y actualizados del fabricante, que correspondan a los bienes cotizados en la planilla de características técnicas garantizadas.
- Protocolos de pruebas de acuerdo con las normas indicadas en el numeral 5 de la presente especificación. En tales protocolos se deberán anotar las fechas de fabricación y pruebas del equipo , para permitir la verificación de las características técnicas garantizadas.
- Certificaciones del sistema de calidad y de producto con norma técnica y RETILAP.
- Información adicional que considere aporta explicación a su diseño (dibujos, detalles, características de operación, dimensiones y pesos de los materiales ofertados).
Enel Colombia S.A. podrá descartar ofertas que no cumplan con las anteriores disposiciones, sin expresión de causa ni obligación de compensación.
11. GARANTÍA DE FÁBRICA
Enel Colombia S.A E.S.P requiere como mínimo, un período de garantía de fábrica de cuarenta y ocho (48) meses, a partir de la entrega de los postes metálicos.12. INSPECCIÓN EN FÁBRICA
El suministrador enviará con no menos de quince (15) días calendario de anticipación, a la fecha programada para la realización de las pruebas en fábrica, el formato de protocolos de pruebas y copia de las normas en Inglés o Castellano utilizadas para tal fin. Enel Colombia informará por escrito su conformidad con las pruebas requeridas.El Ingeniero responsable de Enel Colombia podrá inspeccionar en las instalaciones del proveedor o fabricante y de sus Subcontratistas el proceso de fabricación y pruebas, y solicitar la información y ensayos que a su juicio resulten necesarias para verificar el cumplimiento de los requisitos estipulados en este documento. El proveedor debe brindar plena colaboración al responsable en el cumplimiento de sus funciones.
El valor de las pruebas y ensayos debe incluirse en los precios cotizados en la propuesta. Enel Colombia se reserva el derecho de descartar las propuestas que no ofrezcan pruebas, o si las ofrecidas son consideradas insuficientes para garantizar la calidad de los bienes.
13. SISTEMA DE CALIDAD
El oferente adjuntara con su propuesta, para el fabricante de los bienes cotizados, el certificado de conformidad con norma y/o el perfil de calidad de acuerdo con cualquier norma NTC-ISO serie 9000 o norma equivalente en el país de origen, expedida por una entidad idónea del mismo país de origen.14. CERTIFICADOS DE CONFORMIDAD
El oferente adjuntará con su propuesta el certificado de conformidad de producto con norma técnica con RETILAP, expedido por una entidad autorizada por la ONAC.No se admiten certificados de productos que presente exclusiones a la presente especificación técnica .
15. FIGURAS
FIGURA 1. Características generales poste con Caperuza con brazos de 1.5”.
FIGURA 1A. Características generales poste con cruceta metálica
| b= H POSTE (m) | a (m) |
| 12 | 10 |
| 14 | 12 |
| 16 | 14 |
| 18 | 16 |
| 21 | 19 |
| b= H POSTE (m) | a (m) |
| 12 | 9,6 |
| 14 | 11,6 |
| 16 | 13,6 |
| 18 | 15,6 |
| 21 | 18,6 |
| H POSTE (m) | NÚMERO SECCIONES EMBONADAS |
| 12 | 2 o 3 |
| 14 | 3 o 4 |
| 16 | 3 o 4 |
| 18 | 3 o 4 |
| 21 | >= 3 |
FIGURA 1.B. Detalle caperuza con 5 brazos de 2”
FIGURA 1.C Esquema 4 brazos para 1,5” o 2’’. (*)
FIGURA 1.D Esquema 6 brazos para 1,5” o 2’’. (*)
(*) El detalle de las caperuzas se indica en las figuras 1 y 1B.
FIGURA 2. Características generales del anclaje.
| ALT LIBRE(H) m | LONG CIMENT. (H1) mm | D (mm) | A (mm) | B (mm) | PERNO DIAM. mm(pulg) | LONG PERNO (mm) L1 | DIAMETRO DEL ORIFICIO (mm) |
| 12 | 2000 | 850 | 650 | 800 | 25 (1") | 2000 | 26 |
| 14 | 2000 | 850 | 650 | 800 | 25 (1") | 2000 | 26 |
| 16 | 2000 | 850 | 650 | 800 | 25 (1") | 2000 | 26 |
| 18 | 2000 | 850 | 650 | 800 | 25 (1") | 2000 | 26 |
| 21 | 2000 | 850 | 650 | 800 | 25 (1") | 2000 | 26 |
FIGURA 2.A. Detalle de puesta a tierra.
FIGURA 3. Prueba de rotura y elongación
FIGURA 4. Caperuza y soporte a poste (Vista isométrica)
FIGURA 4A. Detalles y cortes de caperuza y soporte a poste
FIGURA 4B. Detalle dimensiones cruceta para instalación de proyectores
16. ANEXOS
ANEXO 1: INFORMACIÓN GENERAL DEL PROPONENTE
| DATOS DEL PROPONENTE | |
| NOMBRE DEL PROPONENTE | |
| DIRECCIÓN | |
| CIUDAD | |
| PAIS | |
| TELÉFONO | |
| FAX | |
| PERSONA DE CONTACTO | |
| La persona de contacto, es la responsable de la oferta técnica a la cual se acudirá en caso de consulta o aclaración. | |
| CARACTERÍSTICAS TÉCNICAS POSTES METÁLICOS PARA AP | |||||||
| ITEM | CARACTERÍSTICA | OFERTADO | |||||
| 1 | Fabricante | ||||||
| 2 | Normas aplicadas | Fabricación | |||||
| Pruebas | |||||||
| 3 | Material de fabricación (Describir) | Poste | |||||
| Soporte | |||||||
| Anclaje | |||||||
| 4 | Adjunta planos dimensionados (Si/No) | ||||||
| 5 | Forma de construcción (Si/No) | Cónico | |||||
| Tubular | |||||||
| Otra (Aclarar) | |||||||
| 6 | Tipo de construcción | Embonado | |||||
| Bridas | |||||||
| Otro (Aclarar) | |||||||
| 7 | Tramos (Después del galvanizado en caliente) | Numero | |||||
| Longitud de los tramos | |||||||
| Protección luego de soldado | |||||||
| Sistema de acoplamiento | |||||||
| (Aclarar) | |||||||
| 8 | Poste | Longitud | |||||
| Espesor [mm] | |||||||
| Diámetro de la base [mm] | |||||||
| Diámetro de la cima [mm] | |||||||
| Peso [kg] | |||||||
| Tornillo galvanizado para puesta a tierra de ½” x 1” soldado a 50mm de la base (Si/No) | |||||||
| Sistema de seguridad anticaidas (linea de vida) (Si/No y detalle constructivo) | |||||||
| 9 | Flanche (Base) | Espesor [pulg ó mm] | |||||
| Ancho [mm] | |||||||
| Diámetro perforación central [mm] | |||||||
| Diámetro agujeros [mm] | |||||||
| Distancia entre agujeros [mm] | |||||||
| 10 | Anclaje | Zapata de anclaje | Se cotiza (Si/No) | ||||
| Tipo de concreto | |||||||
| Profundidad | |||||||
| Lado | |||||||
| Canasta | Longitud | ||||||
| Ancho | |||||||
| Fleje | Diámetro | ||||||
| Tipo de varilla | |||||||
| Distancia entre flejes | |||||||
| 11 | Refuerzo triangular | Lado horizontal | |||||
| Lado vertical | |||||||
| Espesor | |||||||
| 12 |
Pernos de anclaje
|
Se cotiza (Si/No) | |||||
| Diámetro [pulg ó mm] | |||||||
| Distancia entre pernos [mm] | |||||||
| Longitud roscada [Lr] | |||||||
| Longitud galvanizada [Lg] | |||||||
| Arandela de presión helicoidal [Ah] | |||||||
| Arandela plana [Ap] | |||||||
| Tuerca [T] | |||||||
| Longitud [L1] | |||||||
| Longitud [L2] | |||||||
| 13 | Prueba mecánica | Carga rotura [kg] (permitida) | |||||
| Carga aplicada [kg] | |||||||
| Deflexión máxima [mm] (a 200 mm de cima) | |||||||
| Resistencia a la tensión Kg/cm 2 | |||||||
| 14 | Galvanización | Norma | |||||
| Clase | |||||||
| Espesor Revestimiento | |||||||
| 15 | Tipo de Soldadura | Del poste | |||||
| Accesorios | |||||||
| Anclaje | |||||||
| 16 | Esquema de pintura | Color (referencia RAL) | |||||
| Posee recubrimiento (1) (Si/No) | |||||||
| Recubrimiento con pintura e imprimante (en micras) | |||||||
| Adherencia [PSI] | |||||||
| 17 | Protección | Cartón | Descripción | ||||
| Incluido (Si/No) | |||||||
| Plástico | Descripción | ||||||
| Calibre | |||||||
| Incluido (Si/No) | |||||||
| 18 | Marcación (Contestar Si/No según corresponda) | Tipo (Aclarar) | |||||
| Con marca de fabrica | |||||||
| Con palabra BOG-CUN | |||||||
| Con orden de compra | |||||||
| Co mes y año de fabricación | |||||||
| Con longitud en m | |||||||
| Con peso (en Kg) | |||||||
| Con resistencia mecánica de ruptura (en Kgf) | |||||||
| Con garantía | |||||||
| Otra (Aclarar) | |||||||
| 19 | Pruebas | Están incluidas dentro del precio del material (Si/No) | |||||
| A realizar en fabrica (Describir) | |||||||
| 20 | Garantía (Meses) | ||||||
| 21 | Desviaciones técnicas | ||||||
| RESULTADO DE EVALUACIÓN TÉCNICA | |||||||
| 22 | Certificación del sistema de calidad (Normas ISO) | Entidad acreditadora | |||||
| Número de acreditación | |||||||
| Fecha de aprobación (Día/Mes/Año) | |||||||
| Vigencia | |||||||
| Adjunta el certificado (Si/No) | |||||||
| 23 | Certificación de producto con norma técnica | Entidad acreditadora | |||||
| Número de acreditación | |||||||
| Fecha de aprobación (Día/Mes/Año) | |||||||
| Vigencia | |||||||
| Norma técnica con la cual se certifica | |||||||
| Adjunta el certificado (Si/No) | |||||||
| 24 | Certificación de producto con RETILAP | Entidad acreditadora | |||||
| Número de acreditación | |||||||
| Fecha de aprobación (Día/Mes/Año) | |||||||
| Vigencia | |||||||
| Adjunta el certificado (Si/No) | |||||||
| RESULTADO DE EVALUACIÓN REGULATORIA | |||||||
| 25 | Observaciones | ||||||
ANEXO 3: PLANILLA DE CARACTERÍSTICAS TÉCNICAS GARANTIZADAS SOPORTES
| CARACTERÍSTICAS TÉCNICAS SOPORTE METÁLICO PARA LUMINARIA | ||||
| ÍTEM | CARACTERÍSTICA | OFERTADO | ||
| 1 | Normas aplicadas | Fabricación | ||
| Pruebas | ||||
| 2 | Material de fabricación (Describir) | |||
| 3 | Adjunta planos dimensionados (Si/No) | |||
| 4 | Tipo (numero de brazos y ubicación) | |||
| 5 | Dimensiones del soporte | Longitud del soporte | ||
| Diámetro | ||||
| Espesor | ||||
| Diámetro de la perforación antihurto | ||||
|---|---|---|---|---|
| Longitud del grafilado | ||||
| 6 | Caperuza | Dimensiones [mm] | Posee tapa removible (Si/No) | |
| Diámetro | ||||
| Tolerancia | ||||
| Espesor de la lamina | ||||
| Longitud | ||||
| Tornillos | Tipo | |||
| Diámetro | ||||
| Longitud | ||||
| Cantidad | ||||
| Apoyo de la caperuza (Describir) | ||||
| 7 | Galvanización | Norma | ||
| Clase | ||||
| Espesor revestimiento | ||||
| 8 | Esquema de pintura | Color (referencia RAL) | ||
| Recubrimiento con pintura e imprimante (en micras) | ||||
| Adherencia [PSI] | ||||
| 9 | Protección | Cartón | Descripción | |
| Incluido (Si/No) | ||||
| Plástico | Descripción | |||
| Calibre | ||||
| Incluido (Si/No) | ||||
| 10 | Pruebas | Están incluidas dentro del precio del material (Si/No) | ||
| A realizar en fabrica (Describir) | ||||
| 11 | Garantía (Meses) | |||
| 12 | Desviaciones técnicas | |||
| RESULTADO DE EVALUACIÓN TÉCNICA | ||||
| 13 | Observaciones | |||
ANEXO 3.1 : SOPORTE METALICO PARA PROYECTORES
| CARACTERÍSTICAS TÉCNICAS SOPORTE METÁLICO PARA LUMINARIA | ||||||
| ÍTEM | CARACTERÍSTICA | OFERTADO | ||||
| 1 | Normas aplicadas | Fabricación | ||||
| Pruebas | ||||||
| 2 | Material de fabricación (Describir) | |||||
| 3 | Adjunta planos dimensionados (Si/No) | |||||
| 4 | Tipo (numero de brazos y ubicación) | |||||
| 5 | Dimensiones del soporte | Longitud de la cruceta | ||||
| Dimension de la cruceta | ||||||
| Espesor | ||||||
| Diámetro de la perforación | ||||||
| Longitud del grafilado | ||||||
| Acople brazo cruceta acorde Fig.4 y Fig.4.A | ||||||
| 6 | Caperuza | Dimensiones [mm] | Posee tapa removible (Si/No) | |||
| Diámetro | ||||||
| Tolerancia | ||||||
| Espesor de la lamina | ||||||
| Longitud | ||||||
| Tornillos | Tipo | |||||
| Diámetro | ||||||
| Longitud | ||||||
| Cantidad | ||||||
| Apoyo de la caperuza (Describir) | ||||||
| 7 | Galvanización. | Norma | ||||
| Clase | ||||||
| Espesor revestimiento | ||||||
| 8 | Esquema de pintura | Color (referencia RAL) | ||||
| Recubrimiento con pintura e imprimante (en micras) | ||||||
| Adherencia [PSI] | ||||||
| 9 | Protección | Cartón | Descripción | |||
| Incluido (Si/No) | ||||||
| Plástico | Descripción | |||||
| Calibre | ||||||
| Incluido (Si/No) | ||||||
| 10 | Pruebas | Están incluidas dentro del precio del material (Si/No) | ||||
| A realizar en fabrica (Describir) | ||||||
| 11 | Garantía (Meses) | |||||
| 12 | Desviaciones técnicas | |||||
| RESULTADO DE EVALUACIÓN TÉCNICA | ||||||
| 13 | Observaciones | |||||
ANEXO 4: PROCEDIMIENTO PARA EL MANEJO DE POSTES METÁLICOS DE ALUMBRADO PÚBLICO
A. OBJETIVO
Establecer los procedimientos y las condiciones que deben satisfacer los postes metálicos (incluyendo su soporte o brazo para luminaria ), conservando y garantizando su estado original desde su entrega en fábrica hasta su puesta en servicio.
Estos elementos deberán conservarse durante las actividades de mantenimiento y operación que adelante Enel Colombia S.A. en todas sus áreas de influencia o de concesión.
B. ALCANCE
El procedimiento para el Manejo de la postería metálica debe ser del total conocimiento de los ingenieros que hacen parte de la División Alumbrado Público, los gestores de contratos con entidades distritales que construyen el alumbrado público y del contratista de alumbrado público de Enel Colombia S.A. Su divulgación e implementación son de obligatorio cumplimiento.
El procedimiento involucra la manipulación general de los postes metálicos a utilizar, luego de que éstos son inspeccionados y aprobados por parte de la División de Ingeniería y Obras de Enel Colombia S.A. directamente en las fábricas. Incluye el transporte inicial del material desde la fábrica, su almacenamiento, el transporte desde las bodegas hacia terreno, la hincada y plomada en terreno, y la instalación de elementos y accesorios en el poste.
C. RECEPCIÓN EN FÁBRICA
La recepción de los postes metálicos por parte del CONTRATISTA a los fabricantes debe llevarse a cabo solamente si los postes cuentan con una protección especial para dicho material . Esta protección consiste de un recubrimiento total para el poste, elaborado de cartón resistente y plástico. El poste debe estar completamente protegido, incluyendo sus extremos y contornos.
En caso de que los postes no cuenten con la protección indicada, o si ésta no cumple con los requerimientos para la conservación del estado original del poste, el CONTRATISTA debe abstenerse de recibir el material , y comunicar inmediatamente a Enel Colombia S.A. ESP.
Es obligación del CONTRATISTA , una vez aceptado el material , solicitar al fabricante las recomendaciones especiales a tener en cuenta para la manipulación, transporte e instalación de los postes metálicos, así como de sus elementos y accesorios (luminarias, bases, brazos, etc.). Estas recomendaciones deben acatadas y adoptadas por el CONTRATISTA , durante el transporte, almacenamiento, manipulación, e instalación del poste.
D. TRANSPORTE DE LOS ELEMENTOS HACIA LAS BODEGAS
Una vez aceptados los postes, teniendo en cuenta su adecuada protección, el CONTRATISTA debe transportarlos con absoluto cuidado hacia sus almacenes o bodegas para el correspondiente almacenamiento del material .
Los postes metálicos deben ser cargados en vehículos especiales (grúas, camiones, remolques, etc.) que garanticen un adecuado transporte, sin que ellos sufran ningún tipo de daño tanto en su contorno (abolladuras, rayas, hundimientos, etc.) como en su recubrimiento; para ello los postes se deben agrupar paralelamente (uno al costado de otro), sin ser golpeados contra la superficie o unos con otros, y sin que sufran presiones excesivas.
E. ALMACENAMIENTO
Una vez transportados hacia sus bodegas, el CONTRATISTA debe descargar los postes metálicos y depositarlos adecuadamente en sus respectivos lugares de almacenamiento.
El CONTRATISTA debe observar el mismo cuidado para bajar los postes del vehículo, que el necesario para subirlos. Se debe manipular la grúa sin que en ningún momento se dañe la protección de cartón o de plástico. Así mismo, los postes deben ser depositados suavemente en el piso o en los apoyos, teniendo en cuenta que no deben ser golpeados contra la superficie o unos con otros; por consiguiente, durante el descargue del material no se debe presentar un daño físico en el acabado ni en la línea del poste.
El CONTRATISTA será responsable del cuidado de los postes metálicos en sus bodegas de almacenamiento, teniendo en cuenta que durante su permanencia se debe cumplir con:
- No colocar objetos de ningún tipo sobre o contra los postes.
- No ocasionarle ruptura a las protecciones especiales del poste (cartón y plástico).
F. TRANSPORTE HACIA EL LUGAR DE INSTALACIÓN
Para el transporte de los postes hacia el lugar de instalación, se debe considerar y aplicar el procedimiento descrito en el apartado D del presente documento, teniendo en cuenta cada una de las recomendaciones e instrucciones definidas por el fabricante.
Se debe observar que la protección no se vea afectada y que se conserve en su totalidad. Por lo tanto, durante el transporte de los postes hacia el lugar de instalación éstos no deben sufrir daños físicos o estructurales.
En caso de que algún poste no conserve su protección contra daños, deberá corregirse y arreglarse antes de su despacho.
Para los postes que hayan sufrido daños estructurales o en su acabado durante el bodegaje, el CONTRATISTA no debe transportarlos hacia el lugar de instalación.
G. INSTALACIÓN
La instalación del poste metálico consiste básicamente en el descargue del poste desde el vehículo especial de transporte para su posterior alambrado, hincada, plomada, fijación del brazo y luminaria .
El CONTRATISTA debe manipular con extremo cuidado el poste al descargarlo del vehículo. Se debe seguir el mismo procedimiento descrito en el apartado D del presente documento en lo concerniente a la operación de la grúa y al descenso del material .
Para los procesos de alambrado, hincada y posterior plomada, el CONTRATISTA debe retirar la protección de cartón y plástico solamente en el extremo inferior del poste metálico, en una longitud que permita la correcta instalación. En ningún momento se debe retirar la protección a lo largo de toda la extensión del poste.
De esta forma el poste instalado conserva la totalidad de la protección y al seguir este procedimiento, se garantiza que en esta instancia el poste no tenga ningún tipo de peladura, raya, hundimiento o abolladura.
H. INSTALACIÓN DE LUMINARIAS Y ACCESORIOS
La instalación del brazo, la luminaria y los demás accesorios de los postes metálicos debe hacerse con canasta ó escalera. No se deben utilizar pretales para subir al poste . Durante la instalación de estos elementos no se debe retirar la protección de cartón y plástico, y ésta debe haberse conservado en muy buena forma.
Durante el proceso de instalación de elementos y accesorios en el poste metálico para alumbrado público, el CONTRATISTA debe tener en cuenta las recomendaciones impartidas por el fabricante respectivo, las cuales debió solicitar al momento de entrega de los materiales en la fábrica, como se especifica en el apartado C .
La protección de cartón y plástico que se suministra con el poste debe retirarse únicamente cuando se concluye la instalación de la luminaria correspondiente. En éste momento el poste debe presentar un estado impecable tanto en su aspecto físico y estructural, como en su apariencia estética.
En caso de presentarse daños en la pintura del poste ocasionados por errores involuntarios u omisiones del presente procedimiento, el CONTRATISTA debe realizar los retoques de pintura al poste de acuerdo con procedimiento descrito en el apartado “ Mantenimiento de postes metálicos” del presente documento
I. MANTENIMIENTO DE POSTES METÁLICOS
Un poste para alumbrado público y sus accesorios requiere fundamentalmente de limpieza de la suciedad, por la acumulación de sedimentos y partículas del ambiente (polución).
Esta condición obliga a que se hagan periódicamente programas de mantenimiento , en periodos de tiempo razonables de limpieza, según la zona en la cual se instalen los postes metálicos.
| PROGRAMA DE MANTENIMIENTO DE POSTES METÁLICOS | |
| ZONA DE POLUCIÓN | PERIODO DE LIMPIEZA (t en años) |
| Baja | t >= 2 |
| Media | 1 <= t <= 2 |
| Alta | T <= 1 |
Las cuadrillas de mantenimiento deben disponer de los siguientes elementos:
- Paño o estopa.
- Detergentes y esponjas necesarios para la limpieza.
- Agua.
- Lija de agua.
- Pintura rica en zinc.
- Imprimante (anticorrosivo).
- Pintura con curado poliamida para metales.
- Pintura de acabado (RAL 7004).
- Herramientas para el ajuste de los elementos pernados (llaves de boca fija para tuercas y tornillos).
- Elcometro
MANTENIMIENTO DE LA PINTURA
Si la superficie del poste metálico se encuentra en buen estado, pero aun así se requiere pintar, se debe limpiar ó lijar la superficie con el propósito de garantizar máxima adherencia en la nueva aplicación del imprimante (anticorrosivo), la pintura poliamida en caso de ser necesario y la pintura de acabado.
Si la pintura se encuentra en malas condiciones, debe removerse totalmente realizando una limpieza manual y una limpieza mecánica, seguida por un procedimiento de reparación recomendado por la ficha técnica del proveedor de pintura.
Luego de la aplicación de la pintura se deberá garantizar un acabado liso y uniforme teniendo que:
- La barrera epóxica con curado poliamida para metales (que puede ir precedida de imprímante si es necesario) deberá aplicarse en el primer 1,5 metro contado desde la base; su recubrimiento deberá ser de por lo menos 70 micras.
- Recubrimiento en la superficie del poste con pintura de acabado e imprímante de por lo menos 60 micras.
- Una adherencia mínima de 400 psi.
DIAGRAMA DE FLUJO MANEJO DE POSTERÍA METÁLICA PARA ALUMBRADO PÚBLICO
DATOS ADICIONALES
Revisión #
8
Fecha de entrada en vigencia
Actividad de los usuarios
Para hacer comentarios debe iniciar sesión o registrarse aquí