ET207 Poste metálico de 6 m x 4” para luminaria peatonal
- Contenido
1. OBJETO
Esta especificación técnica establece las características y requisitos técnicos que deben cumplir y los ensayos a los cuales deben ser sometidas los postes metálicos de 6 m x 4” para luminarias peatonales en instalación del sistema de alumbrado público de Enel Colombia S.A. ESP.
2. ALCANCE
Esta especificación técnica se aplicará en todos los postes metálicos de 6 m x 4” para luminarias peatonales de alumbrado público que adquiera Enel Colombia S.A. ESP.
3. SERVICIO
Los postes son elementos mecánicos que trabajan a flexión y cuya única función es sostener la luminaria y su brazo, estos elementos serán empleados a la intemperie, siendo ésta generalmente en climas que van desde el cálido al frío y desde el húmedo hasta el cálido y sometidos a la contaminación atmosférica de la ciudad.
Los postes metálicos de 6 m x 4” para luminarias peatonales de que trata esta especificación serán instalados en los sistemas de alumbrado público a 208V, de los circuitos de distribución de Enel Colombia S.A. ESP.
Los postes metálicos de 6 m x 4” para luminarias peatonales deben ser inmunes a la acción de la humedad, el humo, el polvo, el ozono, etc. y a los cambios rápidos de temperatura, en condiciones de trabajo.
4. SISTEMA DE UNIDADES
Todos los documentos técnicos, deben expresar las cantidades numéricas en unidades del sistema Internacional (S.I.). Si se usan catálogos, folletos o planos, en sistemas diferentes de unidades, deben hacerse las conversiones respectivas.
5. NORMAS DE FABRICACIÓN Y PRUEBAS
Para la fabricación de todos los tipos de postes metálicos, se debe tener en cuenta lo establecido en las normas relacionadas a continuación:
| NORMA | DESCRIPCIÓN | |
| NTC | 1 | Ensayo de doblamiento para productos metálicos |
| NTC | 2 | Ensayos de tracción para productos de acero. |
| NTC | 23 | Determinación gravimétrica de carbono por combustión directa en aceros al carbono. |
| NTC | 24 | Determinación del manganeso en aceros al carbono. |
| NTC | 25 | Determinación del manganeso en aceros al carbono. Método del Bismutato. |
| NTC | 26 | Determinación del silicio en aceros al carbón. |
| NTC | 27 | Determinación de azufre en aceros al carbono. Método de evolución. |
| NTC | 28 | Determinación del silicio en aceros al carbono. Método del ácido sulfúrico. |
| NTC | 180 | Método gasométrico para determinación de carbono por combustión directa en hierros y aceros al Carbono. |
| NTC | 181 | Aceros al carbono y fundiciones de hierro, método alcalimétrico para determinación de fósforo. |
| NTC | 422 | Perfiles livianos y barras de acero al carbono acabadas en frío. |
| NTC | 858-3 | Discontinuidades superficiales en pernos, tornillos y espárragos para aplicaciones generales. |
| NTC | 1097 | Control estadístico de calidad , inspección por atributo, planeo de muestra única, doble y múltiple. |
| NTC | 1645 | Tuercas cuadradas y hexagonales. Serie inglesa. |
| NTC | 1920 | Metalurgia. Acero estructural. |
| NTC | 2076 | Electricidad. Galvanizado por inmersión en caliente para herrajes y perfiles estructurales de hierro y Acero. |
| NTC | 3320 | Siderurgia. Recubrimiento de zinc (galvanizado) por inmersión en caliente en productos de hierro y Acero. |
| NTC | 2120 | Electrotecnia . Guía para inspección de soldadura por medio de ensayos no destructivos. |
| NTC | 2618 | Herrajes y accesorios para líneas y redes de distribución de energía eléctrica. Tornillos y tuercas de Acero galvanizados |
| ASTM | A-370 | Methods and definitions for mechanicals testing of steel products. |
| AWS | D.1.1 | Structural welding code. |
| AWS | D 10.9 | Standard for qualification of welding procedures and welders for piping and tubing |
| ASTM | A53 | Standard Specification for Pipe, Steel, Black and Hot-Dipped, Zinc-Coated, Welded and Seamless. |
| ASTM | A385 | Standard practice for providing high quality zinc coatings (hot dip) |
| ASTM | A500 | Standard Specification for Cold-Formed Welded and Seamless Carbon Steel Structural Tubing in Rounds and Shapes. |
| ASTM | A563 | Standard Specification for carbon and alloy steel nuts. |
| ANSI/ASME | B1.1 –1982 | 1982 Unified Inch Screw Threads |
| SAE | 1010 / 1020 | |
De acuerdo con los diseños de los fabricantes pueden emplearse otras Normas internacionales reconocidas, equivalentes o superiores a las aquí señaladas, siempre y cuando se ajusten a lo solicitado en la presente especificación. En este caso se deberán enviar con la propuesta copia en español o inglés de las normas utilizadas. En caso de discrepancia entre las Normas y esta especificación, prevalecerá lo aquí establecido.
6. REQUISITOS
Son elementos de características geométricas y mecánicas tales que les permiten adaptarse a las limitaciones impuestas por otros elementos.
6.1 Geométricos
Estos postes serán fabricados de 6 m de longitud por 4” de diámetro, con un espesor mínimo de 4mm y tendrán la forma y dimensiones que se muestran en las figuras 1, 2, 3 y 4.
Deben tener en su extremo inferior una base o placa rectangular debidamente soldada y adicionalmente la unión del poste con la base metálica debe ser reforzada con una platina de 9,5 mm (3/8”) de espesor, según se muestra en la figura 4. Referente a las uniones de la base se debe realizar con uno o dos pases de soldadura E-6010 con suficiente amperaje para obtener máxima penetración entre las piezas y con pases sucesivos de E-7018 hasta alcanzar una altura mínima del refuerzo de ¼” todas las soldaduras deben ser libres de defectos tales como escorias, inclusiones, poros, etc., y de la misma forma deben cumplir el código ASME capitulo IX.
El espesor de recubrimiento (galvanizado) debe ser como mínimo de 75 micras con acabado liso y uniforme; y con una barrera epóxica con curado poliamida para metales (la barrera epóxica puede ir precedido de imprímante si es necesario) en el primer 1,5 metro contado desde la base de por lo menos 70 micras y un recubrimiento en toda la longitud con pintura e imprímante de por lo menos 60 micras y con una adherencia mínima de 400 psi.
Adicionalmente y en forma separada del poste se debe tener como método de fijación pernos de ½”x550mm como aparece en la Figura 4.
Una vez que se vaya a anclar el poste se debe realizar sobre una base nivelada de concreto de acuerdo con las condiciones mínimas dadas en la figura 4, en las cuales el constructor determinará las condiciones del suelo para determinar dimensiones finales adecuadas que garanticen el cumplimiento del Código de Sismo Resistencia (CSR-98) aprobado por el decreto 33 del 9 de diciembre de 1998.
En la cima del poste se instalarán soportes metálicos, sencillos o dobles para luminarias ver figuras 2 y 3.
Los postes deben ir tapados en la parte superior con una lamina calibre 12 (o de mayor espesor) soldada en todo su contorno y se deben realizar orificios para el alambrado a la altura que se dispongan los brazos de soporte de las luminarias.
En cuanto a las tolerancias, deben manejarse las indicadas en los planos y las que se indican a continuación:
- Longitud total del poste: Se acepta +20mm –10mm.
- Desviación longitudinal (deformación permanente al eje longitudinal) se acepta una tolerancia no mayor a +10 mm.
- Sección transversal: En la dimensión del diámetro externo se acepta +5mm y –3mm.
- En espesores - 0,2mm.
Los tornillos, pernos y tuercas deben cumplir en cuanto las roscas la norma ANSI/ASME B1.1 –1982. Los tornillos de ½” x 3” serán hexagonales, de acero galvanizado en caliente SAE grado 5, rosca ordinaria y que case con la tuerca de ½” soldada en el soporte del brazo de la luminaria .
Los brazos serán fabricados con tubo de acero de diámetro nominal de 1 ½” con pared de por lo menos 3mm.
El soporte del brazo de la luminaria se fabricara en platina de acero de por lo menos 3/16”.
El poste tendrá una perforación de ½” (13mm), para el alambrado interior del mismo. Se localiza en una distancia de 665mm de la cima y se instalará un prensaestopa, para proteger los conductores y evitar el ingreso de agua. En el poste con una luminaria , la perforación estará debajo del soporte de la luminaria . Para el poste con doble luminaria la perforación estará en la mitad de la distancia entre los soportes.
La perforación de ½” (13mm), será roscada apta para la instalación del prensaestopa.
Para la conexión a tierra todos los postes deben incluir un tornillo galvanizado de ½” x 1” soldando la cabeza en la parte interna del poste a 50 mm de la base y después hacer reparación de galvanizado con pintura a base de zinc y aplicar esmalte color plateado. Debe incluir una tuerca de ½” galvanizada en caliente para conexión del cable .
Buscando garantizar que la conexión a tierra sea continua, la varilla de puesta a tierra debe ir dentro de la base de anclaje del poste antes de fundir el concreto.
6.2 Químicos
Los postes metálicos para alumbrado público deben cumplir con los siguientes requisitos, de la tabla 1:
TABLA 1. REQUISITOS QUIMICOS DE LAS LÁMINAS Y PLATINAS
| REQUISITOS QUIMICOS DE LAS LAMINAS Y PLATINAS | ||
| ELEMENTO | SAE 1010 | SAE 1020 |
| % Carbono | 0,08 a 0,13 | 0,18 a 0,22 |
| % Fósforo, máx. | 0,05 | 0,05 |
| % Azufre, máx. | 0,05 | 0,05 |
| % Manganeso | 0,3 a 0,6 | 0,3 a 0,6 |
| % Silicio, máx. | 0,05 | 0,05 |
Nota : Se pueden usar aceros equivalentes como ASTM A36, y otros con la previa autorización de Enel Colombia S.A. ESP
La capa de material de cinc utilizado será de calidad especial según tabla 2.
TABLA 2. COMPOSICIÓN QUIMICA DEL CINC (%)
| COMPOSICIÓN QUIMICA DEL CINC ( % ) | ||||
| GRADO | Plomo máx. | Hierro máx. | Cadmio máx. | Cinc, mín. |
| Especial | 0,03 | 0,02 | 0,02 | 99,9 |
6.3 Mecánicos
Las láminas, tubos y platinas utilizadas para la fabricación de los postes metálicos de 6 m x 4” para luminarias peatonales de alumbrado público deben tener los siguientes requisitos mínimos:
• Resistencia a la tracción 34,7 Kg/mm 2 (340 MN/m 2 )
• Límite mínimo de fluencia 18,4 Kg/mm 2 (180 MN/m 2 ).
• Elongación 30% en 50 mm(2pulg.).
6.4 Requisitos del Recubrimiento
Los postes metálicos de 6 m x 4” para luminarias peatonales de alumbrado público serán totalmente galvanizados por inmersión en caliente y deberán cumplir con las especificaciones técnicas de la norma NTC 2076 y deben estar libres de burbujas, áreas sin revestimiento, depósitos de escoria, manchas negras y cualquier otro tipo de inclusiones o imperfecciones.
Las láminas, tubos y platinas se galvanizan con clase B-2 y según Norma NTC 2076 (tabla 3).
TABLA 3. REQUISITOS DE GALVANIZADO
| REQUISITOS DE GALVANIZADO | ||||
| ELEMENTO | PROMEDIO | MÍNIMO | ||
| g/m 2 | µ m | g/m 2 | µ m | |
| Platinas y láminas | 458 | 65,4 | 381 | 54,4 |
Después del galvanizado debe ir protegido con una barrera epóxica con curado poliamida para metales (la barrera epóxica puede ir precedido de imprímante si es necesario) en los primeros 1,5 metros contado desde la base de por lo menos 70 micras y un recubrimiento final en toda la longitud con pintura e imprímante (si es necesario) de por lo menos 60 micras y con una adherencia mínima de 400psi comprobado según norma ASTM D4541.
6.5 Requisitos del Acabado
Las láminas y los tubos deben ser de una sola pieza, libres de soldaduras intermedias, libres de deformaciones, fisura, aristas cortantes, y defectos de laminación. No se permiten dobleces ni rebajas en las zonas de corte, perforadas o punzadas. El galvanizado debe estar libre de burbujas, depósitos de escorias, manchas negras, excoriaciones y/u otro tipo de inclusiones.
7. CRITERIOS DE ACEPTACION O RECHAZO
Se considera que existe un lote cuando, los materiales de las láminas tubos y platinas y los demás elementos pertenecen a un mismo lote de producción de materia prima y un mismo lote de producción, de no ser así deberá tomarse como lotes, por los diferentes aspectos de materia prima y de producción.
7.1 Muestreo
A menos que se especifique otra condición, el muestreo se llevará a cabo tomando muestras para cada prueba de acuerdo a lo indicado en las Tablas 6 y 7, según la norma NTC –ISO 2859-1.
7.2 Aceptación o Rechazo
Si el número de elementos defectuosos es menor o igual al correspondiente número de defectuosos dado en la tercera columna de las Tablas 4 y 5, se deberá considerar que el lote cumple con los requisitos relacionados en el numeral 6 de esta especificación; en caso contrario el lote se rechazará.
TABLA 4. PLAN DE MUESTREO PARA INSPECCIÓN VISUAL Y DIMENSIONAL, NIVEL DE INSPECCIÓN II, NAC=2.5% (NORMA NTC-ISO 2859-1 TABLA1 - TABLA 2A)
| TAMAÑO DEL LOTE | TAMAÑO DE LA MUETRA | NUMERO PERMITIDO DE DEFECTUOSOS | NUMERO DEFECTUOSOS PARA RECHAZO |
| 2 a 8 | A = 2 | 0 | 1 |
| 9 a 15 | B = 3 | 0 | 1 |
| 16 a 25 | C = 5 | 0 | 1 |
| 26 a 50 | D = 8 | 1 | 2 |
| 51 a 90 | E = 13 | 1 | 2 |
| 91 a 150 | F = 20 | 1 | 2 |
| 151 a 280 | G = 32 | 2 | 3 |
| 281 a 500 | H = 50 | 3 | 4 |
| 501 a 1200 | J = 80 | 5 | 6 |
| 1201 a 3200 | K =125 | 7 | 8 |
| 3201 a 10000 | L =200 | 10 | 11 |
TABLA 5. PLAN DE MUESTREO PARA LOS ENSAYOS MECANICO, NIVEL DE INSPECCIÓN ESPECIAL S-3, NAC = 2,5%(NORMA NTC-ISO 2859-1 TABLA1 - TABLA 2A).
| TAMAÑO DEL | TAMAÑO DE LA MUESTRA | NUMERO PERMITIDO DE DEFECTUOSOS | NUMERO DEFECTUOSOS PARA RECHAZO |
| 2 a 8 | A = 2 | 0 | 1 |
| 9 a 15 | A = 2 | 0 | 1 |
| 16 a 25 | B = 3 | 0 | 1 |
| 26 a 50 | B = 3 | 0 | 1 |
| 51 a 90 | C = 5 | 1 | 2 |
| 91 a 150 | C = 5 | 1 | 2 |
| 151 a 280 | D = 8 | 1 | 2 |
| 281 a 500 | D = 8 | 1 | 2 |
| 501 a 1200 | E = 13 | 1 | 2 |
| 1201 a 3200 | E =13 | 1 | 2 |
| 3201 a 10000 | F =20 | 1 | 2 |
8. PRUEBAS E INFORME
Las pruebas y recepción serán efectuadas en presencia de los representantes de Enel Colombia S.A. - ESP; así mismo se realizarán en las instalaciones del proveedor quien debe asumir su costo y proporcionar el material , equipos y personal necesario para tal fin. Si los resultados de las pruebas o los equipos de prueba no son confiables, éstas igualmente podrán ser realizadas o repetidas a costa del proveedor, en laboratorios oficiales o particulares reconocidos por Enel Colombia S.A. - ESP.
Enel Colombia S.A. -ESP. se reserva el derecho de realizar una inspección durante el proceso de fabricación; para tal efecto el proveedor suministrará los medios necesarios para facilitar la misma.
8.1 Prueba Dimensional
La verificación de las dimensiones se hará con los instrumentos de medida que den la aproximación requerida (cinta metálica con divisiones de 1 mm para longitudes y calibrador para los diámetros y espesores). El tamaño de la muestra deberá estar de acuerdo con la Tabla 5.
8.2 Análisis Químico
Se efectuará el análisis químico de acuerdo a lo requerido en el numeral 4.2 y las normas NTC 23 y 180 (carbono), NTC 27 (azufre), NTC 181 (fósforo), NTC 24 o 25 (manganeso), NTC 26 o 28 (silicio) o en su defecto se aceptará un certificado de calidad de los materiales empleados, emitido por un laboratorio reconocido y aprobado por Enel Colombia S.A. ESP. El análisis químico puede ser realizado en un espectómetro calibrado con los patrones correspondientes.
8.3 Prueba Mecánica
Los postes metálicos para alumbrado público deben ser sometidos a doblamiento según la figura 5, y los valores de flexión deberán ser inferiores a los valores de la tabla 6.
TABLA 6. PRUEBA DE RESISTENCIA MECÁNICA
| Descripción | Carga de Rotura en (Kg) | DEFLEXIÓN MAXÍMA | |
| Carga Aplicada en (Kg) | Deflexión máxima a 200 (mm) de la cima | ||
| Poste metálico 6 m. | 150 | 120 | 330 |
8.4 Prueba del Galvanizado
Esta prueba se hará de acuerdo a la norma NTC 2076. La prueba de espesor de galvanizado se hará con elcómetro debidamente calibrado
8.5 Informe de Pruebas
El informe del proveedor que presentará a Enel Colombia S.A. ESP deberá incluir las pruebas que se relacionan a continuación, adicionando, si fuera el caso, sus observaciones y comentarios (La totalidad de las pruebas deberán hacerse con la presencia de un funcionario de Enel Colombia S.A. ESP):
- Dimensiones de las muestras.
- Resultados del análisis químico o certificado de la calidad del acero.
- Resultados de la prueba de doblamiento y flexión.
- Resultados del espesor y la adherencia de la capa de galvanizado.
9. EMPAQUE, ROTULADO Y MARCACIÓN
9.1 Empaque
Los postes metálicos para alumbrado público se empacarán de tal manera que no sufran durante el transporte, manipuleo y almacenamiento. Los tornillos irán engrasados, con sus tuercas y arandelas instaladas.
9.2 Rotulado
En cada empaque se colocará un rótulo con la siguiente información:
- Especificación del contenido con su referencia.
- Nombre y razón social del proveedor.
- País de origen.
- Cantidad de elementos.
- Peso unitario, peso total bruto y neto.
- Nombre de Enel Colombia S.A. ESP.
- Número de contrato o pedido.
- Fecha de entrega.
- Código de Almacén (SAP)
9.3 Marcación
Se deben marcar en una placa adherida con por lo menos cuatro remaches a una altura de 2 m de la base, en altorrelieve o bajorrelieve con la siguiente información:
- La marca del fabricante o razón social.
- Longitud del poste en metros.
- Resistencia mecánica de rotura en kgf
- Fecha de fabricación: Año-Mes
- Peso del poste en kg.
- Palabra BOG-CUN
- Número del contrato
- Código SAP 1005760
10. SISTEMA DE CALIDAD
El oferente adjuntara con su propuesta, para el fabricante de los bienes cotizados, el certificado de conformidad con norma y/o el perfil de calidad de acuerdo con cualquier norma NTC-ISO serie 9000 o norma equivalente en el país de origen, expedida por una entidad idónea del mismo país de origen.
11. CERTIFICADOS DE CONFORMIDAD
El oferente adjuntará con su propuesta el certificado de conformidad de producto con norma técnica y con RETILAP, expedido por una entidad autorizada por la ONAC.
No se admiten certificados de productos que presente exclusiones a la presente especificación técnica .
12. PRESENTACIÓN DE LAS OFERTAS
El oferente deberá presentar su oferta técnica (en medio impreso) en el siguiente orden:
- ANEXO 1 : relación de los bienes cotizados.
- ANEXO 2 : información del oferente.
- ANEXO 3 : planillas de características técnicas garantizadas del poste. Deberá entregarse en formato Excel.
- ANEXO 4 : planillas de características técnicas garantizadas del soporte. Deberá entregarse en formato Excel.
- ANEXO 5 : carta de compromiso y cumplimiento de cada una de las disposiciones contempladas en éste apartado.
- EXCEPCIONES TÉCNICAS : apartado en el cual se deben relacionar las excepciones de carácter exclusivamente técnico de la oferta, respecto a los bienes solicitados. Si la oferta no presenta excepción, se indicaría expresamente en el mismo “NO HAY EXCEPCIONES”
- PROTOCOLO DE PRUEBAS : relación de los ensayos realizados a los postes y a sus accesorios de acuerdo con lo indicado en el apartado 8 de la presente especificación.
- CERTIFICACIONES : certificación del sistema de calidad y del producto con norma técnica y RETILAP.
- EVIDENCIA TÉCNICA : relación de clientes, evidencia de su capacidad técnica y experiencias relacionadas con los materiales y/o equipos cotizados.
- GARANTÍA : carta de garantía de los bienes cotizados.
- NORMAS : normas técnicas aplicables a los bienes cotizados.
- CATÁLOGOS : catálogos originales completos y actualizados del fabricante, que correspondan a los datos bienes cotizados.
- INFORMACIÓN ADICIONAL : información adicional que se considere aporta explicación al diseño del poste, así como las instrucciones de instalación, operación y mantenimiento .
La oferta técnica deberá presentarse en carpeta blanca de tres aros (tipo catálogo), con separadores en el orden anteriormente señalado.
Adicionalmente, el fabricante debe incluir la anterior información en formato electrónico en un CD o Disquete.
Enel Colombia S.A. podrá descartar ofertas que no cumplan con las anteriores disposiciones, sin expresión de causa ni obligación de compensación.
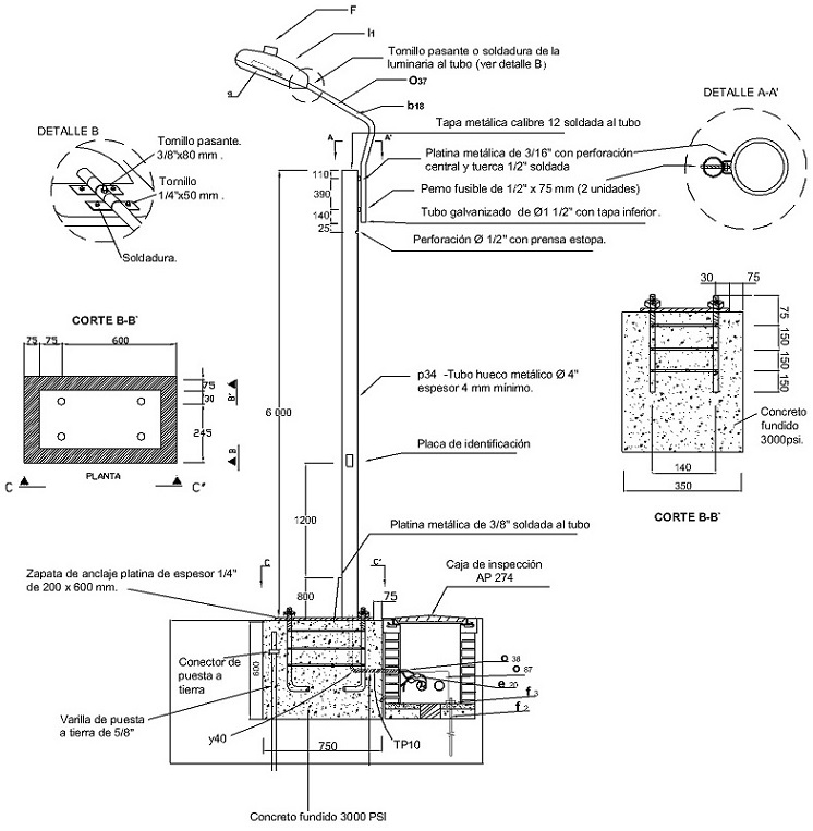
FIGURA 1. Poste metálico de 6 mx4” con un brazo para luminaria
NOTAS:
-Altura total del poste 6 000 mm.
-Pintura de todos los elementos metálicos color gris Ral 7004.
-Dimensiones en milímetros y pulgadas.
-Esta norma tiene como referencia la instalación “luminaria peatonal sencilla” de la cartilla del mobiliario urbano M-130.
-En zonas verdes el pedestal debe sobresalir 100 mm del pasto para evitar oxidaciones.
-Los tornillos para seguridad de la luminaria (Detalle B) son suministrados con la luminaria.
FIGURA 2. Poste metálico de 6 m x 4” con doble brazo para luminaria
NOTAS:
-Altura total del poste 6 000 mm.
-Pintura de todos los elementos metálicos color gris Ral 7004.
-Dimensiones en milímetros y pulgadas.
-Esta norma tiene como referencia la instalación “luminaria peatonal sencilla” de la cartilla del mobiliario urbano M-130.
-En zonas verdes el pedestal debe sobresalir 100 mm del pasto para evitar oxidaciones.
-Los tornillos para seguridad de la luminaria (Detalle B) son suministrados con la luminaria.
FIGURA 3. Brazos sencillo y doble para luminarias

FIGURA 4A. Anclaje y Cimentación

FIGURA 4B. Anclaje y Cimentación

FIGURA 5 : Prueba de resistencia mecánica
13. CARACTERÍSTICAS TÉCNICAS GARANTIZADAS
Anexo 1. Con un brazo
| POSTE METÁLICO DE 6 m x 4” CON UN BRAZO PARA LUMINARIA PEATONAL | ||||||
| ITEM | DESCRIPCION | UNIDAD | REQUERIDO | OFRECIDO | ||
| 1 | Fabricante | |||||
| 2 | Normas de fabricación | |||||
| 3 | Normas de pruebas | |||||
| 4 | Catálogo No. | |||||
| 5 | Material | Acero A-36 | ||||
| 6 | Espesor de la lámina | mm | ||||
| 7 | Peso del poste | Kg | ||||
| 8 | Resistencia a la tensión | Kg | ||||
| 9 | Deflexión máxima | mm | ||||
| 10 | Galvanización. Norma | NTC-2076 | ||||
| 11 | Espesor mínimo del galvanizado (micras) | 75 | ||||
| 12 | Espesor del revestimiento (sobre el galvanizado) | |||||
| 13 | Placa característica | si/no | ||||
| 14 | Tornillo galvanizado para puesta a tierra de ½” x 1” soldado a 50mm de la base | si/no | ||||
| Accesorios de Montaje | ||||||
| 15 | Zapata | Dimensiones | Longitud | mm | 600 | |
| Ancho | mm | 200 | ||||
| Espesor | mm | 1/4" | ||||
| Distancia entre pernos | Largo | mm | 450 | |||
| Ancho | mm | 140 | ||||
| Perforación | 1/2" | |||||
| 16 | Aleta | Dimensiones | Espesor | mm | 3/8" | |
| Alto | mm | 800 | ||||
| Base mayor | mm | 90 | ||||
| Base menor | mm | 40 | ||||
| Espesor | mm | 3 | ||||
| Brazo de luminaria sencilla | ||||||
| 17 | Tubo galvanizado cantidad: 1 | Dimensiones | Longitud | mm | 1500 | |
| Diámetro | 1 1/2" | |||||
| Espesor | mm | 3 | ||||
| Cumple con los radios de curvatura, ángulos, tramos y perforaciones indicadas | si / no | |||||
| Soportes para brazos: 2 | ||||||
| Platina | 3/16" | |||||
| Longitud x Ancho x Alto | mm | 43 x 73,5 x 50 | ||||
| Tuerca de 1/2" soldada | u | 2 | ||||
| Tornillo de 1/2" x 3" | u | 2 | ||||
| 18 | Anclaje de postes | Pernos y varillas corrugadas de 3/8” soldada | Diámetro | 1/2" | ||
| Longitud | mm | 550 | ||||
| Longitud doblada | mm | 100 | ||||
| Distancia entre pernos | mm | 450 | ||||
| Tuercas y arandelas de presión 1/2" | u | 4 | ||||
| varillas corrugadas de 3/8” soldada | mm | 3600 | ||||
| 19 | Base de Concreto | Mezcla de concreto | psi | 3000 | ||
| Largo | mm | 750 | ||||
| Ancho | mm | 350 | ||||
| Profundidad | mm | 600 | ||||
| Tubo flexible PVC | 1/2" | |||||
| 20 | Cumple la marcación solicitada en el numeral 9.3 | |||||
| RESULTADO DE EVALUACIÓN TÉCNICA | ||||||
| 21 | Certificación del sistema de calidad (Normas ISO) | Entidad acreditadora | ||||
| Número de acreditación | ||||||
| Fecha de aprobación (Día/Mes/Año) | ||||||
| Vigencia | ||||||
| Adjunta el certificado (Si/No) | ||||||
| 22 | Certificación de producto con norma técnica | Entidad acreditadora | ||||
| Número de acreditación | ||||||
| Fecha de aprobación (Día/Mes/Año) | ||||||
| Vigencia | ||||||
| Norma técnica con la cual se certifica | ||||||
| Adjunta el certificado (Si/No) | ||||||
| 23 | Certificación de producto con RETILAP | Entidad acreditadora | ||||
| Número de acreditación | ||||||
| Fecha de aprobación (Día/Mes/Año) | ||||||
| Vigencia | ||||||
| Adjunta el certificado (Si/No) | ||||||
| RESULTADO DE EVALUACIÓN REGULATORIA | ||||||
| 24 | Observaciones | |||||
Anexo 2. Con doble brazo
| POSTE METÁLICO DE 6 m x 4” CON DOBLE BRAZO PARA LUMINARIAS PEATONALES | ||||||
| ITEM | DESCRIPCION | UNIDAD | REQUERIDO | OFRECIDO | ||
| 1 | Fabricante | |||||
| 2 | Normas de fabricación | |||||
| 3 | Normas de pruebas | |||||
| 4 | Catálogo No. | |||||
| 5 | Material | Acero A-36 | ||||
| 6 | Espesor de la lámina | mm | ||||
| 7 | Peso del poste | Kg | ||||
| 8 | Resistencia a la tensión | Kg | ||||
| 9 | Deflexión máxima | mm | ||||
| 10 | Galvanización. Norma | NTC-2076 | ||||
| 11 | Espesor mínimo del galvanizado (micras) | 75 | ||||
| 12 | Espesor del revestimiento (sobre el galvanizado) | |||||
| 13 | Placa característica | si/no | ||||
| 14 | Tornillo galvanizado para puesta a tierra de ½” x 1” soldado a 50mm de la base | si/no | ||||
| Accesorios de Montaje | ||||||
| 15 | Zapata | Dimensiones | Longitud | mm | 600 | |
| Ancho | mm | 200 | ||||
| Espesor | mm/pulg | 1/4" | ||||
| Distancia entre pernos | mm | 450 | ||||
| 140 | ||||||
| Perforación | 1/2" | |||||
| 16 | Aleta | Dimensiones | Espesor | mm/pulg | 3/8" | |
| Alto | mm | 800 | ||||
| Base mayor | mm | 90 | ||||
| Base menor | mm | 40 | ||||
| Brazos para luminaria | ||||||
| 17 | Tubo galvanizado cantidad: 2 | Dimensiones | Longitud | mm | 1500 | |
| Diámetro | pulg | 1 1/2" | ||||
| Espesor | mm | 3 | ||||
| Cumple con los radios de curvatura, ángulos, tramos y perforaciones indicadas | si / no | |||||
| Soportes para brazos: 4 | ||||||
| Platina | 3/16" | |||||
| Longitud x Ancho x Alto | mm | 43 x 73,5 x 50 | ||||
| Tuerca de 1/2" soldada | u | 4 | ||||
| Tornillo de 1/2" x 3" | u | 4 | ||||
| 18 | Anclaje de postes | Pernos y Varillas corrugada de 3/8" soldada | Diámetro | 1/2" | ||
| Longitud | mm | 550 | ||||
| Longitud doblada | mm | 100 | ||||
| Distancia entre pernos | mm | 450 | ||||
| Tuercas y arandelas de presión 1/2" | u | 4 | ||||
| Varillas corrugada de 3/8" soldada | mm | 3600 | ||||
| 19 | Base de Concreto | Mezcla de concreto | psi | 3000 | ||
| Largo | mm | 750 | ||||
| Ancho | mm | 350 | ||||
| Profundidad | mm | 600 | ||||
| Tubo flexible PVC | 1/2" | |||||
| 20 | Cumple la marcación solicitada en el numeral 9.3 | si / no | ||||
| RESULTADO DE EVALUACIÓN TÉCNICA | ||||||
| 21 | Certificación del sistema de calidad (Normas ISO) | Entidad acreditadora | ||||
| Número de acreditación | ||||||
| Fecha de aprobación (Día/Mes/Año) | ||||||
| Vigencia | ||||||
| Adjunta el certificado (Si/No) | ||||||
| 22 | Certificación de producto con norma técnica | Entidad acreditadora | ||||
| Número de acreditación | ||||||
| Fecha de aprobación (Día/Mes/Año) | ||||||
| Vigencia | ||||||
| Norma técnica con la cual se certifica | ||||||
| Adjunta el certificado (Si/No) | ||||||
| 23 | Certificación de producto con RETILAP | Entidad acreditadora | ||||
| Número de acreditación | ||||||
| Fecha de aprobación (Día/Mes/Año) | ||||||
| Vigencia | ||||||
| Adjunta el certificado (Si/No) | ||||||
| RESULTADO DE EVALUACIÓN REGULATORIA | ||||||
| 24 | Observaciones | |||||
DATOS ADICIONALES
Revisión #
3
Fecha de entrada en vigencia
Actividad de los usuarios
Para hacer comentarios debe iniciar sesión o registrarse aquí