ET203 Postes de concreto para instalación de caja de medidores
- Contenido
1. - OBJETO DE LA ESPECIFICACIÓN
Esta especificación técnica establece las condiciones que deben satisfacer los postes de concreto para instalación de caja para medidores.2. - CONDICIONES DE UTILIZACIÓN
2.1 - Lugar de instalación
Los postes de concreto para instalar cajas para medidores serán ubicados en lugares donde no sea posible su instalación en la fachada de las viviendas.
2.2 - Condiciones climáticas
Serán empleados a la intemperie, siendo ésta generalmente de clima cálido y húmedo.Los parámetros de operación son los siguientes:
- Altura sobre el nivel del mar: 2640 m
- Humedad relativa: 90%
- Temperatura ambiente máxima: 27 °C
- Temperatura ambiente mínima: -5 °C
- Temperatura ambiente promedio: 14 °C
3. Detalles Constructivos
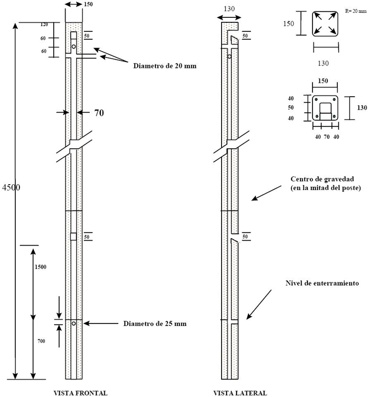
3.1 Dimensiones
Los postes deben ser de sección rectangular, con las siguientes medidas:Longitud total: 4500 mm
Ancho frontal: 150 mm
Lateral : 130 mm
La tensión de ruptura es de 250 Kgf.
El poste tiene una sección rectangular hueca de 70x50 mm, a lo largo del poste con el fin de instalar los conductores de acometida al cliente.
El hueco que permite el acceso al interior del poste deberá tener en su parte inferior una pendiente que no permite el fácil ingreso de la lluvia.
En su cima tendrá perforaciones de 20mm para instalar pernos de retención de acometidas y en su parte inferior para puesta a tierra .
3.2 Fabricación
Los postes deben fabricarse, con concreto y refuerzo metálico utilizando únicamente formaletas metálicas, que aseguren uniformidad en su forma y exactitud en sus dimensiones. En general, los agregados y las armaduras deben cumplir la Norma ICONTEC correspondientes.El armado de la canasta del refuerzo principal, deben ir aseguradas mediante amarres con alambre o puntos de soldadura alternados, entre los retículos de armado. La canasta debe llevar 4 varillas de refuerzo a todo lo largo del poste en forma simétrica, varillas transversales distribuidas equilibradamente que completen el refuerzo.
Las varillas longitudinales deben ser barras corrugadas de acero al carbono para hormigón armado y/o cables de acero para concreto pretenzado.
La calidad del concreto utilizado debe ser tal que la resistencia a la compresión a los 28 días de curado no sea menor de 210 Kgf/cm 2 (3000 psi) y para pretensado 5000 psi; debe cumplir con la Ley 400/97 y el Decreto 33/98, Reglamento de Construcciones Sismo-resistentes NSR-98. El proceso de fabricación puede ser mediante método de vibrado el cual debe hacerse simultáneamente con el vaciado en forma sucesiva o por medio del centrifugado. El fabricante debe acreditar a través de laboratorio idóneo y responsable las características físicas y estructurales de la mezcla o dosificación del concreto utilizado.
El curado del poste puede efectuarse por cualquier método que garantice y conserve las propiedades químicas, mecánicas y de acabado (superficie lisa sin hormigueros, ni desprendimientos de concreto). No se aceptan postes amasados y compactados a mano.
El agregado aplicado debe ser limpio, rígido, durable y no contener suciedad, lodos, sustancias orgánicas o cualquier elemento que sea dañino para el concreto; el agregado grueso o gravilla su tamaño debe estar en un rango entre 13 y 19 mm.
Se aceptan aditivos aplicables que permitan mejorar la durabilidad y otras propiedades del concreto, sin disminuir su capacidad para resistir refuerzos. No se aceptan aditivos que contengan cloruros.
3.3 Montaje
La caja del medidor, se instalara de tal forma que cubra la abertura de llegada y salida de la acometida y se fijará al poste mediante una platina de 180 x 40 x 2 mm. Con cinta metálica inoxidable.3.4 Identificación
Todos los postes deben llevar en forma legible y visible una vez hincados, las siguientes informaciones:Marca de fábrica
Clase de designación: Peso y longitud del poste, tensión de rotura.
Fecha de fabricación
Codensa SA ESP
Código SAP 1005450
Es importante señalizar hasta la longitud donde irá hincado el poste y el centro de gravedad.
3.5 Deformaciones:
El poste bajo una acción de carga aplicada a 20 cm de la cima, con una intensidad igual al 40% de la carga de rotura (250 kgf), no debe producir una flecha superior al 3% de la longitud libre del poste.Defectos: Se rechazarán los postes por las siguientes causas:
Defectos Críticos.
- La resistencia a la compresión del concreto no cumple con las especificaciones mínimas.
- Postes con resanes, cuando la profundidad de éstos haya llegado hasta el refuerzo principal
- Los resanes superficiales hechos con mortero sin el aditivo apropiado para adherencia a concreto viejo o en forma inadecuada.
- Estructura metálica a la vista, ya sean varillas, alambres o cables.
- Recubrimiento menor de 20 mm, desde el eje de la varilla de refuerzo principal a la superficie exterior del poste
- Grietas transversales o longitudinales
- Ranuras longitudinales muy amplias y profundas por mal cierre de la formaleta.
- Destrucción parcial o total de las secciones de cima o base.
Defectos Mayores.
- Perforaciones con el eje desviado respecto a su posición teórica o de diámetro inferior al especificado.
- Superficie del poste con rugosidades pronunciadas, burbujas en cantidad exagerada o manchas por utilización inadecuada de sellantes.
Defectos Menores
- Falta de la información de la marca de fábrica, fecha de fabricación, etc.
- Falta de la señal del nivel de enterramiento y del centro de gravedad.
Plan de Muestreo: Durante el proceso de recepción se establece el siguiente plan de muestreo, en el que se determina el tamaño del lote , la cantidad de postes a los cuales se les debe practicar la inspección visual o rechazo del mismo.
4. INSPECCIÓN VISUAL Y DIMENSIONAL
| Tamaño del lote | Tamaño de la muestra | Número permitido de defectuosos |
| 10 - 25 | 5 | 0 |
| 26 - 50 | 8 | 1 |
| 51 - 90 | 13 | 1 |
| 91 - 150 | 20 | 2 |
| 151 - 280 | 32 | 3 |
| 281 - 500 | 50 | 5 |
4.1 PRUEBA DE CARGA DE FLEXIÓN
| Tamaño del lote | Tamaño de la muestra | Número permitido de defectuosos |
| 16 - 50 | 3 | 0 |
| 51 - 151 | 5 | 0 |
| 151 - 500 | 8 | 1 |
4.2 PRUEBA DE CARGA DE ROTURA
| Tamaño del lote | Tamaño de la muestra | Número permitido de defectuosos |
| 16 - 50 | 2 | 0 |
| 51 - 500 | 3 | 0 |
4.3 Pruebas y Ensayos:
Se deben realizar los siguientes ensayos:Inspección visual y medida de las dimensiones las cuales no deben sobrepasar un +5mm de tolerancia en la sección transversal y ±1% longitudinalmente.
Se deben realizar las pruebas de flexión y rotura a los postes.
Se deberán hacer ensayos de la resistencia a la compresión del concreto de acuerdo con las siguientes edades:
7 días, 14 días y 28 días. Presentar el protocolo de prueba correspondiente.
Presentar protocolos de prueba del ensayo de tracción, límite de fluencia y porcentaje de alargamiento del acero.
El valor de todos los ensayos de laboratorio y pruebas correspondientes ordenadas por Codensa S.A. ESP serán por cuenta del contratista. Para casos de compañías extranjeras deben presentar certificados de los protocolos de prueba por laboratorio reconocido y homologado por la entidad competente del país de origen.
5. CARACTERÍSTICAS FIGURA 1
NOTA : Todas las medidas están dadas en mm
DATOS ADICIONALES
Revisión #
0
Fecha de entrada en vigencia
Actividad de los usuarios
Para hacer comentarios debe iniciar sesión o registrarse aquí